查看完整案例

收藏

下载
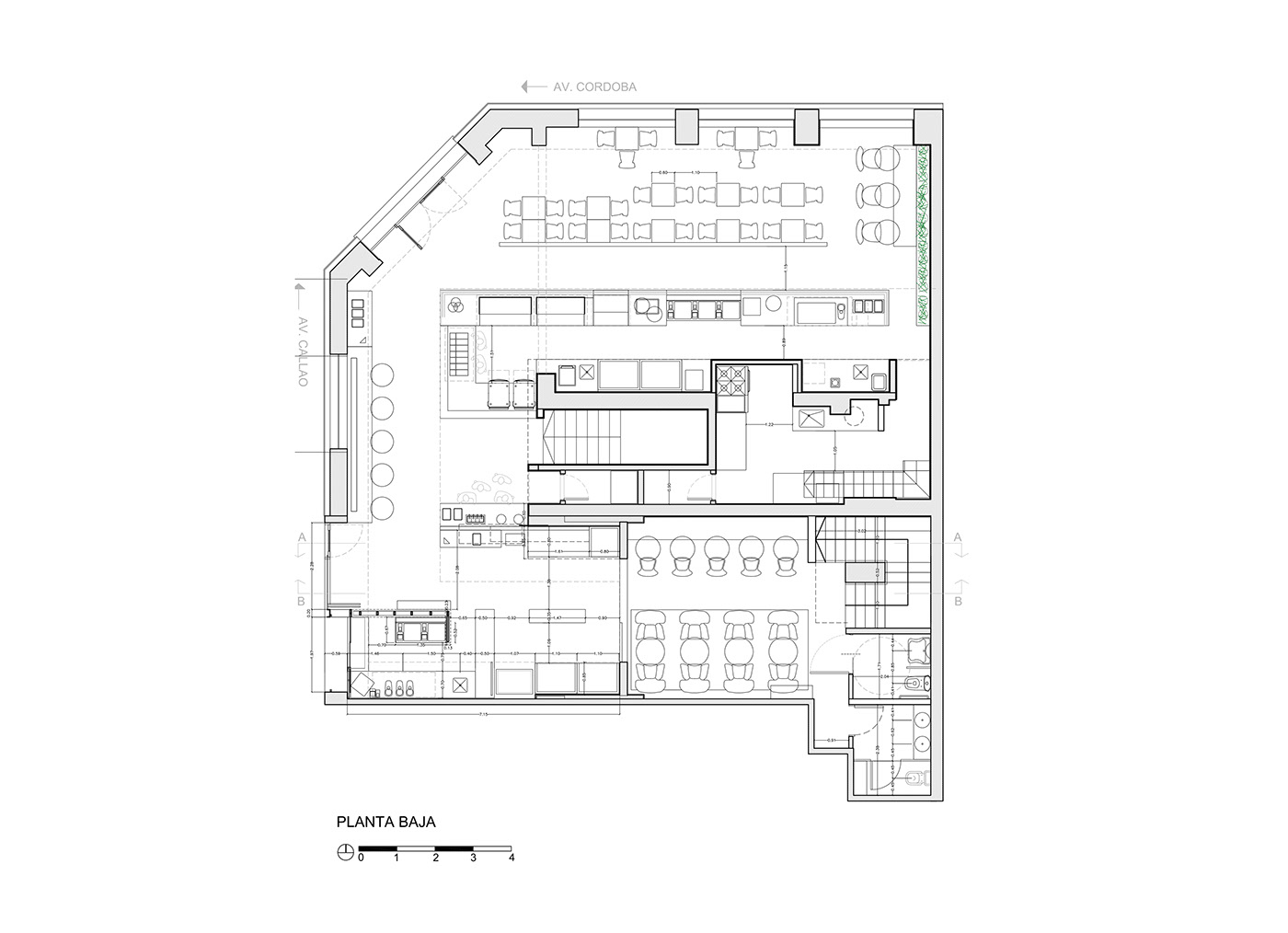
地点:卡劳大街和科尔多瓦街,阿根廷布宜诺斯艾利斯市
建筑方案:咖啡酒吧
施工经理:Hitzigmilitellocatectors
摄影:费德里科·库尔德基
尺寸:340平方米
年份:2018
从重现布宜诺斯艾利斯传统杂货店的精神而不诉诸陈词滥调的想法出发,我们致力于使我们最能反映这类商店的物质性:杂货的木箱。这个单一元素的纯粹简单性可以通过加法和减法生成空间性。结果试图描述这种精神,这种精神是由这些元素的抽象建立的。简而言之:在不装饰建筑的情况下建造装饰。作为项目的一部分,自品牌的一般概念创建以来,建筑搜索无处不在,试图全面反映产品的本质。以清晰的概念为出发点,缩小了形象与品牌、建筑与内部主义之间的差距。
当试图强烈表达项目的总体理念时,空间性和实质性是朝着同一个方向发展的:一个单一的材料容器(石墨灰色的石灰质瓷砖的地板和墙壁)用一个单一的材料体积块来柜台,它覆盖了空间并限定了情况(旧的木制食品杂货盒)。
这两个要素都及时介入。上面的空间是用杂货盒做成的。这些空腔包含与已开发概念相关的物体:古董烤面包机、咖啡壶和一些器具。
光单色:
杂货盒和物品都经过处理,以获得独特和微妙的单色纹理。
暗单色:
对石墨灰瓦表面进行抛光处理,以提高材料的内在品质。
位于楼梯上的垂直花园不仅要求下降到地下室,而且也意味着背离了在整个空间中占主导地位的黑白游戏。家具和照明设备不仅为空间增添了温暖和舒适,而且也是挂毯上品牌图案的一部分。因此,这个空间在极少数元素的帮助下得以展示,使得零售产品的作用更加突出:一杯好咖啡和一个美味的烤面包。
客服
消息
收藏
下载
最近































































