查看完整案例

收藏

下载
提着刚买的菜,背着包包,基本每次下班回家时都要大包小提,拖着疲惫的身躯,进门后,还要放包包,放钥匙,挂衣服,换上舒适自在的棉拖......总要手忙脚乱一阵子,才能完全切换成在家的放松模式。
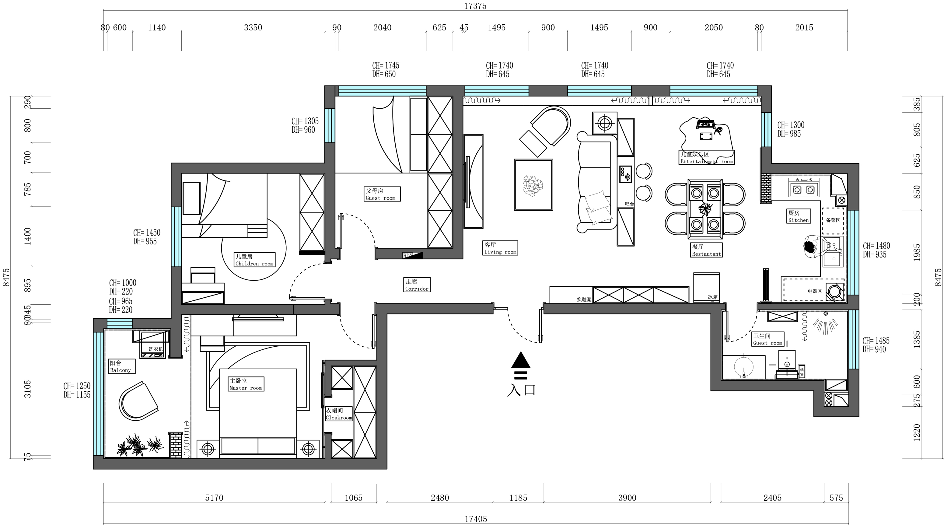
八零原创|2018实景案例项目位置|绿城百合 127㎡
现代设计/软装指导|八零原创
摄影|暴图摄影
➤本户型问题:
进门就是客厅,需要解决入户处的鞋帽收纳。作为从屋外到家中的一个缓冲空间,入户玄关兼具着实用性、美观性、私密性等多种作用。没有玄关,往往就意味着这些功能的缺失,要么鞋子脱一地,要么衣服扔一屋。
➤问题解决
设计师利用入户门右手边的空间,依次整体增加柜体,台面,冰箱,先利用空间解决收纳功能性的问题。
- 客厅 -
客厅一览无余的户型,在顶面的处理上,还是遵循原有空间将客餐厅做成了一个整体,体现户型优势。大多数人还是习惯沙发后面有倚靠,会更有安全感,所以在厅中间设置吧台,将客餐厅区域分隔开。
木地板选择了德国进口的船甲板,这个板子的优势是在铺贴后没有横缝的,只能够看到竖缝,我们是南北铺贴,让视觉上有延伸感,将客餐厅的地面空间和吊顶空间形成方向的统一。
- 餐厅 -
吧台可以作为晚上家庭聊天喝茶的休闲区域,作为整个户型的中心位置,也可作为导台,从超市购物回家后,可以在此将物品分类收纳到就近的冰箱,厨房,卫生间等位置,更可以作为厨房的延伸,满足日常饮水的需求。
餐厅区域做了一面黑板墙,可以让孩子写写画画,餐桌的摆放位置往东边移动了一下,这样在保证餐厅过道的同时,也空出了一个儿童活动区。
- 厨房 -
- 卧室 -
主卧室的墙体没有改动,还是将衣帽间单独隔离出来,增加了一个谷仓门的设计,更加符合北欧的风格。软装类的选择是和业主前期提前定好的壁画颜色相结合,这样即使在壁画墙面颜色比较多的情况下,整体空间颜色也不会乱。
- 儿童房 -
儿童房的墙面颜色选择是灰粉色,一般粉色会显得整个空间有些刺眼且不耐看,长时间在房间里面会对小朋友的情绪产生影响,所以在颜色选择上,我们加入了一些灰色调,把粉色的饱和度降低,整体的颜色偏向莫兰迪色系。
最后,请给本案的罗大柚设计师疯狂打call!
客服
消息
收藏
下载
最近






















