查看完整案例

收藏

下载
项目地址:中国浙江杭州建德梅城
项目面积:13 公顷
建造面积:20,000 m2
设计时间:2016.06~2016.12
建造时间:2016.12~2018.01
建筑设计:中国美术学院风景建筑设计研究总院
业主:开元旅业集团
主创建筑师:陈夏未,柯礼钧
设计团队:金拓, 王凯, 虞光洁,周建正
室内设计:杭州潘天寿环境艺术设计院
设计总监:朱东波
软装设计:杭州东未建筑装饰设计有限公司
结构顾问:郭苏夷,中国现代木结构建筑技术产业联盟
图片拍摄:奥观建筑视觉
山青、水清、史悠、境幽,这是元朝画家黄公望《富春山居图》里所表达的情与境:自甘隐逸、寓兴和平。
从富春山水到富春山居,杭州富春开元芳草地乡村度假酒店就在这里。项目呈三角形,主体为山溪冲积形成的河滩地,中心集水为湖,200多亩用地内,湖面、溪流、山林,连同地块外的富春江构成了一幅绝美的流动画卷。
山中客房,自然而富有诗意的生长
酒店的建筑规划由中国美术学院风景建筑设计研究总院担纲,室内则由杭州潘天寿环境艺术设计演绎。他们以对自然的‘低影响’为主题,极力减少土地开挖,在陡峭的山区设置吊脚楼,于平静的湖面上打造船屋,铺陈出一派悠然的美好。
《富春山居图》的美,在于峰峦起伏,林木萧疏;在于浅水平滩,坡石沙洲;更在于山石回转,丛林散布于山下江畔,而村落掩映在山谷林间。
“潺潺溪流从山间趟过,在地块内部汇成一片碧湖,与外部的富春江交相呼应,又有层峦的山峰作为背景,可以说地块拥有着画卷般的自然环境。”第一次到现场,主创设计师陈夏未便被眼前的景色打动了。
他决定在完全尊重且不破坏自然的前提下开展建造,打造一种“结庐在人境,而无车马喧”的现代田园生活方式。
为避免突兀、呆板的建筑形态,设计没有采用兵营式的客房布置,而是尊重当地建筑风格,并在各建筑单体及组群之间保持呼应。
10种以上的客房模块以组团为单位,采用散点式布局,依山就势,并且与现场保留树木的位置和谐统一,最终建筑若隐若现,但也仿佛消失在环境中。
此外,‘低影响’的开发主题也设计的重中之重,并体现在诸多方面。比如车行环路的规划最大程度地依照原始地形修建,减少土方开挖,最大化降低对于地形的干扰。
再比如,在陡峭的山地区域采用吊脚楼的建造形式,做完独立基础后,不对场地做其它土方处理,上部建筑使用轻钢现场组装,有效保护当地地质结构及植物资源。
当然还有水处理,如自然界中的进程般,该项目中的雨水经由沟渠收集、再汇入山中溪流以及中心湖中,采用人工建造的微生态滤床进行污水处理,避免了生活污水对于富春江的直排污染。
建筑无论置身何处,都能找到其特有的场所感。主楼,具有层次和仪式感,也是酒店的主入口,且当地传统徽派民居的样式呈现也被特别引入其中,与一定的文化特征,体现粉墙黛瓦之韵味。
大堂以木为主题,并有如云朵般的吊灯悬垂而下,重点突出了建筑与周遭环境的依存关系,房子与山体、湖水、蓝天的有机互生。
餐厅、书吧、会议室等公共空间分设在主楼的两层内,陈夏未将自然童话的美好注入其间:住着林间小木屋,听取蛙声一片……
“因为享受建筑这种‘深藏’山乡的感觉,我们希望室内不要有突兀感。”他说,所以用当地的木材、石头、暖而俏皮的水泥,为了让这里的气氛温暖起来。
考虑到山里多云多雾的天气条件,靠外的一面也被建筑师尽可能的做成了落地玻璃窗,最大化地将山野景色纳入怀中,很好地‘点亮’整个大空间。
墙面涂料的质感,经过多次选样、实验后,最终选择白色水波纹涂料,从细节处映射富春江水的碧波潋滟。
至于材料的选择,则以红雪松及云杉的木挂板为主要外饰面,这是与山体协调的最佳结果。
但由于木屋在山上数量较多,仅用一种木头一种色彩会带来整体的单调性,因此设计师细化了建筑木饰面的色彩属性,避免一眼望去因过于统一而可能产生的与山体的违和,保持自然界应有的色差,让空间有机的“生长”在山林里。
诚如画家在画中追求“诗中有画,画中有诗”的深远意境,建筑设计师陈夏未也乐于形成“酒店中的风景,风景中的酒店”的视觉感知。
在他看来,建筑之美,并不仅仅是为了描绘自然,更重要的是其所营造的空间所体现的美,所传达的主观感受、气势和意趣。
虽然客房形式、户型多样,但统一设计了大玻璃,大露台,将山景,溪景,湖景,江景充分利用,自身也融入山体,由此,空间与山体互为风景。
而朱东波团队操刀的室内则更加舒适惬意:“在这里,你可以回到小时候,在洒满阳光的草地上,打滚嬉闹,踩着小伙伴的影子,闻着青草的芬芳,浸在水里,打一场水仗。”他说。
“山川浑厚,草木华滋”,最终山体客房以清润的笔墨、简远的意境,将浩渺连绵的江南山水表现得淋漓尽致。
有一种东方田园牧歌式的质感,落地玻璃窗框出了四时之景,阳光也顺势洒进室内。
在富春开元芳草地,木头、水泥、石头......所有材料都带着暖暖的色调,且都能随着时间与人的摩挲,呈现出愈发润泽的光辉。
似乎并不仅仅是造房子,或者说设计酒店,它更像是一场设计师与优美但复杂的设计场地之间的对话。
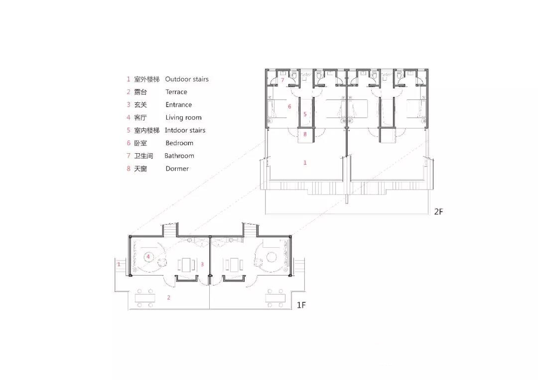
技术图纸
水上船屋,‘九姓渔民’般的部落生活
春水碧于天,画船听雨眠。
水声灯影仿若定格在清丽的水墨画之中,将悠然恬淡、自由逍遥的心境浸润在江南烟雨之中。
船屋是杭州富春开元芳草地乡村酒店的一组特色船屋客房,“漂浮”在30亩的湖面西岸,此处亦是中国十大传世名画之一——《富春山居图》百分之八十的取景地,景色一如画面之淡雅且富于变化。
凭栏远眺,野旷天低树,夜幕降临,江清月近人。“船屋”的概念和形态,源自当地的古老风俗,
自明初至清中几百年间,因“九姓渔民”水上部落生活于此,便形成独有的船居文化,设计师以此为灵感,便诞生出如今的船屋。
从蓊郁山林间延展出一艘艘漂浮在湖面的船屋,横斜在树冠之间,外观以传统木结构勾勒出船篷造型,船身三分之二飘浮在湖面上,轻盈灵动。同时,作为酒店客房,这也成为当下一种独特的居住体验。
苍苍茫茫,远山高峰树木层层穿插,近处草木华滋,节奏变化丰富,似是隐者悠游林泉,又像是江南女子的绰约风姿,试想,这方诗意天地大概是无数文人的悠然理想吧。
近观船屋,整体采用木结构体系,虽是场地环境的需要,亦是对传统蓬船同宗同源的延续。结构均为现场组装,无尘无污染,为保护生态环境的最佳建造方式。
船身结构为拱形,由于拱空间天生的方向性,引导了结构的序列和节奏,建筑内外清晰可见拱梁和圆木构成的完整结构体系,显而易见的结构逻辑和去装饰化设计,展现建筑的结构美学和空间张力。
室内空间为50平方米,岸上的船尾作为入口玄关和卫生间,由和煦温润红雪松木搭配藤编灯饰,原木纹理和触感烘托自然质朴氛围。
以极简的陈列和木质家具呈现自然质朴的空间氛围,在颜色的选择上亦如此,去除多余的缀饰,与自然美景和谐共生。
中间顶部设置天窗成为室内的景框,天光树影共徘徊,时而有飞鸟掠过。船头整面落地窗,即使坐在沙发上亦可感受烟波浩瀚,站于延伸至湖面的超大露台靠着麻绳网栏杆,远眺江景辽远开阔,渺沧海之一粟。
江南之美,甲于天下。乌龙山泉汇聚而成烟渚湖,湖面如镜倒映船拱,躺于船屋中,望星空入睡,是何等之美,和雨声入眠,又是何等之空灵,享尘世中的诗意栖居。
技术图纸
客服
消息
收藏
下载
最近














































































