知末
知末
创作上传
VIP
收藏下载
登录 | 注册有礼

《一天》静好岁月,花卉美学空间

2018/12/26 18:05:19
查看完整案例
微信扫一扫
收藏
下载
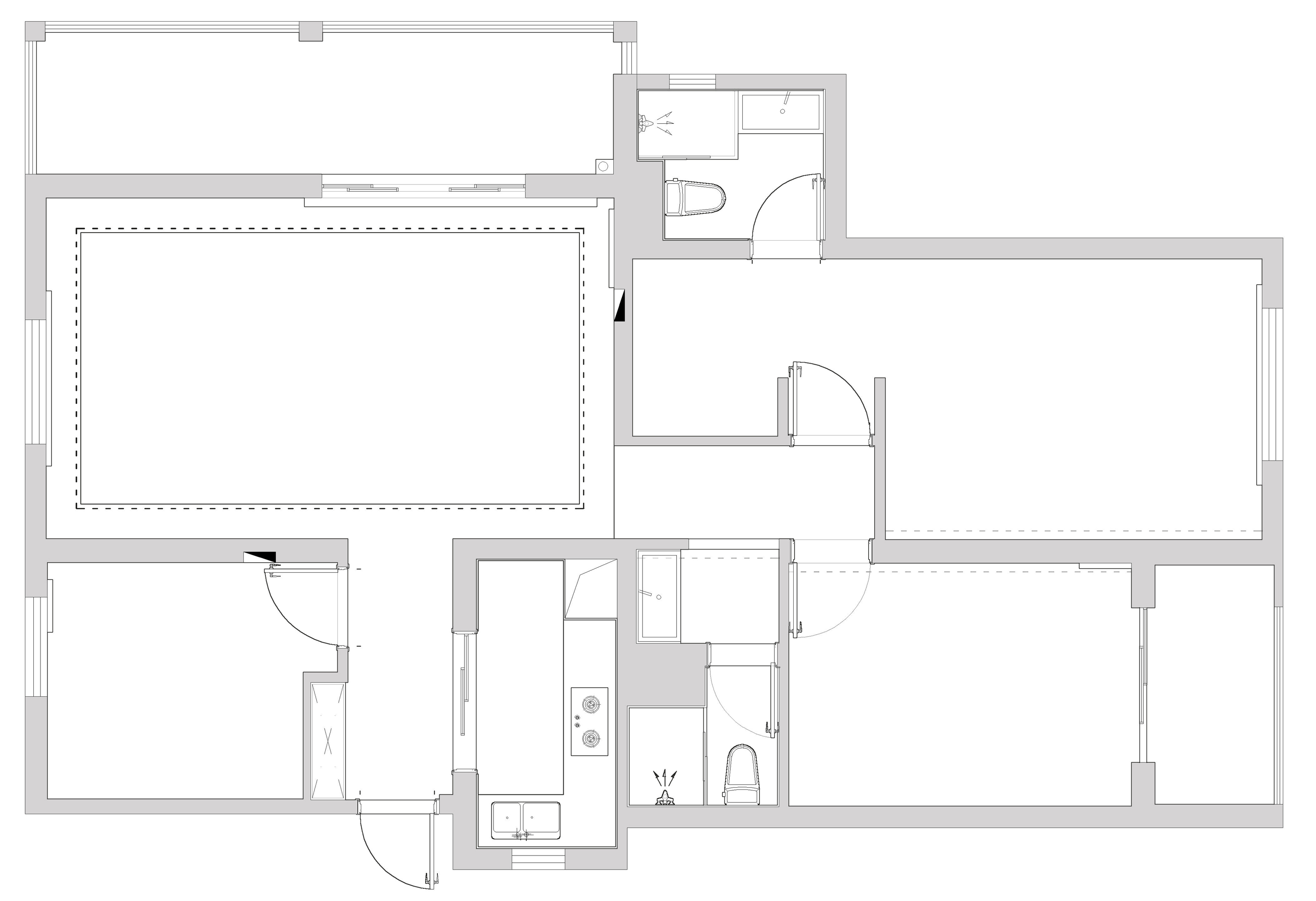
项目面积:  135m2
设计单位:  禄本设计
设计主创: 卜林
施工单位: 禄本设计
软装陈设: 禄本设计
项目摄影: ingallery
《一天》静好岁月,花卉美学空间-6
《一天》静好岁月,花卉美学空间-7
《一天》静好岁月,花卉美学空间-8
《一天》静好岁月,花卉美学空间-9
《一天》静好岁月,花卉美学空间-10
《一天》静好岁月,花卉美学空间-11
《一天》静好岁月,花卉美学空间-12
《一天》静好岁月,花卉美学空间-13
《一天》静好岁月,花卉美学空间-14
《一天》静好岁月,花卉美学空间-15
《一天》静好岁月,花卉美学空间-16
《一天》静好岁月,花卉美学空间-17
《一天》静好岁月,花卉美学空间-18
《一天》静好岁月,花卉美学空间-19
《一天》静好岁月,花卉美学空间-20
《一天》静好岁月,花卉美学空间-21
《一天》静好岁月,花卉美学空间-22
南京喵熊网络科技有限公司 苏ICP备18050492号-4知末 © 2018—2020 . All photos and trademark graphics are copyrighted by their owners.增值电信业务经营许可证(ICP)苏B2-20201444苏公网安备 32011302321234号
客服
消息
收藏
下载
最近