查看完整案例

收藏

下载
其始荣也,皦若夜光寻扶桑。
其扬晖也,晃若九阳出旸谷。
项目名称:康桥·悦蓉园
项目地点:陕西西安
完工时间:2018年
开 发 商 :康桥地产
室内设计:深圳市臻品设计顾问有限公司
陈设软装:深圳市臻品设计顾问有限公司
主案设计:郑俊华、胡荣欢
空间摄影:张大齐
东方墅院 | 悦蓉园
本案为康桥地产品质人居封面之作,构筑新东方建筑风格,重拾景点国风雅韵,以文化造院,敬呈三进门仪、六进院落的中国世家礼序。
/ 优越环境 /
西安作为丝绸之路的起始点及中华文明重要发祥地,占据千年唐文化轴精华文脉,项目落址这座历史名城的千亿科技产业高地— —航天城腹地,拥揽具备如意湖8倍之大的千亩湖泊生态资源,天赋五大生态公园盛景(明秦王世子遗址公园、航天城中湖公园、星河运动公园等),优厚医教资源环伺,坐享航天城、曲江二期、长安城三区价值优势,启幕全方位舒居体验。
康桥悦蓉园,新东方美学建筑群,再现中国式居住观。萃取北宋屋檐为显性建筑符号,配以“庭、台、廊、院、轩、堂”等中式建筑特色,继承东方建筑风骨,匠造东方艺术墅院。
曲靖回转之间,还原中式舒沁人居。
守中原国门,汇四海九州,于天下观澜处修身齐家。
C户型 | 现代轻奢 91㎡
文韵入室,舒沁人居
C户型的室内方案定位现代轻奢风格,设计师从居者的居住形式入手(温馨和乐的一家三口:成熟有品位的企业家,蕙质时尚的女主人,可爱充满好奇心的小女儿),延续庭院的中式建筑元素,于空间内引入东方雅韵气息。
空间布局从入门处一览无遗,客餐厅保持空间连贯性,主卧隐于收藏柜后侧,保留空间私密性的同时又不至于过分独立分隔。
色彩搭配上,以咖色、灰色及卡其色为基调,整体以中性色调为主,自然温馨的同时又不缺乏时尚品质感。深胡桃木家具凸显尊贵气质,麂皮绒的沙发面料结合皮质触感尽显奢华,色彩运用在深色调中辅以秋系缀色,将整个空间氛围提升,变得雅致而鲜活。
多功能房与儿童活动区保持互动性。
闲暇之时独坐书桌一侧,望孩童在旁玩闹,书一卷古韵诗词,感悟一番古人“无丝竹之乱耳,无案牍之劳形”的清谧心境。
从书房到主卧,每一局部都代表了臻于至善的态度。
主卧布品及家具不俗的现代工艺提升了空间的整体格调,无论是床品或饰品,色彩上的选择把安逸、无拘无束的心态呈现无遗。
浪漫柔和的小俏皮风包裹着儿童房,如同父母无微不至的爱意,保护着小主人翁天真烂漫的小小世界。
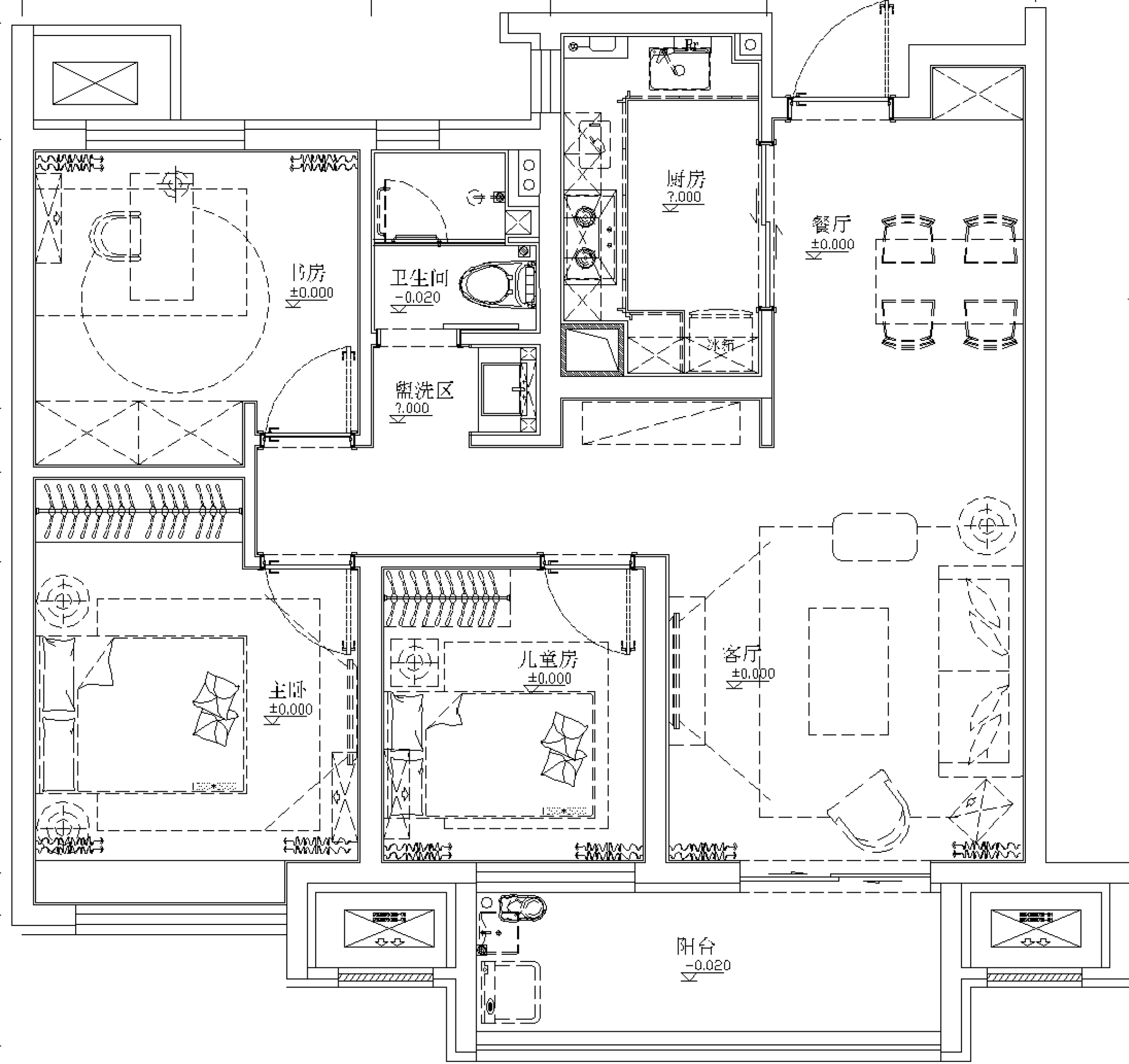
/ 平面图 /
A户型 | 现代时尚 74㎡
苍穹之上,月寄遐思
A户型结合悦蓉园位处航天城腹地的地理优势,打造适合航天精英家庭居住的专属户型风格。然而,无论多么精巧圆熟的概念与定义,最后大都会沦为对“形式”的诛伐,居住的室内所带给主人翁的潜在影响,相比之下,空间意在“传达什么”比争论“这是什么”更有意义。
故此,A户型在引入诸多航天元素挂画及饰品的同时,更为注重的,是主人翁在当下空间的生活质量。空间主风格趋于现代时尚,通过完美有质感的软装搭配彰显其美感的同时带来居住的品质保障。
客厅大体色彩趋于米棕色系,哑光胡桃木电视柜与立体柜相互呼应,跳跃明亮的沙发单品构成整个空间的直接观感,纵向面延伸,线性收边的空间设计手法,将创造面与线完美结合,丰富了艺术形态在时尚简约空间里的多层次变化。
那些平凡的,惊艳的食光,在日常对坐而餐的柔软中美妙重生,调味成家庭最幸福的模样。
人们常说,告诉我你吃什么,我就能知道你是什么样的人。从一户人家的餐饮空间来观察,便可见这家人真实的生活日常。而烹饪空间承载着家庭温馨的日常后勤补给,则需要更多的元素来表达空间情感。
“月球”被高挂于主卧空间,软装布艺与墙面和家具的选取,在视觉上注重延续性与吸睛性,星空色系与“月球”形成深邃神秘的空间氛围。设计师以来自对生活的热爱与细腻的观察,跳出点线面的刻板装饰,融入饱满的认同,以对空间使用者的同理心,作出令人留恋的卧室。
次卧的高级感来自于私密性极强的个性释放,高级的意义在这里体现为尊重多样化的需求和爱好,空间里不同的饰品,模拟真实居住者的个性。当色彩和造型去除献媚的刻意,不表现强烈的情绪暗示,高级感便自然而然呈现于空间内。
儿童房的色调选择是恰到好处的开朗活泼,小主人翁在航天员父亲的职业性质耳濡目染下,相信对探索深奥的浩瀚星海有着极度的好奇心,诸多航天玩物齐聚一室,帮助小主人翁开启无垠的宇宙探索大门。
/ 户外阳台 /
/ 平面图 /
---------------------------------------------------------------------------------------------------------------------------------------
关于 | 臻品空间设计
臻于至善 成就品质
--------------------------------------
深圳市臻品设计顾问有限公司
创立于2010年,总部设于深圳。
拥有建筑装饰工程设计专项乙级资质,
专注为客户提供一体化设计解决方案。
ZPD深圳臻品由一支具有共同价值观、专业能力强和服务意识高的实力团队组成,为国内外客户提供集室内设计、工程顾问、施工配合及软装陈设一体化的设计服务;业务范围涵盖大型公共空间、酒店会所、地产展示、私人雅宅高端定制等设计领域。
从业以来,ZPD不断进取、追求极致,在大型综合体项目以及与境外(意大利KOKAI、上海迪士尼、法国文悦酒店、新加坡长益集团、西班牙JOHNRYAN等)企业的合作中,强化了国际设计理念、施工工艺和运营模式,实现从项目的前期规划顾问、中期深度参与、后期运营配合的有效整合,以策略和品质成就客户。
目前已与中粮地产、万科地产、华润置地、富力地产、中信集团、碧桂园、皇庭集团、希望集团、康桥地产、亚新地产等一二线开发商达成长期稳定的合作关系。
客服
消息
收藏
下载
最近





































