查看完整案例


收藏

下载
户型:三室
面积:73㎡
花费:18W
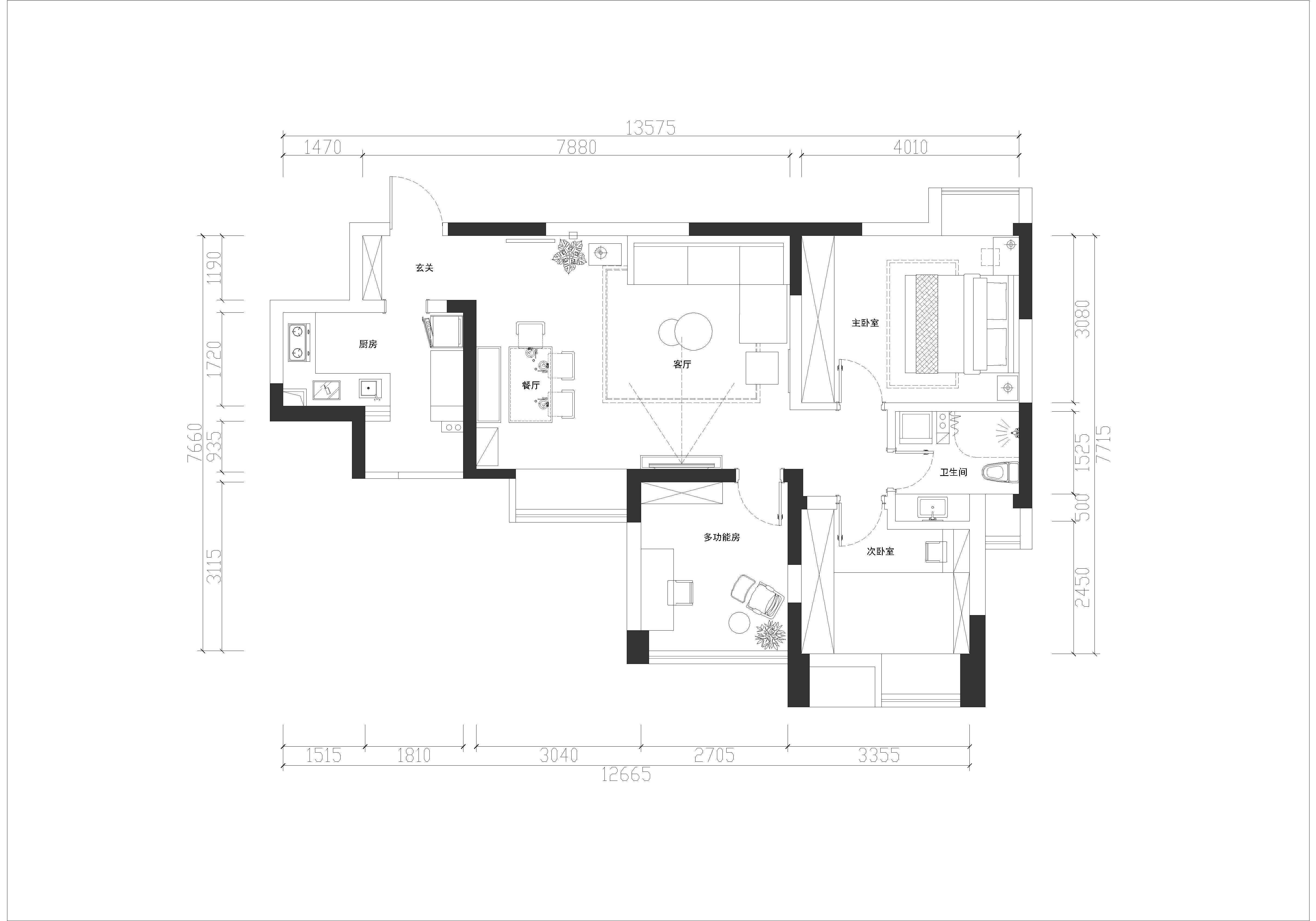
户型图
改造后户型1. 把内开大门改成外开大门,有了鞋柜的位置2. 将主卧门向右移动,原本15公分的墙体变成65公分,刚好可以定制衣柜。3. 新筑墙体,卫生间和次卧分开,形成一个完整空间。并进行了合理的干湿分离。玄关
鞋柜下留20公分,入户经常换鞋,相对容易脏,用六边形小花砖不仅颜值在线,经常用水清洁也不担心。这里和木地板做了拼接处理,在贴砖的时候一定要注意厚度,因为贴砖厚度和木地板厚度是不同的。
原本大门向屋里开,改了开门方向,提高了鞋柜使用率,中间 厘米,进门就能放钥匙或者包包。用灰色毛毡DIY,遮住了开发商棕红色大门,上面还可以挂许多小物件和照片。低点是人类第一次踏上月球的脚印。客厅
杂志柜旁边是龟背叶竹龟,要提醒各位住友的是龟背竹汁液有毒,对皮肤有刺激和腐蚀作用。家里有好奇心很大的小朋友慎选哦。喜湿润,喜肥土,只要注意胶水和施肥就能长得郁郁葱葱。怕大太阳,所以很适合在室内养哦。
原木色实木杂志柜,和家具的整体色调一致,小抽屉可以放茶叶等小物件。木框里的猫咪是业主自己手绘的。
业主喜欢更高的空间,于是没有吊顶,只是在墙面四周做了层叠两级装饰增加了层次感。
客厅白色都芳漆为主,一面墙是淡蓝色,定制的榆木隔板长250公分,宽20公分,文化石贴了 100公分宽,墙面更立体啦。眼睛挂钟出自淘宝。木质画框,玻璃花瓶,藤编花盆,绿植,干花,纸质人脸花瓶,隔板上摆着各种元素的小物件。
餐厅
餐桌购于成都北富森美,桌面是水泥质感贴皮的,因为平时两人居住,餐椅买了两把,另外木质条凳靠墙摆放更省空间。
墙面用了铁艺装饰代替挂画,上面加上一支尤加利和棉花球。
飘窗台右侧的墙体是一个小型餐边柜,增加了餐厅的收纳空间。绿萝是果绿色的,比起深绿色的绿萝更可爱。卫生间
卫生间干区定制的大理石台面,用榆木做隔板,深度 40公分,长度 130公分,隔板上放草编框,就算没有柜门也不会显得杂乱。卧室
卧室床头淡粉色,床对着的墙面是整面白色的定制衣柜,右侧铁艺小编几作为床头柜,放草编框可以收纳杂物。
靠飘窗一侧用木质梳妆台代替床头柜。翻开盖子是一面镜子哦。书房
书房2米的书桌,铁艺置物架除了放书主要为了摆放业主喜欢的小物件。
湖蓝色的老虎椅和窗帘的颜色一致,最独特的是整面几何图形的墙,有经验的师傅刷出来哦。抱枕上加入了柠檬黄作为跳色。
花盆太丑怎么办,可以在淘宝买草编框,底部放接水盘。及适合北欧风,通常也比大陶瓷盆便宜。
客服
消息
收藏
下载
最近
































