查看完整案例


收藏

下载
项目名称:23度C不太冷海南椰子鸡火锅
项目地址:上海静安区嘉里企业中心二楼(共和路219号)
投 资 方: 上海简耶餐饮管理有限公司
设计公司:上海艾获尔室内装饰设计有限公司
施工单位:上海卓隐环境设计有限公司
项目面积:345平米
设计时间:2017.12
完工日期:2018.07
主创设计:胡俊峰
参与设计:钟银 胡金城 方元
主要材料:方管骨架、水泥粉刷、乳胶漆涂料、水性保护剂、爵士白地砖
摄 影 师:金选民
上海可谓是美食天堂,各式各样美食争奇斗艳,她们的用餐环境更像是另一场饕餮盛宴。在嘉里企业中心公馆的二层“隐藏”着这样一家时尚火锅餐厅,这是一处以办公和住宅为主的社区型商圈,正如低调的店名:23度C不太冷,远离繁华的一线商圈,以自己独特的身姿演绎着时尚与美食,筹备之初,打造独一无二的令人印象深刻的用餐环境成了设计师和创始人共同的目标。这是一家以海南椰子和文昌鸡为特色的火锅店。设计师用最纯粹的手法,营造出了充满想象和惊喜的餐厅环境。设计的灵感源于椰果,步入空间,立即被这个巨大的白色“洞穴”吸引,这里完全不像是一个传统感觉中的火锅餐厅,仿佛置身于一个个掰开的椰子,奶白色无序围合的三维曲面,如一片片诱人的椰肉,连绵如洞穴般的造型,浑然一体,让空间极具张力,从视觉和触觉上都刺激着食客的神经,这一切正如主人提供的食材一样:纯粹、天然、健康。空间以一种近乎没有任何装饰材料的形态出现,经过特殊工艺处理过的白色墙体给人非常环保和轻松的感觉,地面和桌面的爵士白大理石、处处用金色线条勾勒的桌椅,让人感受到空间的精致和质感,座椅的蒂芙尼蓝是唯一的色彩,点缀在白色空间里,宛如清凉夏日一缕凉爽的绿意,这些材质和颜色的组合构建出了一个小清新和轻奢感的空间。
入口即能看见用LOGO灯投射的餐厅标志,地面的投射灯把曲线墙面烘托的很有层次,进入餐厅就被这些洞穴状的造型吸引,让人情不自禁拿起手机就想拍下美照。
等候区用的巨型鹅卵石造型雕塑椅静静的躺在角落,也是拍照圣地,配合光照效果,显得很是纯净。
渐渐的步入空间内部,连绵的洞穴造型让人不自觉的想继续探索。
精致的桌椅随着空间的造型,随意的散落在各处。
就餐区的桌椅家具和地面通过用金色和爵士白大理石的搭配,营造出轻奢的氛围
空间没有任何多余的装饰,甚至看不到任何装饰材料,连灯光也是很吝啬的。
局部顶面的枯枝刷成白色,让纯粹的空间多了一点自然和质朴,座椅的蒂芙尼蓝是唯一的色彩,点缀在白色空间里,宛如清凉夏日一缕凉爽的绿意
等候区的鹅卵石雕塑椅子与空间造型融为一体
吧台还是考虑功能性为主,采用平直的造型,和曲面墙体也是一种对比的效果。
别有洞天的用餐区一角
透过曲面的缝隙看到另外一个区间,趣味十足
包房也是“洞穴”的延续
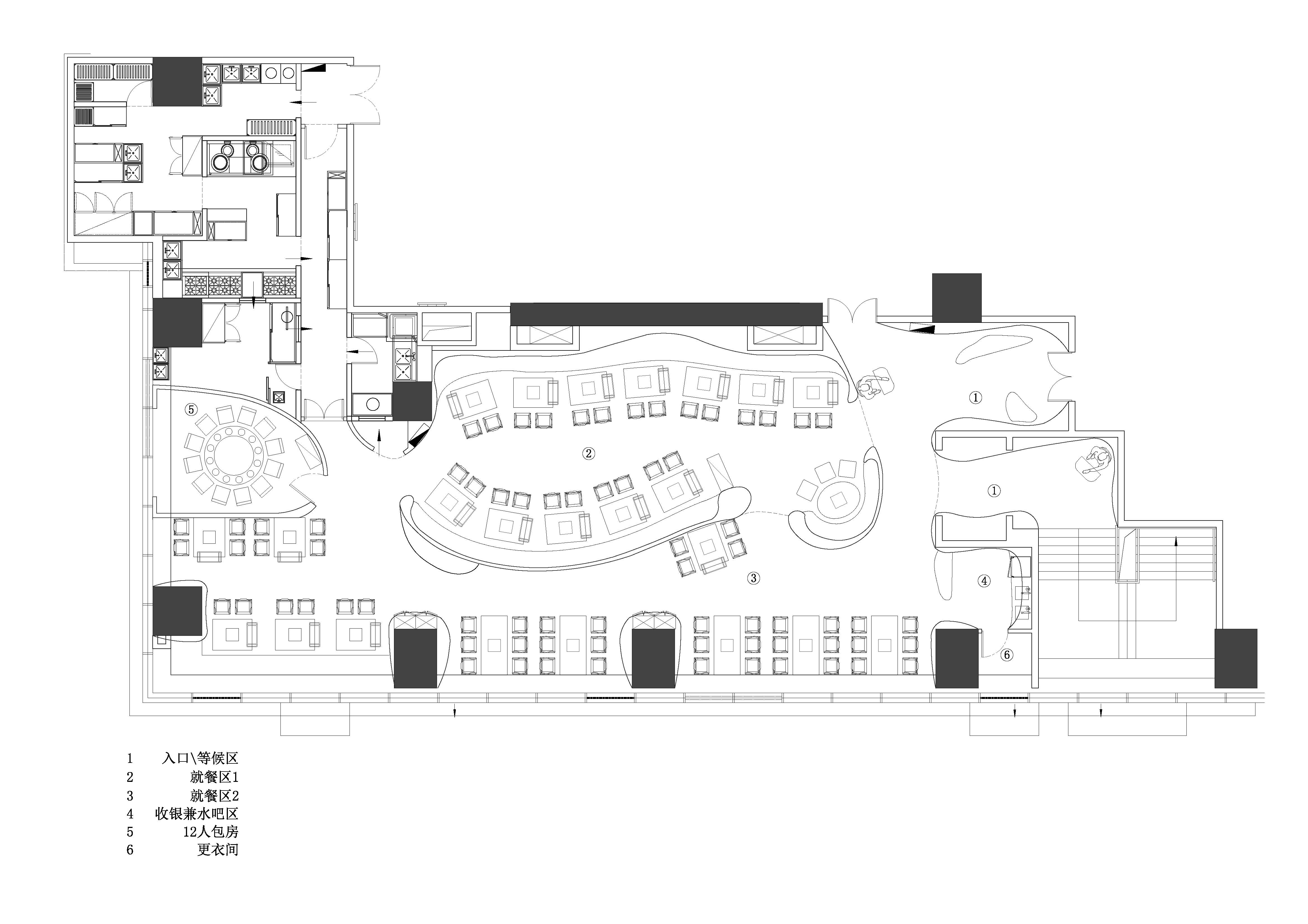
平面图
客服
消息
收藏
下载
最近























