查看完整案例


收藏

下载
【项目名称】COS.MOS 29
【设计单位】I.F.S.E. SPACE CREATIVE LAB
【主案设计】朱啸尘(Eason Zhu)
【设计团队】凌宗生(Alex Lin) 柴尔焕(Erhuan Chai)
【软装设计】陈琳(Evelyn Chan)
【项目类型】酒吧 BAR
【项目规模】360m2
【施工单位】杭州艾丽蒙特工程有限公司
【项目摄影】施峥 / 奥观建筑视觉
【项目地址】西湖区学院路123-2
【完工时间】2018/8
【撰文 】l WRITTING:朱啸尘(Eason Zhu)
COS.MOS 29 源自于希腊语KOSMOS,基本意思ORDER,据说由古希腊哲学家、数学家毕达哥拉斯首创,表示一个由多个部分构成但又和谐有序的体系,是CHAOS的反面。关于COS.MOS 29,一个城市夜生活新体验中心,不同领域的几个年轻人一拍即合要做一家有识别度与契合当下年轻生活方式的一种夜空间体验空间。项目位于杭州市西湖区学院路123-2。COS.MOS 29 空间想传递的是几个空间界限的真实存在却有很强交融性的表达。人与人之间的界限与空间形成的呼应,这是一种模糊的定义. 店内由两层半的关系构成,三层楼外立面由极简的灰色网格和金色logo组成,从外看内模糊朦胧,从内看外,车水马龙。有条故意挑高供窥视室内的结构横框,走过的路人都会踮起脚尖好奇的看一下内部环境。
大门的左侧,玻璃壁龛收藏着一些有历史的黑胶,喜欢音乐的人从门口就会找到一丝共鸣。从入口进入由一排正列亚克力半拱造型打破雕塑感极强的入口空间,从灰色雕塑空间延续至酒吧深处,做足了引导性的仪式感。
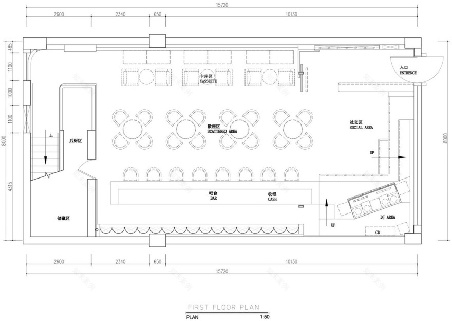
从入口空间走出进入内部,空间突然拉高至六米, 整个混凝土结构空间非常强的攻击性,DJ台区域延伸局部台阶错落可满足人随意坐,站,跳等肢体行为。灰色的空间中穿插着一排红色的条光,并且根据音乐编程各种变化效果,这个区域被定为Social Area。
从DJ台延续至九米长的混凝土吧台区域,吧台展示柜由红色网格组成,红色代表一种激情,在宇宙中探寻着激情。
散座区域,一侧是红色氛围的吧台,另一侧是白色透明的亚克力边缘带着冷光,一个非常强烈的火与冰对比, 这是两个人类身体敏感的元素, 交融又是另外一个空间想表达的观点,空间与人一样,需要有一定的交融性,故事才会慢慢展开。
有一抹红色在一层空间的尽头,由于那束光的方向,暗示着空间由此延续。
在楼梯的必经之路上,有一个星球。凹凸肌理的圆球,在整个黑色楼梯区域中尤其醒目,这也是代表宇宙空间的一个具象表现。
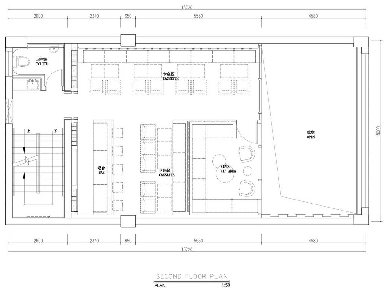
二楼空间是卡座与VIP区域,空间中增加了木头与玻璃的自然材料,提升了空间的品质感与舒适性,在二楼可以俯视一楼的SOCIAL AREA, 两层关系分割却交融着。
宇宙是一个大的生命,江流入海,落叶归根,我们是宇宙中的一息,我们是大生命中的一分子。不是每一道江流都能流入大海,不是每一粒种子都能成熟发芽,生命中不是永远快乐,也不是永远痛苦,快乐与痛苦总是相辅相成的,在快乐中,我们要感谢生命,在痛苦中,我们也要感谢生命,因为快乐、兴奋、痛苦又何尝不是美丽呢?——冰心
▼一层平面图
▼二层平面图
更多实景推荐:
红与烈酒 · Wann lounge艺术空间酒吧
别具一格的海边酒馆 | Ly龙丽仁室内设计
杰璐设计——鹅岛精酿啤酒吧
客服
消息
收藏
下载
最近





























