查看完整案例


收藏

下载
【项目名称】长春·净月皇觅楼
【项目类别】酒店宴会中心
【设计单位】灑俊设计事务所
【主创团队】灑俊设计团队
长春·净月皇觅楼宴会中心
清高宗乾隆,勤于政事之余,尤爱南巡,于乙酉年(1765)游至钱塘湖一带。中郎先生有言,西湖最盛,为春为月。帝览此夺人心魄之奇景如古人所言也,乃兴盛,不意天雨,众急求一处以避雨。适观一雅楼于幽林之间,帝遂带其从者入此楼,观壁上书画,皆出自名家之手。后乃知此楼竟属元伯雨先生之舍,并名此楼为“黄篾楼”以表身之出淤泥而不染之志。又由帝之造访,后人改其名为皇觅楼。 皇觅楼品牌文化视频
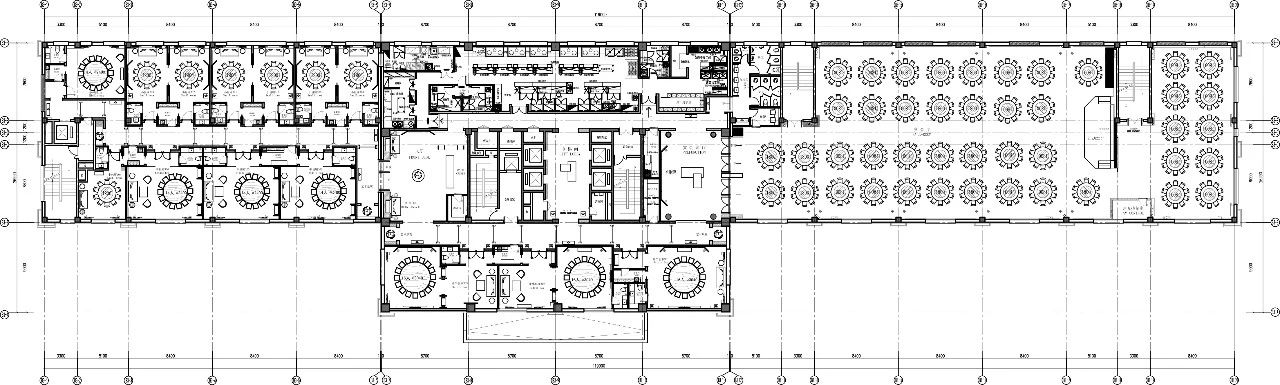
皇觅楼平面图
更多实景推荐:
臻品海鲜餐厅
Spoonfed餐厅
工业风餐饮
客服
消息
收藏
下载
最近




























