查看完整案例


收藏

下载
东方卫视《梦想改造家》战略合作媒体
本期改造迎来了一对有着40公分撕漫身高差的新婚小夫妻,他们的家位于上海一套50年代的老公房里。当17年的爱情长跑终于修成正果,却遇上了一个“施展不开的家”,23㎡的居住空间,令新婚生活捉襟见肘......
他曾爆改11㎡老破小,打造功能全备的舒适寓所;也曾焕新75㎡百年老弄堂,实现带有电梯的三居小洋楼......这一次,素有“空间魔法师”的设计师史南桥再度接手小户型极限改造,这个23㎡的小窝将会如何变身?
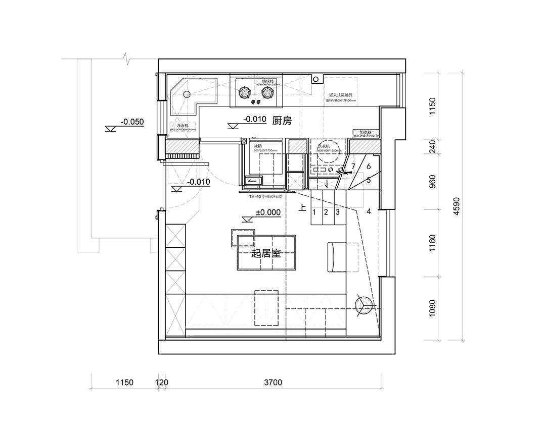
一层是夫妻俩的主要生活区,13㎡的面积将客厅、餐厅、卧室、办公、娱乐、会客、健身集于一身。日子越过越长,收纳空间空间也严重不足,杂物堆积。
男主人爱好下厨,但狭小的厨房属实委屈了他181cm的大高个,稍不注意就会碰到油烟机砸着头。
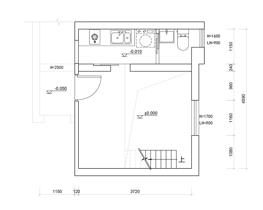
卫生间紧挨着厨房,1㎡的空间要实现三个用途:淋浴房、洗手间、洗衣间。房子排水老化,洗衣排水如果不处理干净就会出现反臭发霉的问题。
通往阁楼的木梯年久老化,上下楼梯时会发出吱嘎响声,存在很大安全隐患。阁楼是女主人父母曾住的卧室,屋顶倾斜让人直不起腰,只能废弃做储物间。两个天窗分别南北朝向,修修补补为这个家遮挡了几十年风雨。
阁楼往里走是委托人许小姐少时的卧室,面积不足3㎡,狭小的空间里也堆满了杂物。
搬家结束后,设计师在整理和细化方案的同时,邀请委托人夫妻来到了自己的工作室,特别搜集了男女主人坐卧行用等方面的相关数据,来实现更精密的设计。
房屋拆除工作开始,设计师原本打算去掉厨房和客厅之间的隔墙,方便重新划分空间,但这面墙承载着屋顶楼板的部分承重,因此不能完全拆除,方案一无法实现。
随后设计师采取了第二套方案,把客厅层高从原来的2.9m降低至2.2m。搭建工字钢结构并砖砌三个承重柱,加上原本隔间墙的支撑,实现了一个更规整的加固系统。
第二套方案保留了原本的入户门位置,并利用入户门区域设置玄关,同时增加收纳。卫生间挪到二楼,让出更多厨房使用面积。
拆除阁楼原本的壁橱间,楼上面积扩大至12㎡,出于安全考虑,保留与公共走道相连的楼板部分,并利用这个高度差,延伸出收纳空间。
原壁橱间的位置分隔出一个三分离的卫生间,利用不同层高实现使用面积的最优化。男女分道进入卫生间,配合到了委托人夫妻的身高差,实现人性化的设计。
改造期间碰上上海的台风天,设计师也借此检查出房子的防水问题。
隔音差是老房的老问题了,委托人这间房子和邻居共用一面墙,墙面厚度也不一致,施工方利用钢结构校平,再加上木饰面和隔音腻子,打造了一套系统有效的隔音带。
考虑到房屋老化通道昏暗,设计师在公共走道区域增加光源,安装上晴空灯,照亮回家的路,一个小小的设计动作营造出了无限的温馨氛围。
入户玄关功能齐全,营造出家的仪式感和舒适感。鞋柜根据夫妻俩的人体数据定制打造,换鞋凳和衣帽钩做隐藏式处理,不占空间。
结合男女主人的日常家务分配,厨房适配男主人身高,洗衣区则刚好容纳女主人进出,设计师还贴心地安装了烘干机,解决阴雨天晾晒不便的问题。
客厅开阔敞亮,错落灵动的空间布局将原本杂乱无序的功能区彻底划分开来,满足委托人夫妻日常生活,也为娱乐休闲提供充足的空间。
客厅采用运动地板,日常健身也不会对楼下造成噪音干扰。多功能折叠茶几“兼职”餐桌,满足多人用餐。
双动线楼梯是一大亮点,利用冰箱柜和卡座沙发上方空间放置,实际不消耗空间的同时,增强了实用性和趣味性。
两侧楼梯向下汇聚到窗边,指向女主人的办公桌,拉开一旁的抽屉组成阶梯,同时也兼顾收纳功能。
卧室床底和整面墙的壁柜保证了充足的收纳空间,黑色镜面的设计既保护隐私性又减弱狭小空间的局促感。男主人的工作台同样面向窗户,视野开阔。
满载过往回忆但已破旧不堪的老木梯,在设计师的手中开启了第二次生命旅程。时隔多年,委托人许小姐再次坐上房梁,眼前是浩瀚星空,身后是温馨小家。
原本逼仄狭小的壁橱间连同降板区域连接成淋浴间、洗手台和卫生间的三分离设计,双动线、双门洞的设计做到了以人为本的设计核心。
硬装(含人工):18.6万
软装(含电器):9.5万
改造共计花费:28.1万
平面图
DESIGN PLAN
改造后一层
改造后二层
原始一层
原始二层
立面图
DESIGN PLAN
客厅立面1
客厅立面2
双动线
厨卫立面1
厨卫立面2
原始立面1
原始立面2
客服
消息
收藏
下载
最近














































































