查看完整案例

收藏

下载
▲更多精品,关注“搜建筑”
都市中的自然栖息地
交子大道木屋顶餐厅
BEHIVE 致野建筑
01. 基地环境
成都交子大道是一条两公里长东西向的林荫道,两侧各有约 50 米宽的人行景观空间,其中散布着二十余个规模几百平米不等的服务驿站,本案即为位于 N4-3 地块的餐饮建筑。基地南侧面向城市道路,北面隔着车道为高层住宅塔楼,往东可以远眺交子大道端点的双塔。初次来到场地,我们感受到的便是都市的车水马龙与水泥丛林的紧迫感。我们直觉地希望能设计一栋充满自然气息的建筑,一个从建构形式到材料选择上都易于亲近的空间,在紧张忙碌的环境中为人们营造一个放松闲适的用餐场所。
02. 空间概念
餐厅面积约 600 平米,南侧的两层用餐区最大化地利用景观步道,厨房与后勤空间则靠北集中。场地南面的镜面水池是进入建筑之前重要的过渡空间,水面映射着舒展的屋面与天空,让人们在浮光掠影中放松心情。
建筑的量体希望建立起坡屋顶的传统四川民居与简洁利落的现代城市之间的对话。餐厅东立面延续了四川传统木结构建筑倾斜的屋顶轮廓与立面肌理,西立面衔接了交子大道周边方整的建筑语汇。两者迥异的形体由一个扭转的屋面自然地连接在一起。屋面的轮廓轻如羽翼,动态起伏的双曲面顺着蜿蜒的屋脊线延展,轻盈地覆盖着下部的餐厅与景观,给予用餐的人们自由奔放、充满动感的空间氛围。
03. 结构体系
建筑的结构为钢木混合结构。斜向交叉的网格状胶合木木梁顺应双曲面形体排布,由室内一路延伸至檐口,形成了人工建构的自然与室外绿意的对话。为了增加稳定性,钢柱在二层楼板以上分叉,并以十字型钢梁搭接到木屋顶两个网格的中心点,形成树枝般的结构构件。
本案结构设计的最大挑战在于如何实现屋面在南侧超过 4 米的悬挑。建筑在前排钢柱的基础上增加了四根斜柱以支撑木梁,使屋面能够低垂于镜面水池之上而无需落柱,同时形塑了沿着幕墙的狭长挑空空间,让在一层的人们也能看见二层生动的木结构。
04. 外围护表皮系统
建筑立面设计尽可能的通透以突出木结构在室内外的连续感受。南北侧的玻璃幕墙呼应了屋顶木梁的走向,自然而然地形成了连续转折的动态轮廓。在室内灯光的照亮下,街上的行人可以从外侧透过玻璃清晰地看到整个木屋顶。
金属屋面采用了蜂窝幻彩铝板,在阳光下反射环境呈现出渐变的光泽。铝板以层层叠落的形式包裹着动态的屋面,每层表皮之间的断面采用乳白色的亚克力与 LED 灯,在夜晚它们发出柔和的灯光将屋面层层晕染。
▲总平面 致野建筑
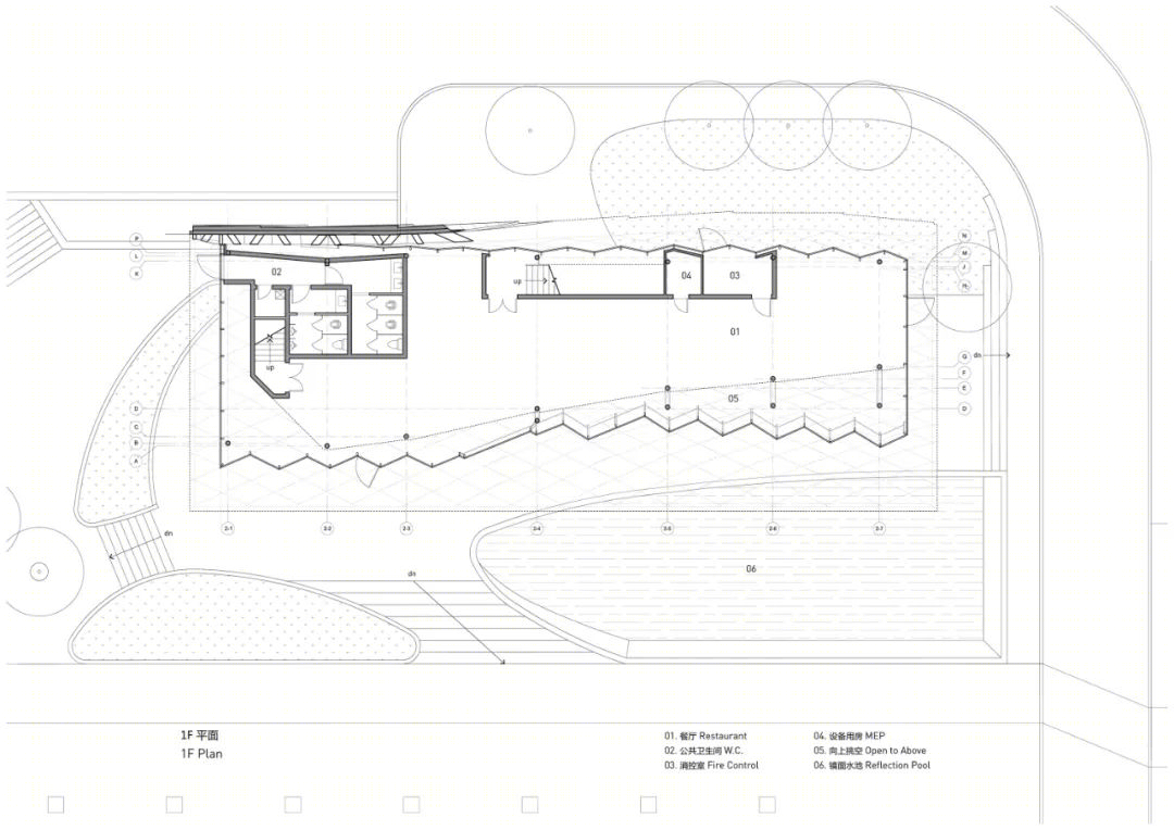
一层平面 致野建筑
▲二层平面 致野建筑
▲立面 致野建筑
▲ 剖面 致野建筑
▲轴测 致野建筑
▲量体扭转 致野建筑
项目信息
项目名称: 都市中的自然栖息地——交子大道木屋顶餐厅
建筑事务所/公司/机构/单位: BEHIVE 致野建筑
公司所在地: 上海市静安区西康路 608 号 3 楼
项目完成年份: 2022
建筑面积: 600㎡
项目地址: 成都市高新区交子大道 456 号
主创建筑师: 张铭政,欧阳见秋
视觉信息
摄影师: 虚服摄影,陈尚儒
项目参与者
设计团队: 张铭政,欧阳见秋,李英博,上官缙文,陈祎珺,孙建彬
委托方: 成都高投建设开发有限公司
餐厅运营品牌方: 四川川西坝子餐饮管理有限公司
建筑施工图: 四川省建筑设计研究院
木结构深化设计及施工: 上海思卡福建筑科技有限公司
结构设计: 四川省建筑设计研究院
幕墙设计: 四川省建筑设计研究院
机电设计: 四川省建筑设计研究院
室内设计: HDC 蜂鸟设计
景观设计: BEHIVE 致野建筑,HDC 蜂鸟设计
施工总承包方: 成都倍特建筑安装工程有限公司
屋面双曲蜂窝铝板施工方:上海沈飞新型幕墙工程有限公司
玻璃幕墙施工方:众置建工集团有限公司
▼ 更多精品·
点击关注
本资料声明:
1.本文为建筑设计技术分析,仅供欣赏学习。
2.本资料为要约邀请,不视为要约,所有政府、政策信息均来源于官方披露信息,具体以实物、政府主管部门批准文件及买卖双方签订的商品房买卖合同约定为准。如有变化恕不另行通知。
3.因编辑需要,文字和图片无必然联系,仅供读者参考;
推荐一个
专业的地产+建筑平台
每天都有新内容
合作、宣传、投稿
联系
客服
消息
收藏
下载
最近









































