查看完整案例


收藏

下载
▲
更多精品,
关注
“
搜建筑
”
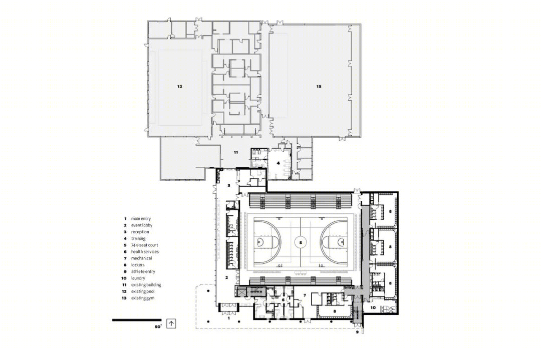
康涅狄格州西哈特福德的圣约瑟夫大学聘请JCJ建筑事务所对学校现有的O’connell运动中心进行翻新和扩建,使其成为一个灵活的多运动场馆,以适应现有和新的大学项目。这个31277平方英尺的新设施以健康和健康为核心,是学生活动的多功能纽带,超越了传统的体育项目。
The University of Saint Joseph in West Hartford, Connecticut, engaged JCJ Architecture to renovate and expand the school’s existing O’Connell Athletic Center into a flexible multi-sport arena and venue to accommodate existing and new University programs. The new 31,277-square-foot facility hinges on health and wellness and serves as a multifunctional nexus of student activity that extends beyond traditional athletic programs.
作为JCJ建筑事务所为校园设计的第四个新建筑,该项目是公司和大学之间长期合作关系的延续。学校的领导想要一个有益于整个校园社区的设施,并提供体育运动之外的社交机会。该设计便于行人进入,并与校园中心部分建立了更强的联系,消除了之前将建筑分隔开来的停车场。此外,该设施位于学生中心的正对面,为学生活动创造了一个中心枢纽。
As JCJ Architecture’s fourth new building for the campus, the project is a continuation of a longstanding collaborative relationship between the firm and the University. The school’s leadership wanted a facility that would be beneficial for the full campus community and provide social opportunities outside of athletics. The design is accessible for pedestrians and creates a stronger connection to the central part of the campus, eliminating the parking lot that had previously set the building apart. Additionally, the facility is situated directly across the street from the Student Center, creating a central hub for student activity.
JCJ建筑事务所带头设计了新设施的建筑和内部装修。该公司试图将现有校园建筑的传统红砖主义美学与现代和动态的新设施相协调,以表明该机构的再创新承诺。最终的设计将红砖的材质和黄色的门洞与时尚现代的玻璃造型、简洁的线条、悬臂和投影结合起来,这些都是校园所有建筑的标志。巨大的窗户使外墙充满活力,并突出了里面的活动。大学的颜色,蓝色和黄色,被整合到外部玻璃中,增加了另一层联系和视觉刺激。
JCJ Architecture spearheaded the architecture and interiors of the new facility. The firm sought to reconcile the traditional red brick colonial aesthetic of the existing campus buildings with the modern and dynamic new facility that would signal the institution’s commitment to reinvention. The resulting design marries the red brick materiality and yellow doorways that are a hallmark of all buildings on campus with sleek and modern glass forms, clean lines, cantilevers, and projections. Expansive windows animate the façade and highlight the activity taking place within. The University’s colors, blue and yellow, are integrated into the exterior glass to add another layer of connection and visual excitement.
建筑物的入口处充斥着自然光,光线从朝南的窗户射入,窗户上装有遮阳板和遮阳棚。对自然光的强调和温暖的木质镶板给来访者带来了温暖的欢迎,而大窗户则加强了与校园的视觉联系。室内装饰,如体育品牌和木制奖杯墙,都是为了让客人的体验与校园内的其他建筑不同。主厅是一个明亮、通风和灵活的大厅,既是比赛之夜的售票和特许经营区,也是学生学习或社交的舒适空间,有高脚桌和休闲家具。
The entrance to the building is awash with natural light that streams in through the south-facing windows, which are outfitted with sunscreens and shading overhangs. The emphasis on natural light and warm wood paneling extend a warm welcome to visitors, while the large windows enhance a visual connection to the campus. Interior finishes such as sports branding and a wooden trophy wall tie in a sense of athletic excitement to differentiate the guest experience from other buildings on campus. The main lobby is a light, airy, and flexible concourse that serves as both a ticketing and concessions area for game nights and comfortable space with high-top tables and casual furniture for students to study or socialize.
从项目一开始,该项目就依赖于创建一个完整的NCAA规范篮球场。大堂的木质天花板元素延伸到中央体育馆,并环绕内部,提供了空间之间的无缝连接。为了扩大设施的吸引力和用户,多个训练室为竞技运动员提供训练的机会,也为更大的学生群体提供锻炼的机会。此外,学生健康服务套房以前位于一个较小的外围建筑,现在位于新设施的一层,强调对健康的关注。
From the outset of the project, the program hinged on the creation of a full NCAA regulation basketball court. The wooden ceiling elements in the lobby continue into the central gymnasium and wrap around the interiors, providing seamless connectivity between the spaces. To widen the appeal and usership o
f the facility, multiple training rooms provide opportunities for competitive athletes to train as well as the larger student body to exercise. Additionally, the student health services suite, formerly housed in a smaller outlying building, now resides on the ground floor of the new facility, emphasizing a focus on wellness.
平面图
建筑师:JCJ Architecture
地点:美国
面积:31200平方英尺
年份:2021
更多精品 校园建筑
▼点击关注
本资料声明:
1.本文为建筑设计技术分析,仅供欣赏学习。
2.本资料为要约邀请,不视为要约,所有政府、政策信息均来源于官方披露信息,具体以实物、政府主管部门批准文件及买卖双方签订的商品房买卖合同约定为准。如有变化恕不另行通知。
3.因编辑需要,文字和图片无必然联系,仅供读者参考;
搜建筑·矩阵平台
作品展示、
招聘发布、更多相关
合作、宣传、投稿
联系
推荐一个
专业的地产+建筑平台
每天都有新内容
客服
消息
收藏
下载
最近




















