查看完整案例

收藏

下载
▲更多精品,关注“搜建筑”
有很多买房的客户会觉得大三房户型其实大可不必,认为大三房户型和小三房户型的区别就是面积大了而已。
如果你也这样认为,那么你就错了,如今各家开发商都会针对户型做升级优化,近两年的户型升级中,90 平小三房是非常常见的了,也比较中规中矩,反而是 120-160 平,甚至更大面积段的改善三房有不少惊喜,可以说是“会思考的居住空间”。
下面,来来看看,改善三房户型,近两年都呈现出哪些趋势:
户型动线更清晰;
功能空间更多、更丰富;
独立入户,双玄关;
社交厨房取代传统厨房,岛台开始成为标配;
竖厅到横厅,再到巨厅的趋势;
多阳台、空中花园;
......
01户型动线更清晰
好的户型动线设计能大大提升空间的居住体验,通过合理的动线规划,能有效的减少或避免住户在空间内重复行走、劳动。
比如下面这款户型整体开间约 4 米,而且是客、餐、厨同宽。不仅视觉上更开敞方正,而且会围绕家具构成多条洄游动线,穿行更通畅。
南侧那个“跑道式”阳台,进深约 1.5 米,开间约 7 米,连通客厅和南次卧,构成一条洄游动线,这对 120㎡相当奢侈。
“跑道式”阳台样板间实景
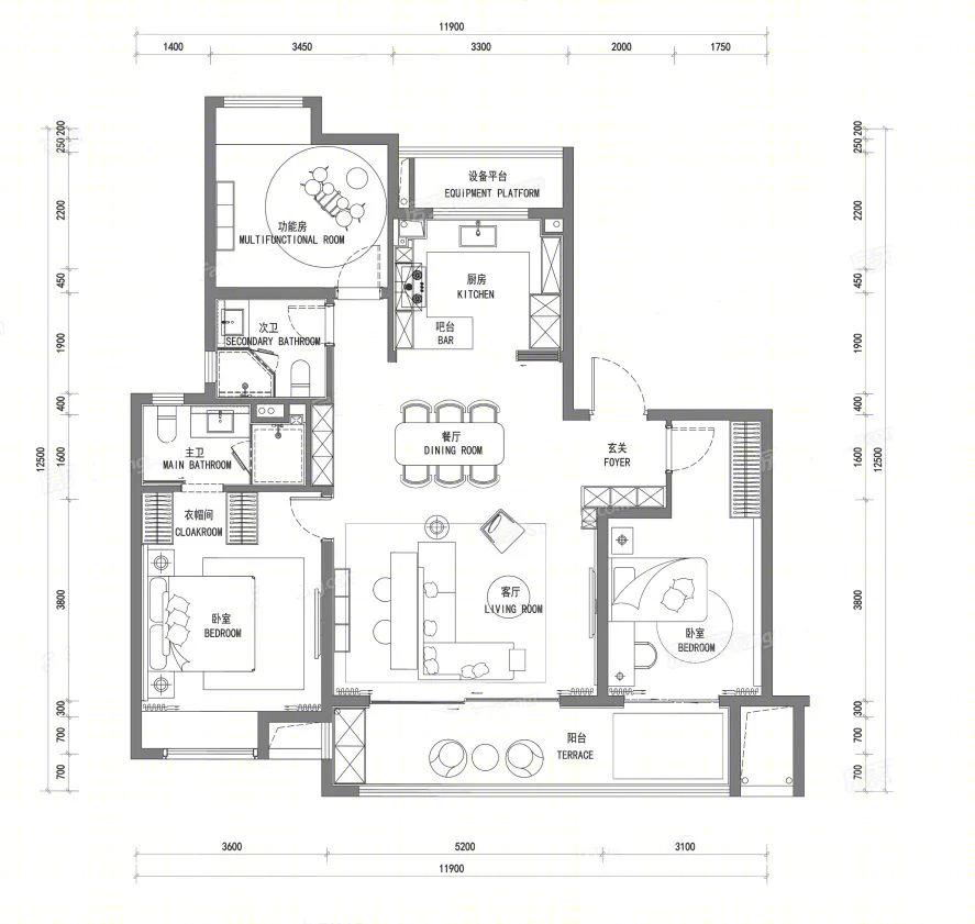
苏州仁恒·溪云雅园入户动线就是这样的:进门后,在玄关换鞋,然后拐到卫生间干区洗手,再穿行去厨房、客餐厅,或是回卧室。
这样的设计,充分考虑到新冠疫情之后人们生活习惯的改变,满足大家对归家消杀的需求。
苏州仁恒·溪云雅园 140㎡户型
通过功能空间整合、科学合理规划各功能板块,以生活场景代入,实现动线的优化和动静的分离,提升生活品质。
02 功能空间更多、更丰富
在空间逻辑上,不仅仅要有空间宽度,改善大三房的功能也更加丰富。
① 储藏室
随着生活水平的提高,人们对生活质量的要求越来越高,对于物质需求也越来越丰富。繁杂的物品直接影响到家中的干净整洁,一间看似小小的储藏间却有着重要作用,只要合理设计,不仅可以放置杂物让整个家美观舒适,更能随心打造为另一个百变空间。
比如下面万科的户型,入户后,餐厅一侧有一个储藏间,既隐蔽又实用,是进门后动区和静区的过渡。
武汉万科金域国际 140 平户型
穿过的外套、准备送去干洗的衣服、访客的衣物、贵重的鞋子、帽子、皮包、行李箱等等,都可储存于此,尽可能减少外来污染。
郑州金地名悦 126
郑州融创空港宸院 130
储藏间因面积相对较小,其每一寸面积都要合理利用,注意室内规划分区。
② 家政间
下面这款户型堪称经典,三开间朝南,厨房直接和一个 6㎡,全赠送的家政间相连,煲汤煮饭、衣物洗涤两不耽误。
天津上东金茂悦约 120㎡三室户型 图源:冷眼观楼
天津上东金茂悦约 120㎡样板间
万科西庐 125 平米户型进门后,沿左侧便是家政动线,家政间位于厨房一旁,超级方便。入户右手边还有个储藏室,可以堆放购物车、大件玩具、日用品囤货等等,非常实用。
万科西庐 125 平米户型
北京万科朗润园 113 平米户型 ③ 多功能空间
下面这个户型在空间设计上更注重人性化,关注家庭成员之间的互动和个人需求的满足。
郑州泰禾东府大院 120 平米户型
多功能灵动空间随心规划,轻松满足家庭成员个性需求,可以是一间茶室;它还可以是孩子的玩具房或是先生的书房、太太的收纳间演变出不同的生活功能,给居者更多可变性和灵动性。
03面积不止于大
居住体验更舒适
在改善产品上,人们更多关注的是空间舒适度、享受性,而大三房的空间自由度更大,兼顾商务、收藏、社交、娱乐等多个维度。
① 独立入户,双玄关
比如,世茂北京天誉 145 平米户型做到了一梯一户;独立玄关增加了豪宅私密性和尺度感。
世茂北京天誉 145 平米户型
世茂北京天誉 145 平米户型样板间示意图
中海首钢·天玺 122 平米户型
②社交厨房取代传统厨房,岛台开始成为标配
前几年,可分可合的开放式厨房就开始流行了。比如南昌万科这个 130 平的三房户型,在厨房设有吧台,这样妻子站在吧台操作的时候,真正能跟客餐厅的人互动。
万科南昌区域 130 平户型
增强了交互性,让客餐厅的人能看到厨房正在忙碌的人,在厨房做饭的妻子也能看到在客厅玩耍的孩子,可见岛台已经作为单独的模块引入户型迭代中了。
还有融创华中区域年初新推出的 135+创新户型,同样注重互动,将操作台面向客餐厅。
融创华中区域 135+户型 图源:上海柏涛
成都建发央玺 143 平米户型
③竖厅到横厅,再到巨厅
横厅和边厅会让整个社交空间显得非常大气,形成一个更大的可变空间,不但可以满足客户的多场景需求,也增强了户型的社交性。
横厅设计提高动区体验
下面这个户型做了横厅设计,客餐厅一体化,形成 6.3 米开间的横厅,大大提升户型空间感,而且联动景观阳台,可以实现多个场景。
中国铁建·海语熙岸 128㎡3+1 房
比如中海甲叁號院的 145㎡户型:
7 米的大横厅,能够为空间设计带来更多的可能性以及更多元化的功能划分。
再比如融创华北创界 F5 户型中建筑面积约 140㎡户型,客餐厅的设计和巨厅概念比较接近,宽敞开朗的公共空间与开放式社交厨房组成家庭核心活动区,整体效果不比豪宅户型差,而且还预留了一个多功能空间,为家增加了更多可能性。
融创华北,创界 F5-140㎡
贵阳铁建城 151 平米户型,7.6 米大横厅连接同宽阳台,大开间设计,容纳生活更多想象空间。
贵阳铁建城 151 平米户型
德商花样年碧云天骄 119 平米户型④空中花园比如郑州瀚海航城,将“垂直森林”的理念再次进行了诠释。
郑州瀚海航城 165 平米户型
将绿意延伸至天际,打造人与自然和谐相处的家。在户型空间上,专属空中花园式阳台,巨幅观景视野,感受清风徐来,绿意满目的自在。
郑州瀚海航城效果图
中国铁建贵阳·花语墅这套 136㎡户型,景观露台面宽达到 12.6m,进深 4.1m,赠送面积达到“可怕”的 51.6㎡。最小的也有 6.4m*4.1m,赠送面积达到 26㎡。
与露台长边对位、融为一体的横厅,开间 8m,进深 4.8m,面积达到了 38.4㎡。
中国铁建贵阳·花语墅约 136㎡户型图
中国铁建贵阳·花语墅“空中庭院”效果图
结语:做好了这几点,改善大三房达到了一定的均好性,市场自然会买单!
▼车库内容 延伸阅读:
地库新设计理念、工艺—— 迭代升级趋势
各大房企—— “高端”车库的设计做法!
万人观摩,“网红”地库:标杆产品这样打造!
真正的“豪宅”车库,应该是这样的!!
2 月 24-25 号,考察郑州精品项目
▼点击下图,了解报名
▼更多精品·点击关注
本资料声明:
1.本文为建筑设计技术分析,仅供欣赏学习。
2.本资料为要约邀请,不视为要约,所有政府、政策信息均来源于官方披露信息,具体以实物、政府主管部门批准文件及买卖双方签订的商品房买卖合同约定为准。如有变化恕不另行通知。
3.因编辑需要,文字和图片无必然联系,仅供读者参考;
搜建筑·矩阵平台
—— 作品展示、直播、访谈、招聘
——
合作、宣传、投稿 联系
推荐一个专业的地产+建筑平台每天都有新内容
客服
消息
收藏
下载
最近































