查看完整案例

收藏

下载
▲
,
点击上面“搜建筑” 关注即可
豪宅市场的今天,谁才能堪称“真豪宅”?一层一户的全平层绝对可以!
一层一户大平层,面积奢阔,空间尺度开阔;居住功能完善;可享有360°的环绕全景观;拥有更高的尊贵感和私密性。
好的居住空间不是豪宅式的华丽装裱,而是对每一个居住品质的考量。
今天一起来看一看,一层一户的全平层真豪宅,有多豪!
重庆龙湖舜山府
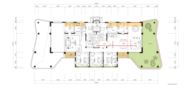
这是一个极大的户型:套内约354㎡、建面约427㎡,这是龙湖在全国范围内,第一次把平层户型做到这个尺度。先来看看户型图
重庆龙湖舜山府
套内约
354㎡观山大平层户型图
他还是一个
”功能“、“方正”、“动线”、“尺度”、“温度“等方面都
十分耐打的户型,我们来具体看一下这个户型。
• 独立核心筒 两梯一户
每个单元只有一户人,所以这个单元的核心筒,被包在了
整个户型的最中间
,这种布局方式,是大平层的较高形态,
三面开的“独立核心筒”
,交通动线更通透、直接、高效、私密。
•
三个入户大门 三分离三重动线
特别要提及的是龙湖精心设计的
三个入户大门
,打造
三条归家动线
,且每个入户门配置
独立入户玄关
,仪式感和私密感更强。
①
访客动线
:从玄关直接进入客厅、餐厅、景观阳台等公共空间,路线与主人的卧室等私密区域完全不交叉;
②
主卧动线
:主人可直接坐电梯进入主人私人区域;
③
次卧+后勤动线
:老人、工人、儿童三者可通过后勤独立电梯快速到达各自的房间。
•
别墅级的功能分区
入户动线分离的形式也实现了大平层里别墅级的各层分区式布局,起居区、客卧区、主人区,做到分而不离,互不打扰。
•
五个卧室全套房设计,主卧面积超越普通三房
五个卧室全套房设计,连保姆房都是套房。每一间套房都设有阳台或者超大飘窗,可以说为家庭的每一个人都提供了独立而专属的空间。
主卧套房
更是花了诸多心思的重头戏:
拥有
超过10米的开间
(卧房+主卫),这尺度都超过了大多数常规户型的客厅!
接
近100㎡
,超越普通三房的面积;
主卧入口处过渡的
换衣玄关区
、
男女独立衣帽间
、
主卫四件套
,
卧室书房一体化
,做足了仪式感,更大程度满足主人的奢华享受。
•
超大空间 超22m的超大开间
整个房子的面宽超过了
22m
(含阳台),是普通独栋别墅的两倍,完全被玻璃幕墙包裹,南向采光面更大。
•
270°转角
大横厅+
大阳台
起居厅包括了
270
°
采光的
双客厅
、
L型大阳台
、茶室、特意设计的入户玄关、一个很大的餐厅,面积接近
130㎡
。
让人挪不开眼的,是这个
270°转角大阳台
,简直堪称“跑道式阳台”。
重庆龙湖舜山府阳台 实景
岳阳南湖天著瞰宇平墅
南湖天著团队研究了国内外几百家大平层,深入探索未来“生活场景的塑造”与“生活方式的打造”,引入产品领域
“环绕屏”概念
,设计了约251-545m²平墅产品,实现
独立双核心筒
,
两梯一户
设计;2
70°环幕视野俯瞰整个南湖,单户超
40米
面宽,客厅面宽约
15米
,主卧面宽约
7.25米
,客餐厅挑高约
7.18米
,最高层高约
3.59米
,奢侈尺度带来极高的居住舒适感,也让中国大平层的迭代上升到新阶段。
▼
上户型
▼
将
别墅级的庭院搬入高层
,让空中庭院成为塔尖人群家庭生活的原点,也让该项创新成为中国大平层史上的重大突破!
•
长
20m
、宽
13m
、高
7.18m、
面积达
176m²
的
立体空间
在岳阳南湖天著二期平墅,空中庭院乃一个长达
20米
、宽达
13米
、高达
7.18米
的
立体空间
,面积阔达
176m²
(数据源自536m²瞰宇平墅)!
效果图
效果图
•
咬合式结构
如何做到每户都拥有一个高达7.18米的立体庭院?岳阳南湖天著采用了镜像设计,如约536m²瞰宇平墅与约456m²观心平墅,奇数层与偶数层的院子分列东西两侧,形成对称美感。
约536m²瞰宇平墅&约456m²观心平墅L型咬合式结构示意图
约320m²与约255m²听音平墅,则将奇数楼层和偶数楼层错开,比如约320m²听音平墅为偶数层,庭院分列东西两侧;约255m²听音平墅则为奇数层,庭院配置在中间。在这种前提下,奇数层与偶数层均可以各自得到一个约6.6米高的空中庭院。为了保障私密性,
所有院子的顶上对应的都是实墙,杜绝了楼上与楼下的对视尴尬
。
约320m²&约255m²听音平墅L型咬合式结构示意图
进阶高品质住宅的层高标准需达3米,才能让居住者感觉舒适。岳阳南湖天著二期平墅不惜增加约20%的主体成本,将客餐厅的层高提升至7.18米,其他区域亦高达近3.59米。
挑高约7.18米客餐厅
挑高约7.18米餐客厅示意图
客餐厅示意图
•
全套房设计
约536m²瞰宇平墅采用
全套房设计
,全独立卫浴,礼仪之外,近乎五星酒店总统套房居住体验,尊重每一个家庭成员私密生活。
6套房设计
约90㎡的套房主卧
,拥有观景阳台、阔达
20m²的独立衣帽间
、约
14m²的独立卫浴
,集雍容大气与艺术细节于一体。约
7.25米超大面宽
,都与湖景做了响应,醒来的第一眼,就能感受到壮阔的南湖湖景。
主卧套示意图
•
高定三大入户动线
宾客动线:从主人电梯出来,进入很具仪式感的玄关,穿越接待厅,直至客厅落座,浩瀚南湖顿时成为接待宾客的宏大背景。
宾客动线示意图
主人动线:主人归来,从玄关步入艺术走廊,直接进主人套房,换上家居服,即可享受舒适的个人时光。
主人动线示意图
后勤动线:保姆通过家政电梯,直达保姆房及家政区,不动声色开始准备餐点。
后勤动线示意图
每个区域,互相联通,又可以互不干扰,乃为极具人性化的设计考量。
合肥融创滨湖印
融创滨湖印“
顶配”产品最大面积拓展至230㎡,且为一层一户,一栋仅8套,滨湖印仅16套,是市场罕见的产品形态。
滨湖印230户型图
从户型图上看,滨湖印230㎡超乎想象的户型设计:
南面横向超大阳台面宽约
9.8m
;
主卧4功能套间设计面积达到约
56㎡;
L型的
270°转角半封大阳台
,
都是目前市场独有的产品尺度,
且滨湖印对标一线超级豪宅,精装风格灵感取自纽约柏悦酒店,将率先体验国际化的居住生活方式。
融创滨湖印230㎡室内效果图
它整体以大横厅、转角L型大阳台、双套房,以及高标准的精装修,配合适度奢侈的完整功能性和符合国际审美趋势的产品设计感,构成融创洋房的均好价值。
融创滨湖印230楼王L型阳台效果图
230㎡的洋房面积如果做个等式换算,使用感基本为300㎡的高层平层,也是300㎡墅类产品能实现的开间空间大小。
融创滨湖印230楼王单体效果图
南京融创滨江one
融创滨江one,沿用融创“壹号院”TOP系列打造滨江ONE项目,这也是南京首座壹号院基因作品。南京融创滨江ONE384㎡,
动静分离,两梯一户,
270°视野俯瞰江景、园景、城景,5室2厅5卫设计,壕无人性!
南京融创滨江ONE 384㎡户型图
中西厨设计、超大面积室外露台,双入户大门,5开间朝南,5个卫生间,主卧总统套房设计,除卧室外,包含大面积步入式衣帽间、双台盆主卫、阳台和书房,空中豪宅还带空中露台。
南京融创
滨江ONE室内效果图
南京融创
滨江ONE项目效果图
南京万科翡翠滨江
万科以国际化视野,带给南京的先进生活方式。从公布的户型图来看,亮点颇多,恪守瞰江原则,万科翡翠滨江打造了32°楼体瞰江角度、270°观景面等设计,将一线江景的核心资源价值融入到户型设计中:
南京万科翡翠滨江380㎡户型图
天空庭院
:天空露台瞰揽一线江景,庭院内部拥享自然天光;
分区场景
:动静分区,一方宴厅级会客场域,一方奢享静谧居所;
江景套房
:高定套房主卧设计,男女主人独立宽绰衣帽间;
入户礼序
:私家双梯双门入户,双玄关尽享尊贵归家仪式。
南京万科翡翠滨江室内效果图
上海九庐
陆家嘴北滨江豪宅
九庐三期
,这个楼王400㎡左右大平层,整体设计合理霸气,360景观视野
足够开阔;
五套房设计;北向客餐厅动区,南向套房静区。
陆家嘴北滨江豪宅九庐三期 户型图
郑州瀚海晴宇
郑州瀚海晴宇,炫丽的外观是项目一个突出的特点。不用分辨,这样造型自带豪宅的特性。
实景图
建筑立面的设计采用了深色铝板及玻璃幕墙板,使各塔楼主体与白色的流线型露台、阳台形成强烈对比,在视觉上凸显出挑部分的轻盈灵动感。
实景图
塔楼大胆的跳层处理,打破了一般住宅建筑呆板的、重复性强的立面效果。
实景图
平面设计上也采取了庄重、正式的中轴入口设计,并以东西方向轴线贯穿。
主人电梯位于平面正中,南北通透的起居空间位于入户的西边,配有中西双厨和佣人区。东面的卧室区动静分区,五个卧室均为套间,结合家庭厅的布置。
760㎡户型一 六室五厅七卫
760㎡户型二 六室五厅七卫
一层一户超尺度规划,户户设私家空中泳池,赠百余平超大空中花园,内部结构实现非承重空间的最大化,从而使主人根据自己的需求,定制会所、社交、居住等各项功能所需。
270°双面采光会客厅,连通泳池、露台,为居者创造商业会谈绝佳场所,以奢华格调满足居者圈层之需。
新加坡EDEN公寓楼
这个新加坡新的全平层公寓楼EDEN由太古地产开发,英国鬼才建筑师 Thomas Heatherwick 设计。
俯瞰垂直的“花园”立面©Hufton+Crow
这栋 22 层的独栋公寓也是非同一般,20层的全平层,每一层都有
282 ㎡的实用面积
,并享有
270度的绝佳视野
。
体量生成示意©Heatherwick Studio
设计对传统公寓楼的
方形体块进行了拆分
,将服务设施移至场地边缘,从而令每间公寓拥有
一个大型的中央起居空间
,尺度较小的独立房间和宽敞的贝壳状阳台则环绕在中央空间周围。
标准层平面图
室内分为起居空间、位于两个角的4间卧室以及公共服务区域。
中央起居空间
迈阿密1000 Museum
1000 Museum
被称为“有史以来极复杂的摩天大楼之一”。这一幢 62 层的奢华公寓,是扎哈·哈迪德过世前,设计完成的最大的住宅设计项目。包含了 83 套住宅单元,1套两层楼的复式公寓,4套连体别墅,8套整层公寓和 70套半层住宅单元。
来看看全部户型里最大的为“FULL-FLOOR PENTHOUSES(全楼层仅一户) ”,主要集中在50——57楼层。
全平层公寓户型图-5401
这个户型室内面积921㎡,仅阳台面积就113㎡
实景图
一层一户的全平层大豪宅就给大家介绍到这里,不知道有没有惊爆你的眼球呢?如果你还有更棒的案例,欢迎大家留言讨论哦~
本资料声明:
1.本文为建筑设计技术分析,仅供欣赏学习。
2.本资料为要约邀请,不视为要约,所有政府、政策信息均来源于官方披露信息,具体以实物、政府主管部门批准文件及买卖双方签订的商品房买卖合同约定为准。如有变化恕不另行通知。
3.因编辑需要,文字和图片无必然联系,仅供读者参考;
欢迎加入
户型创新设计(交流群)
群满员后,
联系
huxing006
推荐一个
专业的地产+建筑平台
每天都有新内容
合作、宣传、投稿
请加
客服
消息
收藏
下载
最近




















































