查看完整案例


收藏

下载
学校 "A+"是舒适城住宅区教育机构的延续。它是为600名学生设计的。学校的主要建筑特点之一是屋顶。它延续了 "舒适城 "斜屋顶的主题。它是不对称的,所以在外墙没有相同的视角。
School "Gymnasium А+" continues the complex of educational institutions at Residential Complex Comfort Town. It is designed for 600 students. One of the main architectural features of the school is the roof. It continues the theme of pitched roofs of Comfort Town. It is asymmetrical, so there is no identical angle of view on facades.
学校的建筑是无色的,但它是基于一个丰富多彩的内院。此外,它创造了一个对比与住宅发展的背景,所以建筑师强调了有趣的形状的建筑和学校的功能专业。
这个项目的重点是材料,不同寻常的金属质地,特殊的灰泥,以及特别进口的亚美尼亚玄武岩。
The building of the school is achromatic, but it is based on a colorful inner yard. Also, it creates a contrast with residential development on the background, so architects accentuated the interesting shape of the building and functional specialty of the school. This project focuses on materials, unusual texture of metal, special stucco, and specially imported Armenian basalt.
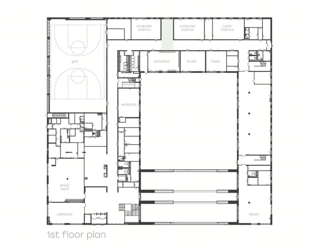
公共和行政职能部门位于学校的一楼。除了咖啡馆和食堂外,还有一个衣柜、一个医疗中心、一个健身房、一个教师室和一个图书馆。
图书馆被安排成一个教育中心:这里有俱乐部会议、讲座的区域,图书馆的出口也在学校的院子里,通往露天剧场。
Public and administrative functions are located on the ground floor of the school. There is a wardrobe, a medical center, a gym, a teacher's room, and a library in addition to the cafe and canteen. The library is arranged as an educational hub: here, there are zones for club meetings, lectures, as well the library has its exit to the amphitheater - in the courtyard of the school.
有三个体育馆-篮球和迷你足球,排球,和一个健身和编舞体育馆。大型体育场馆通过国际足联认证,配有记分牌,你可以输出任何数值(计数,秒表等)。
There are three gyms - for basketball and mini-football, volleyball, and a gym for fitness and choreography. The large sports gym is certified by FIFA standards, equipped with a scoreboard for which you can output any values (count, stopwatch, etc.).
大型体育馆的其中一面墙上装有攀岩墙。一个特殊的幕布大厅可以把体育馆分成两个房间,在这里可以同时上各种运动的课。
One of the walls of the large sports gym is equipped with a climbing wall. A special curtain hall can divide the gym into two rooms, where classes in various sports can be taken simultaneously.
在一楼,有一个能容纳200个席位的会议厅。它的声光系统的管理是通过平板电脑远程进行的。一楼的一条走廊是给初中的。
这里的游乐区适应了孩子们的需要:休息时,他们可以躺在“草地”上,可以躲在“房子”里,也可以骑在“藤蔓”上。
On the first floor, there is an assembly hall for 200 seats. Management of its acoustic and light systems is carried out remotely, using a tablet. One aisle of the first floor is given to the junior school. The recreation area here is adapted to the needs of children: during the breaks, they can lie on the "grass", hide in the "houses" or ride the "vines".
在二楼,除了课堂,还有公共空间:一间灯光艺术工作室、一间排练室(另外配备了吸声板)和一个能容纳150个座位的报告厅。窗户上特殊的窗帘使演讲厅变成了电影院。
On the second floor, apart from the classes, there are also public spaces: a light art studio, a rehearsal room (additionally equipped with noise-absorbing panels), and a lecture hall for 150 seats. Special curtains on the windows allow transforming the lecture theater into a cinema hall.
“体育馆A +”的庭院设计为圆形剧场的形式。天气好的时候,学校还会安排部分课程和一般性的学校活动、音乐会和剧院工作室的表演。
这个足球场大小为60x40米,涂有合成涂料,被基辅足球联合会认定为“Vulkan”足球俱乐部的主场。
The courtyard of "Gymnasium A +" is designed in the form of an amphitheater. In good weather, it is planned to conduct part of the lessons and general school activities, concerts, and performances by the theater studio. The football field, 60x40 m in size with synthetic coating, is certified and accepted by the Football Federation of Kyiv as the home arena of the football club "Vulkan".
该油田有160口井,60米深,完全为学校提供了地热热泵的冷热。这样一来,学校就可以脱离城市主要供暖网络。
因此,学校建筑不会给城市电网带来负担,而且接收能源时不会排放温室气体或污染环境。
The field with 160 wells, 60-meters depth, completely provides the school with heat and cold for a geothermal heat pump. Thus it allowed disconnecting school from the main city heating network. So the school building does not place a burden on the city's grid and receives energy without emitting greenhouse gases or contaminating the environment.
区位图
平面图
立面图
剖面图
轴测图
建筑师:阿基米提卡(Archimatika)
地点:乌克兰基辅
面积:8330 m²
年份:2018
品牌地产 | 精品楼盘考察活动 | 石家庄站
本次楼盘考察活动的时间为
10月30日- 31日
两天
推荐一个
专业的地产+建筑平台
每天都有新内容
合作、宣传、投稿
请加
客服
消息
收藏
下载
最近



































