查看完整案例


收藏

下载
该项目位于圣丹尼斯的Montjoie ZAC城市开发区,包括中学教学楼和学生宿舍,从城市和建筑设计的角度来看,其所呈现出的规模和功能布局极富挑战性。
Located in the Montjoie ZAC (urban development zone), this new facility represents both an urban and architectural challenge in its size and programmatic mix of high school and student boarding house.
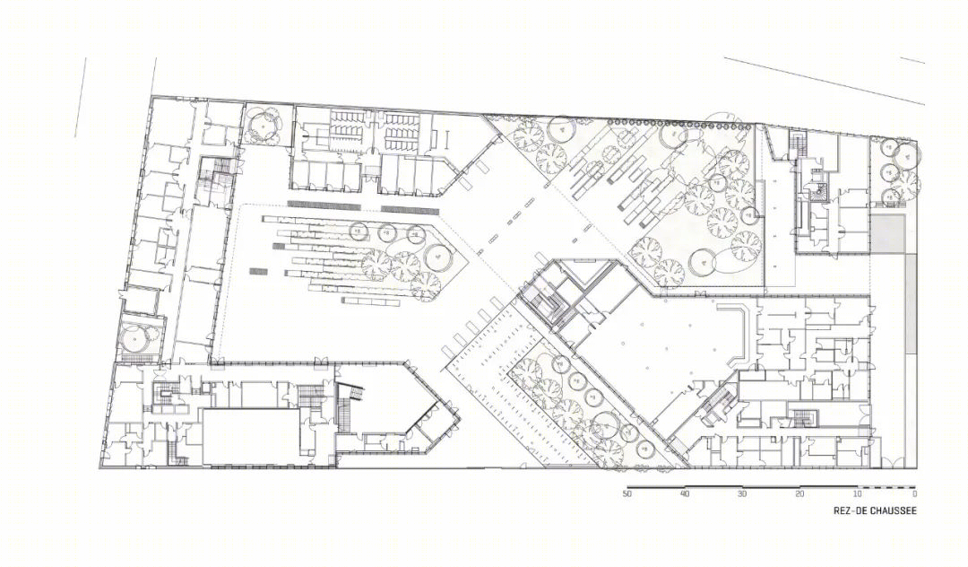
对于该项目,建筑师从螺旋形中汲取灵感,象征着通过知识取得进步,以及通过文化和钻研立足社会的理念。
这个新机构的功能空间旨在向邻里和更广阔的城市开放。以桥梁的形式抬高体量,从而打开了公共空间,前院,庭院,有顶操场和室内花园之间的视觉联系。
For the plan, the architects drew inspiration from the spiral, symbolizing the movement, progress through knowledge, and enhanced social standing through culture and study. The functional organization of this new institution is designed to be open to the neighborhood and the wider city. Raised volumes, in bridge form, open new perspectives and visual connections between the public space, the forecourt, the courtyard, the covered playground, and the interior gardens.
教学楼,寄宿公寓和教师宿舍位于食品服务区的上方,由所有人共享,并将整个校园的空间彼此相连。
The high school, the boarding house, and staff housing units are placed above the food service area, which is shared by all and ties the entire program together.
立面被视为飘动的绸带,微妙地连接了室外与室内空间。所用材料的变化强调了空间的过渡和转换。在市区的一侧,纹理混凝土板覆盖了隔墙。在内部,灰色的木镶板用于捕获庭院内的娱乐活动。
The facades are treated as a tangle of ribbons in movement. Passing imperceptibly from the exterior to the interior. Floor plan transitions are enhanced by changes in the materials employed. On the town side, textured concrete panels clad the partitions; on the inside, gray wooden paneling is used to capture the recreation contained in the yard.
平面图
建筑师:Brenac & Gonzalez & Associes
地点:法国
面积:15500平方米
欢迎加入
中小学建筑-交流群
可以联系小编
点击下图查看
《
装配式设计与技术应用》
推荐一个
专业的地产+建筑平台
每天都有新内容
合作、宣传、投稿
请加
客服
消息
收藏
下载
最近





























