查看完整案例

收藏

下载

翻译
Location:New York, NY, USA
Project Year:2019
Category:Offices;Shops;Showrooms
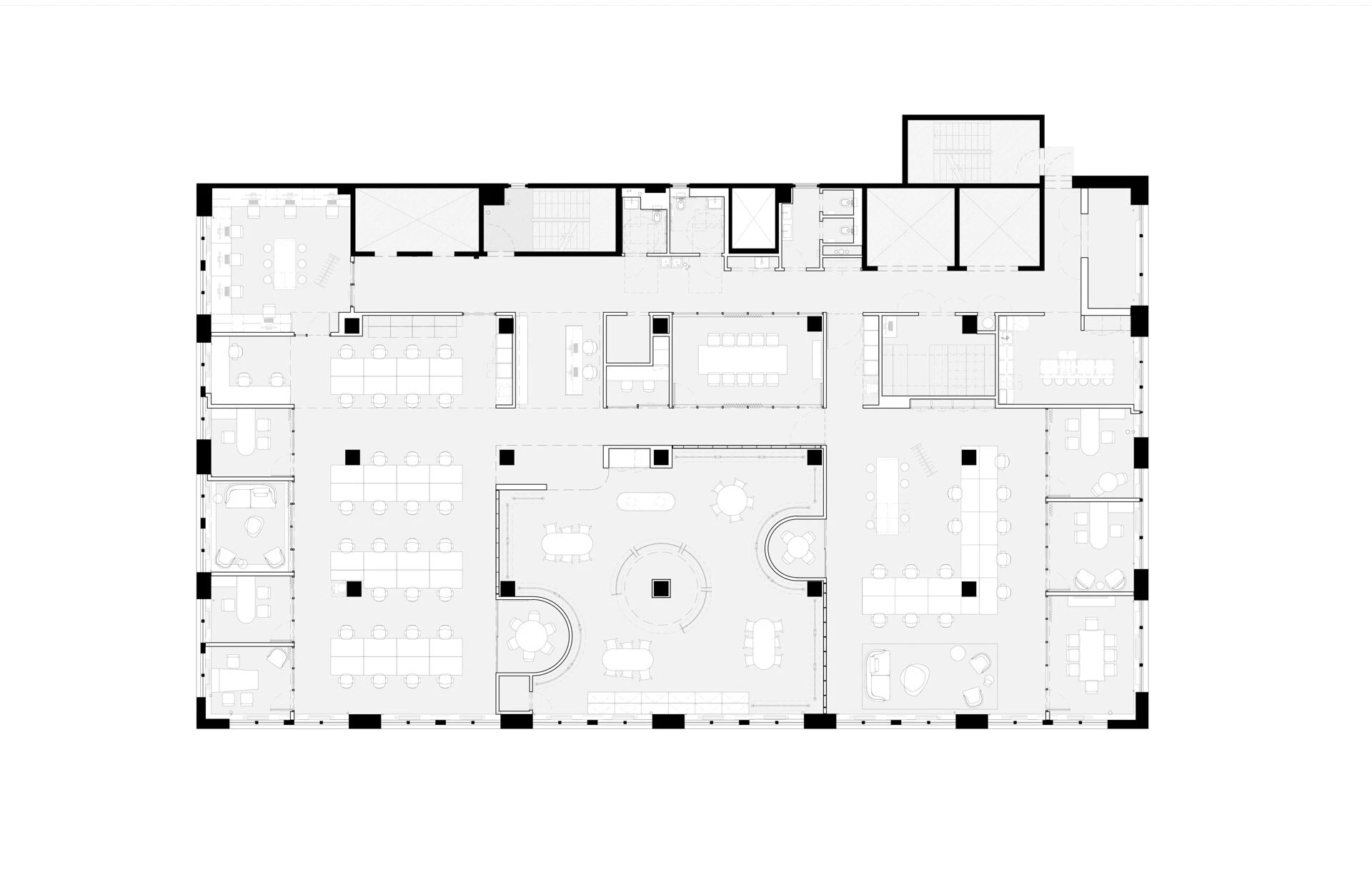
DL1961 is a gut renovation and full design project for the global premium denim company DL1961’s new showroom and office headquarters, located in a building that previously operated as an industrial printing press.
▼项目更多图片
客服
消息
收藏
下载
最近



















