知末
知末
创作上传
VIP
收藏下载
登录 | 注册有礼
知末案例   /   家装空间   /   平层

郑州奥体世纪 90 平三房两厅设计丨中国郑州

2022/05/21 09:17:10
查看完整案例
微信扫一扫
收藏
下载
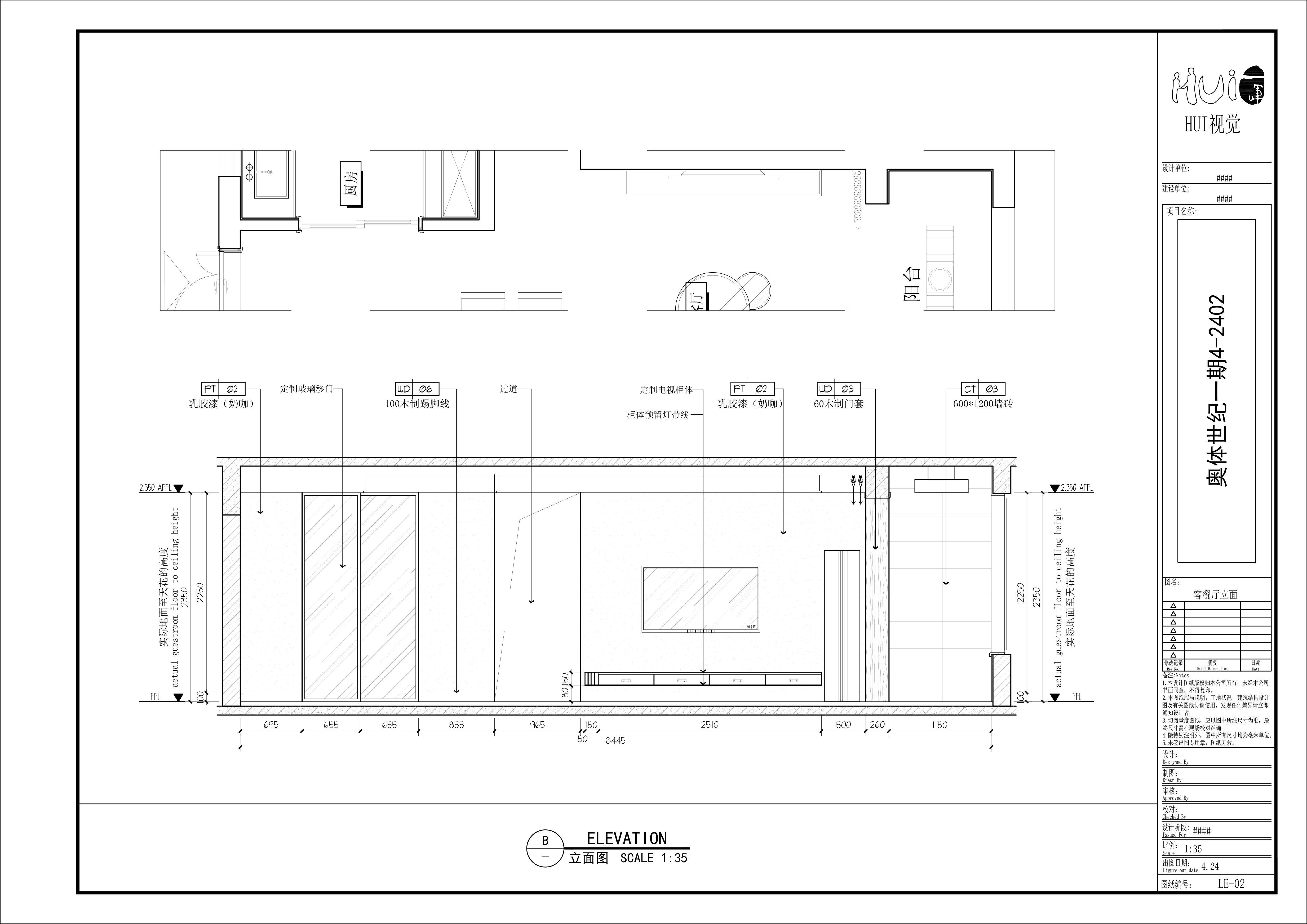
奶油的温润,搭配暖白色、奶咖、木质家具,奠定了全屋风格的基调。整体空间在简约的基础上,透露出淡雅柔和的平衡,分分钟柔软又高级。
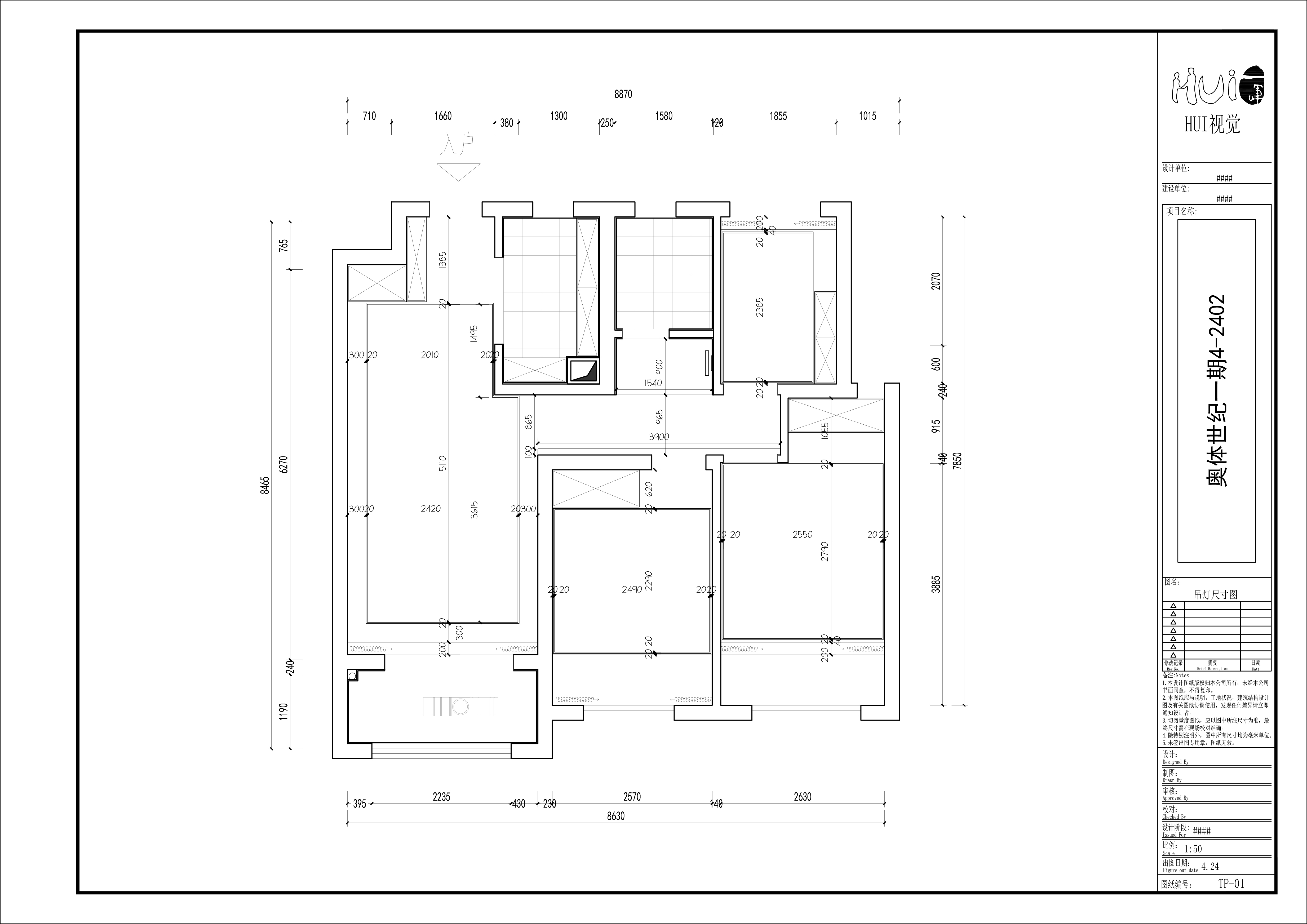
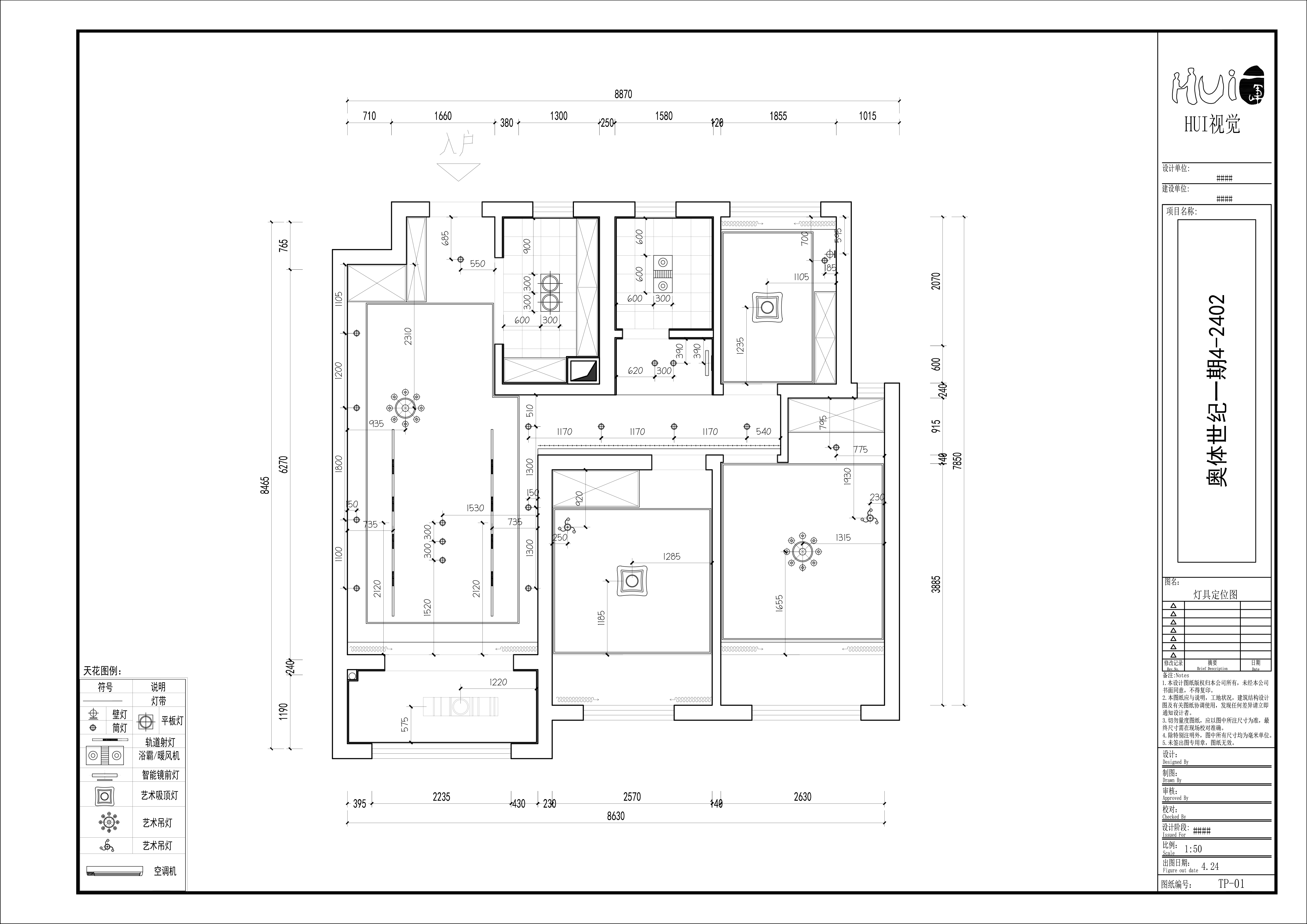
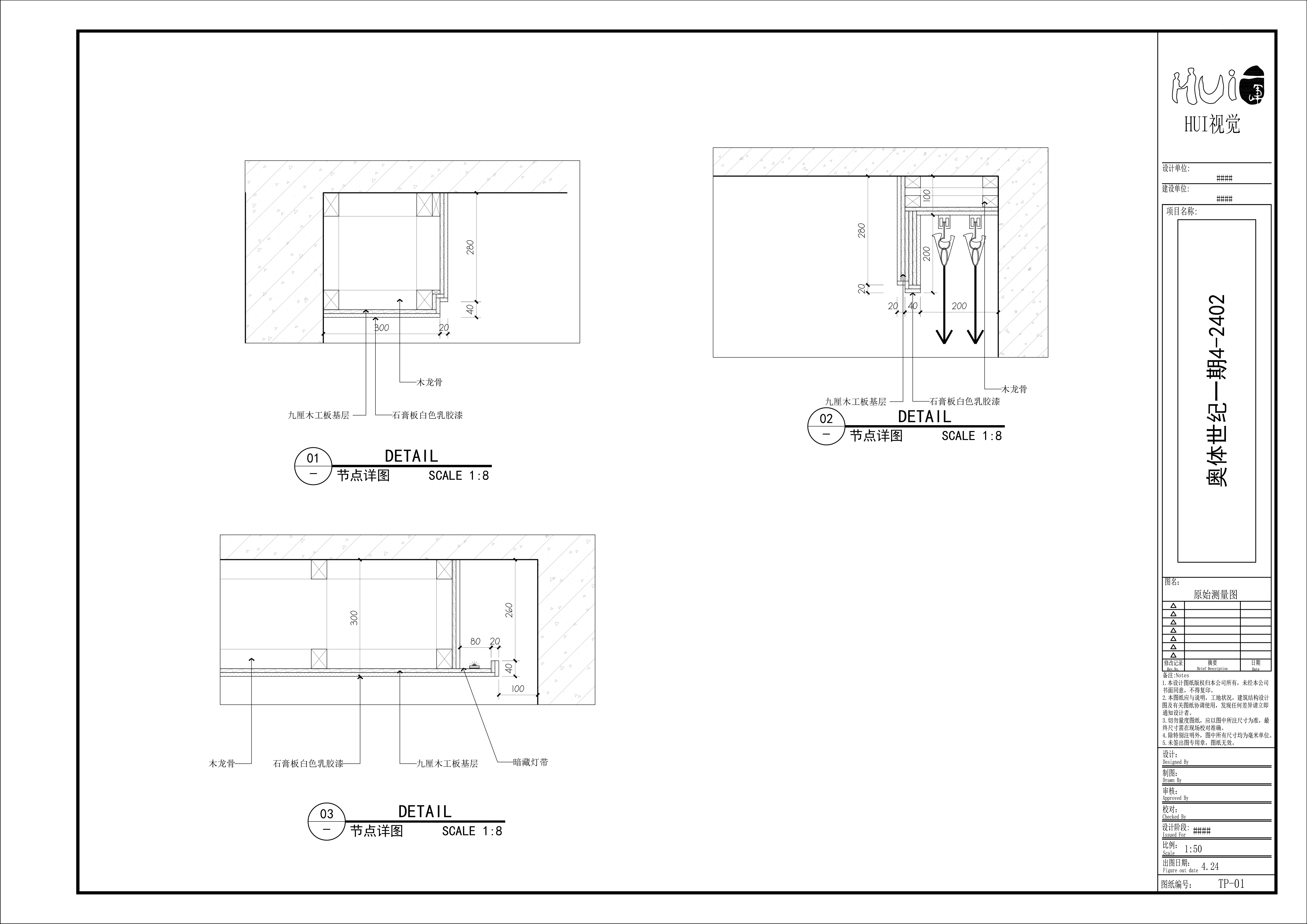
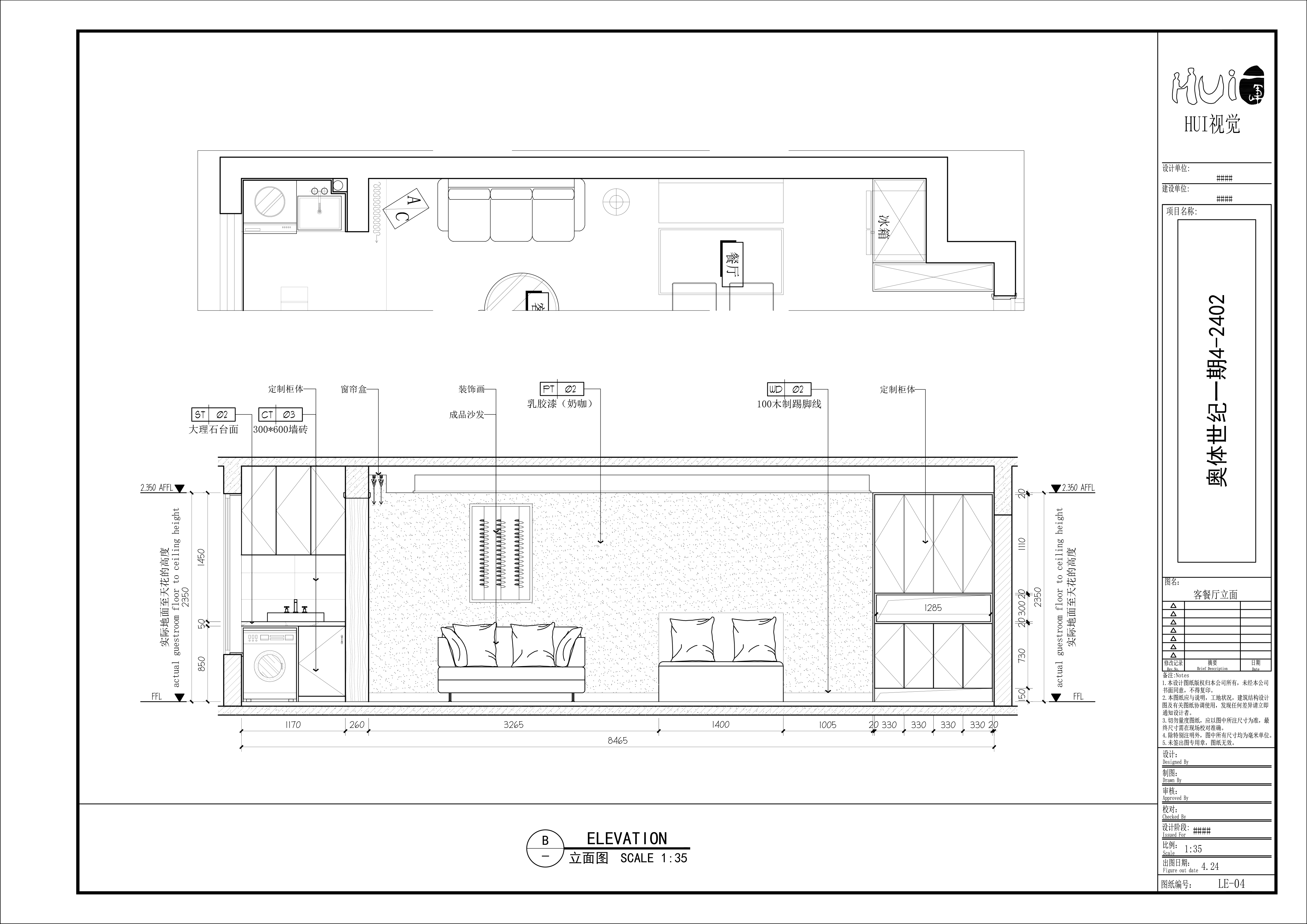
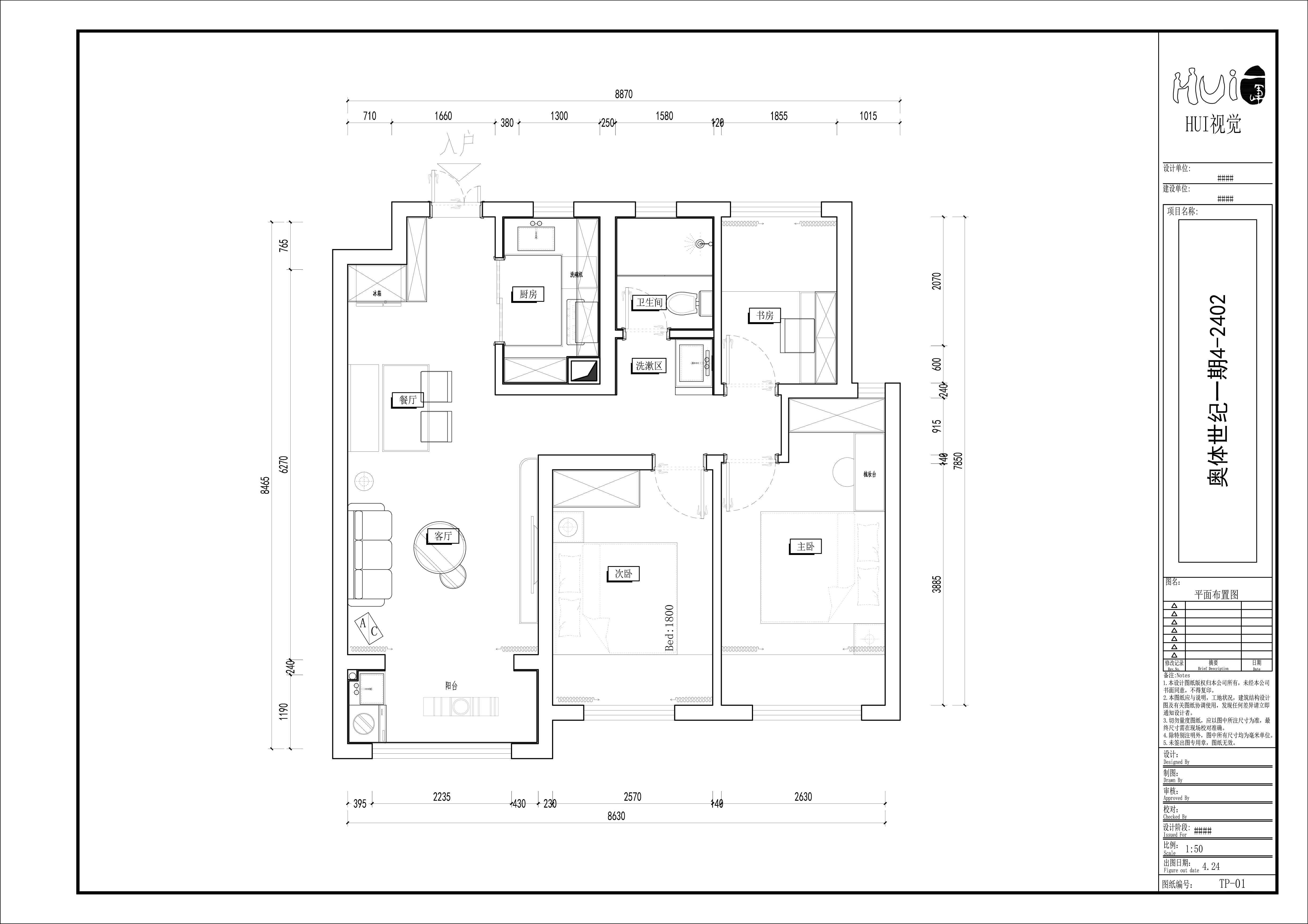
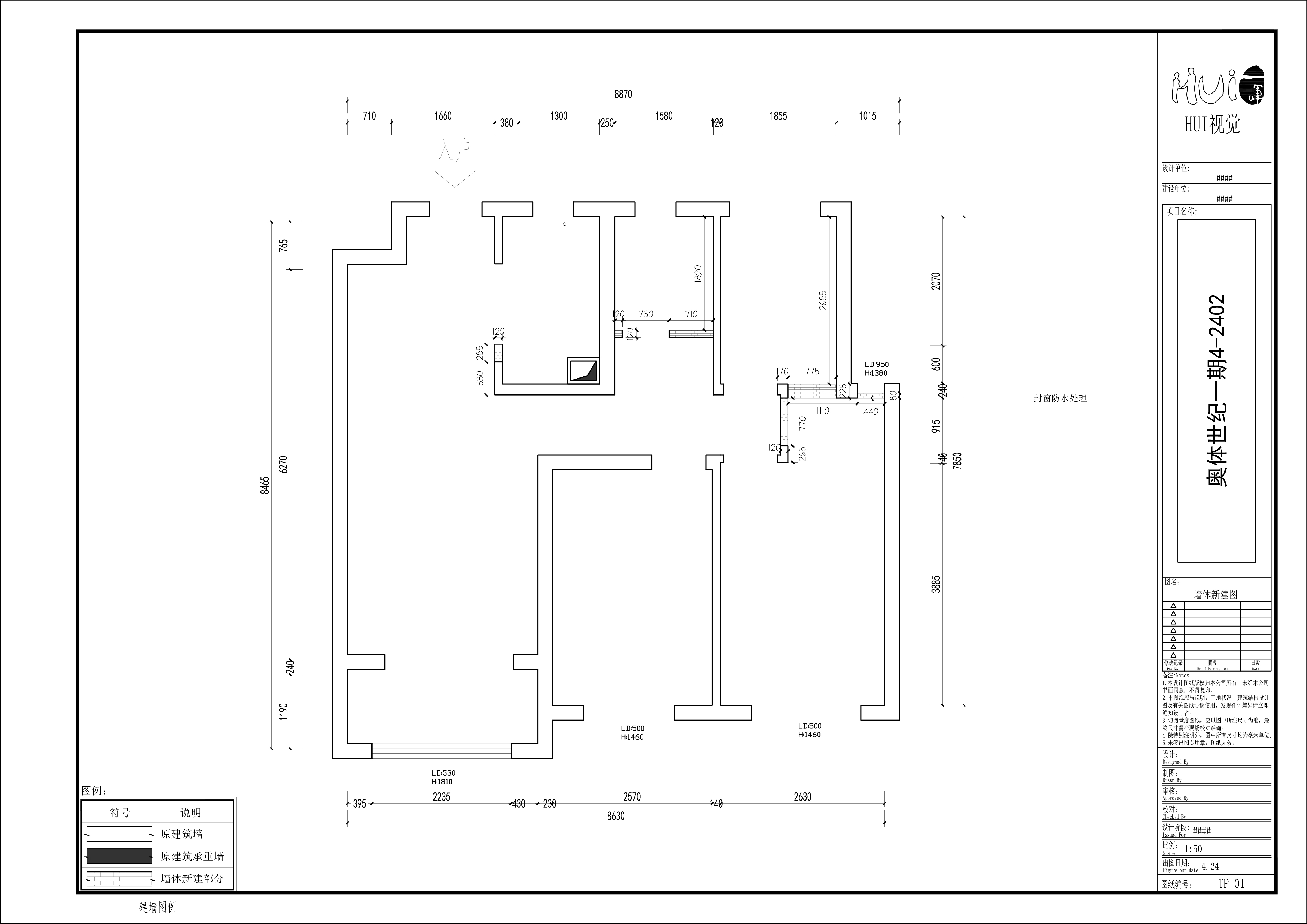
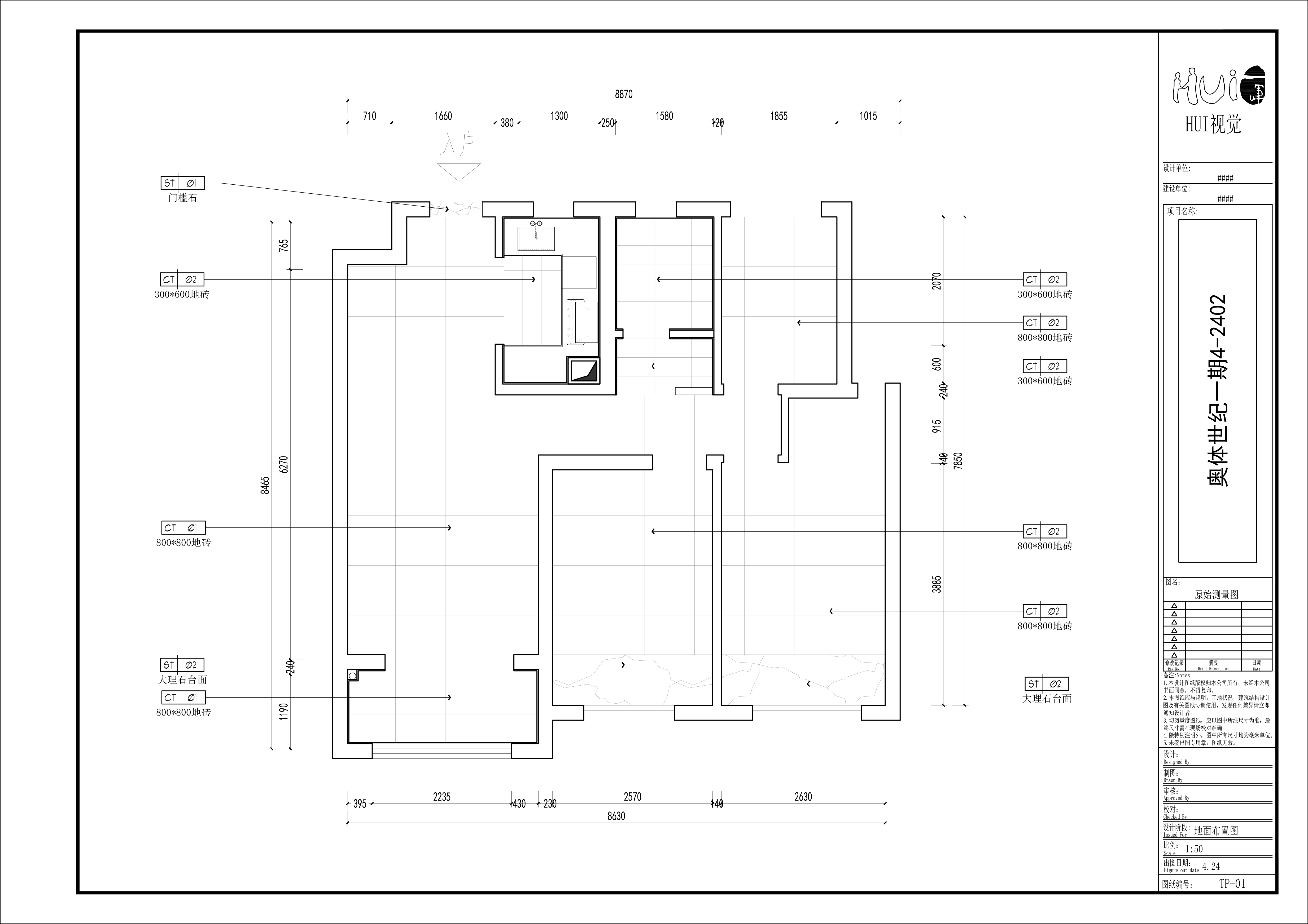
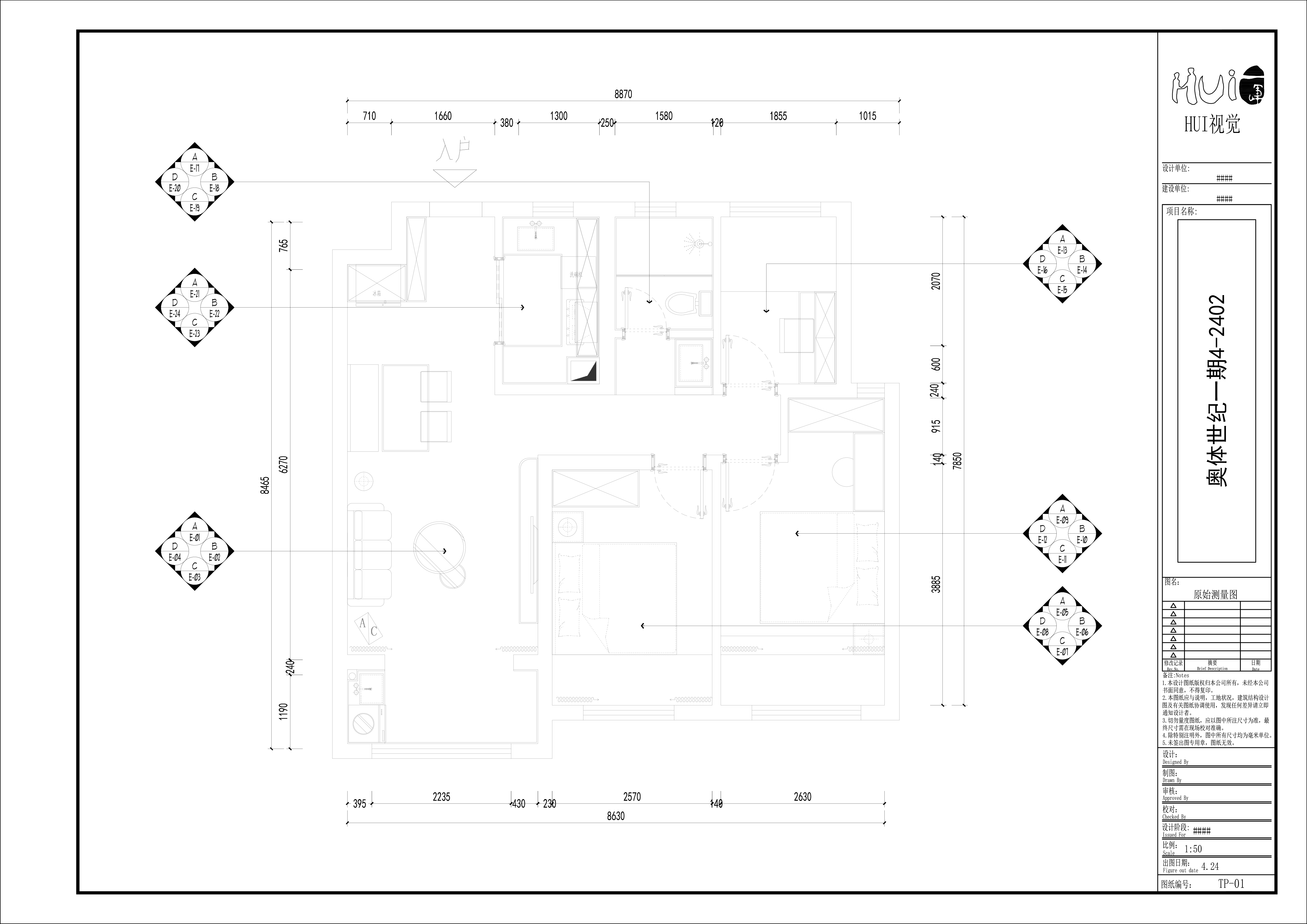
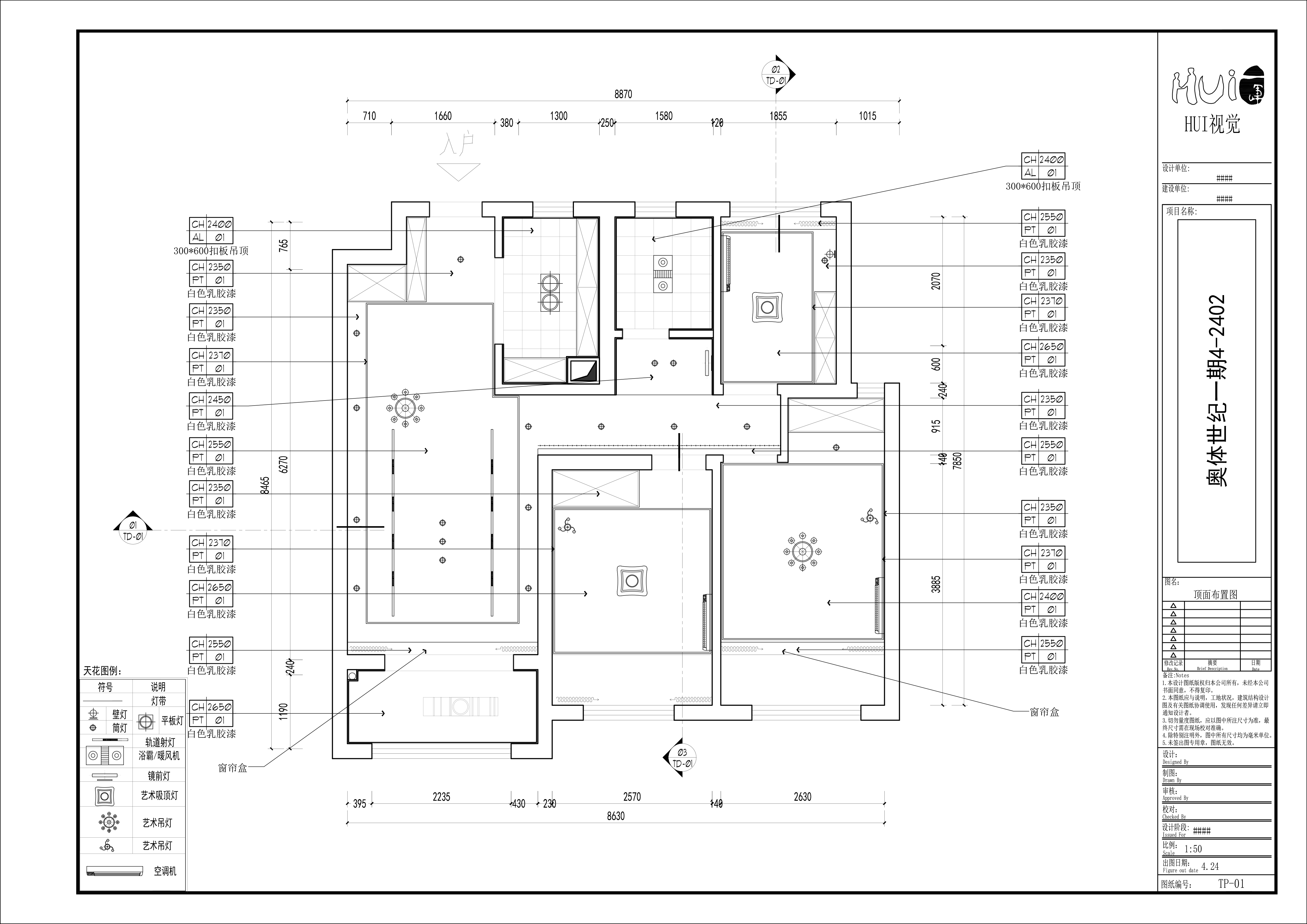
该项目位于郑州市的西四环奥体世纪,建筑面积90㎡,户型为2+1室两厅一厨两卫设计,主卧、次卧和客厅三开间朝南,采光良好。 屋主需求: 1. 目前常住两人,需要主卧+次卧+书房 2. 卫生间保留两个,其中主卫需要浴缸 3. 客餐厅空间希望开阔通透,南阳台以休闲为主 4. 风格上需要有独特的气质,色调偏温馨
郑州奥体世纪 90 平三房两厅设计丨中国郑州-2
郑州奥体世纪 90 平三房两厅设计丨中国郑州-3
郑州奥体世纪 90 平三房两厅设计丨中国郑州-4
郑州奥体世纪 90 平三房两厅设计丨中国郑州-5
郑州奥体世纪 90 平三房两厅设计丨中国郑州-6
郑州奥体世纪 90 平三房两厅设计丨中国郑州-7
郑州奥体世纪 90 平三房两厅设计丨中国郑州-8
郑州奥体世纪 90 平三房两厅设计丨中国郑州-9
郑州奥体世纪 90 平三房两厅设计丨中国郑州-10
郑州奥体世纪 90 平三房两厅设计丨中国郑州-11
郑州奥体世纪 90 平三房两厅设计丨中国郑州-12
郑州奥体世纪 90 平三房两厅设计丨中国郑州-13
郑州奥体世纪 90 平三房两厅设计丨中国郑州-14
郑州奥体世纪 90 平三房两厅设计丨中国郑州-15
郑州奥体世纪 90 平三房两厅设计丨中国郑州-16
郑州奥体世纪 90 平三房两厅设计丨中国郑州-17
郑州奥体世纪 90 平三房两厅设计丨中国郑州-18
郑州奥体世纪 90 平三房两厅设计丨中国郑州-19
郑州奥体世纪 90 平三房两厅设计丨中国郑州-20
郑州奥体世纪 90 平三房两厅设计丨中国郑州-21
郑州奥体世纪 90 平三房两厅设计丨中国郑州-22
郑州奥体世纪 90 平三房两厅设计丨中国郑州-23
郑州奥体世纪 90 平三房两厅设计丨中国郑州-24
郑州奥体世纪 90 平三房两厅设计丨中国郑州-25
郑州奥体世纪 90 平三房两厅设计丨中国郑州-26
郑州奥体世纪 90 平三房两厅设计丨中国郑州-27
郑州奥体世纪 90 平三房两厅设计丨中国郑州-28
郑州奥体世纪 90 平三房两厅设计丨中国郑州-29
郑州奥体世纪 90 平三房两厅设计丨中国郑州-30
郑州奥体世纪 90 平三房两厅设计丨中国郑州-31
郑州奥体世纪 90 平三房两厅设计丨中国郑州-32
南京喵熊网络科技有限公司 苏ICP备18050492号-4知末 © 2018—2020 . All photos and trademark graphics are copyrighted by their owners.增值电信业务经营许可证(ICP)苏B2-20201444苏公网安备 32011302321234号
客服
消息
收藏
下载
最近