查看完整案例

收藏

下载

翻译
Architects:AVA architects Viet Nam
Area :8718 m²
Year :2022
Photographs :Hiroyuki Oki
Manufacturers : AutoDesk, Grohe, An Cuong, Dobo, Dulux, Namsung, Pacisoft, Trimble, VietceramicsAutoDesk
Lead Architect :Nguyen Le Huy Vu
Architectural Designer :Nguyen Viet Thanh
Structural Engineering :Tin An Construction Consulting.,JSC
Construction Contractors :Pacific ACE5 Construction and Invesment Joint Stock Company
Architect : Nguyen Duc Lam
Interior Designer : Nguyen Thi Kieu Trang
Mep Engineering : Nguyen Duc Duy
City : Thành phố Hội An
Country : Vietnam
Located in Hoi An, 6.1 km from the Assembly Hall of Chaozhou Chinese Congregation, with 4 sides adjacent to roadways and to the east is the De Vong river, Bellerive resort - a property belonging to The Calico - owns the whole breathtaking spacious landscape of an eco-resort built on a land of 8700m2 characterized by the tropical hot and humid climate of Hoi An ancient town. From the bird's-eye view, Bellerive is divided into two separate blocks including a 06-storey hotel block with a capacity of 178 appointed rooms and the luxurious villa block having from 2 to 3 bedrooms and an isolated pool in each. With modern architectural solutions combined with inspiration from Hoi An's river heritage, Bellerive brings the typical local breath of the central coast of Vietnam with the image of simple fishing villages and rustic fishing boats floating on the poetic Hoai River.
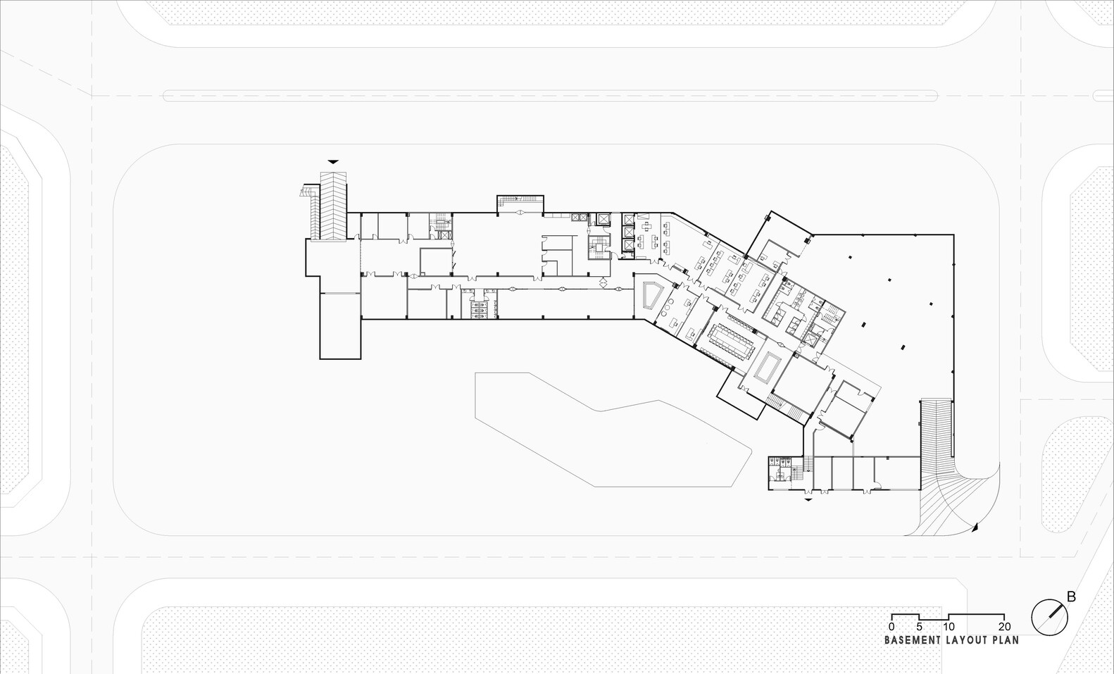
Creating a sense of practical experience is the core element of AVA's principles while designing a resort space. To achieve this, every aspect of the resort experience from the lobby, lounge, relaxing area, and infinity pool to the restaurant, conference halls, spa, and recreation area are arranged scientifically on a unified figure, ensuring convenience for internal as well as external circulation, while ensuring general aesthetics for the construction.
The hotel block is located right in the main traffic direction. It is set back to create a view of the building, stretching horizontally across the land bringing not only the magnitude appearance to Bellerive but also the riverside view for public areas and hotel rooms. To the south of Bellerive is the exclusive villa zone with private pools surrounded by a quiet and peaceful atmosphere. The infinity pool is settled right at the heart of the land looking towards the poetic De Vong riverbank. Highlighting Bellerive is the arrangement of plants and gardens planted intertwined among functional areas, creating environmentally friendly green spaces and ensuring aesthetics for the whole resort as well.
Viewed from above, the roofs of the hotel block and the villa block are inspired by the image of the boat upside down, reminiscent of the image of fishermen's boats floating along the De Vong River. Taking the criterion of long-term use and environmental friendliness, AVA prioritizes the selection of suitable materials that feature colors in harmony with the existing construction yet go along with modern development trends in the future. Surrounding and inner walls are built of unburnt bricks, in addition to this, local common materials such as stones are optimized as well to bring the spiritual culture of Hoi An ancient town into Bellerive. Concrete materials combined with tempered glass are utilized by their suitability for the tropical climate, along with the design of ceilings, walls, and roofs that ensure the ventilation and alternation of air, painted in a simple white tone that embellishes the beige tone of wood interior providing an elegant and fancy look for the space. Particularly for the lounge bar area, the cross-knit net ceiling solution is especially inspired by the image of Quang’s fishermen catching fish to increase the rusticity, intimacy, and local spirit, still retaining the luxurious and modern beauty that Bellerive aiming to.
▼项目更多图片
客服
消息
收藏
下载
最近











































