查看完整案例

收藏

下载
乡村别墅
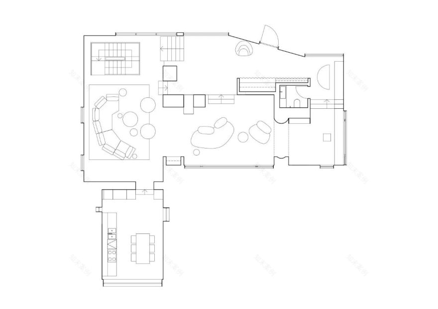
600㎡三层乡村别墅,由梦幻般的楼梯相连。内部形状和颜色的柔和形成鲜明对比,中央的壁炉向两侧开放。一楼几乎是一个开放空间,一个带五米岛台的大厨房,里面塞满了各种电器。
一楼的区域顺着墙壁的曲线顺畅地流入彼此,
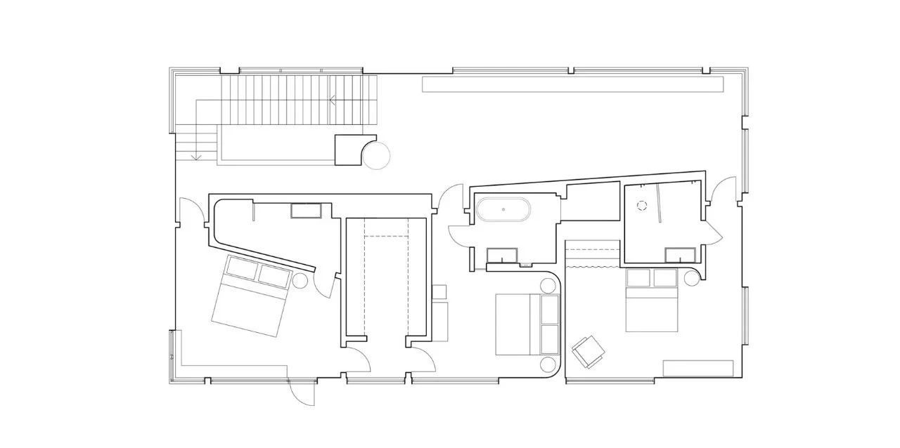
二楼被一段楼梯分成两半,男孩和女孩房间各一边,有自己的浴室和公共更衣室。正是业主的独创性决定了如此复杂的建筑解决方案,充满了联想。
空间布局
设计师
Sergey Kolchin
Rublevo-Uspenskoye
对比鲜明的艺术品,
通往地下室的轻钢楼梯,
全景窗
户享有野生花园的景致。业主是一位非常有趣的女人,有着令人难以置信的品味。
艺术体现在每一个细节中:锯齿形的台阶和与它们相呼应的壁炉线条,混凝土墙的波浪形弯曲,家具的调整形式。特别引以为豪的是楼梯,它是一个巨大的雕塑悬挂在天花板上,几乎不接触地板。
客服
消息
收藏
下载
最近








































































