查看完整案例

收藏

下载

翻译
Architects:Approach Design (ZUP)
Area :1844 m²
Year :2019
Photographs :nature image, Di Ma, TMT POST Group
Lead Architect :Di Ma
Collaborator : Zhejiang University of Technology Engineering Design Group CO.,LTD
Client : TMT POST Group
City : Beijing
Country : China
Since the National 14th Five-Year Plan proposed that China's urban development should shift from "incremental development" to "stock renewal," the renewal of old buildings has flourished everywhere. In this context, Approach Design Studio has carried out a bold exploration, we hope that the revival of old buildings will not only stop at the conventional renovation of exterior and interior but also consider how to let each old building bring more contribution to the daily life of the city, actively relate to the boundaries of the city, to trigger possible chemical reactions. This design aims to explore another possibility between architecture and the city and hopes to provide a new way of thinking and valuable reference for urban renewal and urban public space exploration and utilization.
Background - The project is located in the old urban area of Daxing District, Beijing. The current police station is in the shape of "F", which is full of a small site. The new owner is TMTpost group of financial science and technology new media platform. In early 2018, Approach Design Studio was entrusted to transform this police station into its Beijing headquarters office building.
The park from "folding" - The design "folds" the traditional flat park several times and turns it into a thin "vertical park," which is attached to the boundary of the "F" shaped building in a minimal "footprint" way. The "F"-shaped building boundary is replaced by the original fence as the new site boundary. The walking path of the traditional park has also been placed into the boundary of the site after being folded, changing from a plane path to a more interesting tridimensional interlaced path, creating a new tridimensional interweaved walking experience, and at the same time, the limited space is infinitely extended in the process of circular interweaved walking.
"Loose" and "Soft" site boundary - The folding of the park naturally produces the fuzzy spatial characteristics of "architecture-like" so that the whole "folding park" presents a continuous "soft" spatial state that neither resembles indoor nor outdoor. As a result, visitors to the park are "wrapped" in the park, which provides shade from the sun and rain and seamlessly blends with the fresh air, allowing them to gain both a physical "sense of shelter" and a spiritual "sense of freedom." At the same time, this "soft" boundary state and the activities of the people in it also greatly eliminate the complex and indifferent relationship between the architecture and the city, forming a "soft" transition between the two. The "Folding Park" has entrances to the street, courtyard, and all building floors, allowing equal access to the "Park" from multiple directions. Furthermore, an intelligent access control system ensures that activities in the park do not cross into the indoor office areas. "Each intersection of paths in the park is designed as an enlarged platform with old Beijing bamboo chairs, providing visitors with multiple resting places of different scales and elevations.
"Free Growing" park - We have also set up various exciting facilities in the "park", such as swings, hammocks, punching bags, seesaws, slides, etc., to attract people to participate and encourage them to meet each other, which in turn will trigger more exciting activities. Thanks to the material properties of steel, people can also imagine the park as a giant "Lego toy" and can "plug in" any new ideas so that the "park" can "grow" with people's imagination. The "park" can "grow freely" along with people's imagination. The original concept for the structural components of the "Folding Park" was to use the scaffolding commonly found on construction sites to make the "Folding Park" would become an extremely cheap and universal strategy for urban "catalytic spaces" that could be quickly assembled, removed, and replicated. However, as the structural engineers were unable to find the basis for calculating the scaffolding as a civil structural system, and there were no similar cases that could be referred to at that time, finally we chose "calculable" steel square tubes and I-beams instead.
To create an authentic park atmosphere, we designed a large number of greenery walls using the façade grid. However, during the construction process, the natural greenery in the drawing was strangely turned into "artificial" greenery in the bid price of the builder, and we finally did not agree to the fake greenery. However, after the project was completed, we found that the "park" without fixed greenery left more room for users' imagination, and owners and the community could choose different plant species and "greening rate" according to different themes so that the "park" could present a wider variety and offer richer possibilities. "Create another universe within a short distance". The cold "border" that was originally used to "announce" the scope of the territory has become a "vibrant trigger zone" shared by everyone, injecting new vitality into the daily life of the city, and has now It has become the most popular place in the community.
Extension of "catalytic space" - The basketball frame installed on the “Folding Park” makes the front yard the only basketball court in the street. People can play a street basketball game here at any time, and then the "folding park" will become a court "grandstand," providing a different view of the game. The walkway in the "folding park" leads people naturally to the roof, making the originally idle roof a part of the "park." The long side of the "F" shaped roof is designed as a 100-meter circular track, the two short sides are designed as a reception area and a mini-GOLF recreation area, and the height difference between the roofs is designed as a semi-enclosed amphitheater. Convenient accessibility and the broad vision encourage people to exercise, relax, meet, and hold multiple exciting community events. Facing the building that fills the whole site, the design does not sculpt its exterior but only covers all the facades facing the interior of the site with mirrored honeycomb panels, making the originally oppressive building disappear into the environment, and making the changing environment and people's activities the most vivid "expression" of the building.
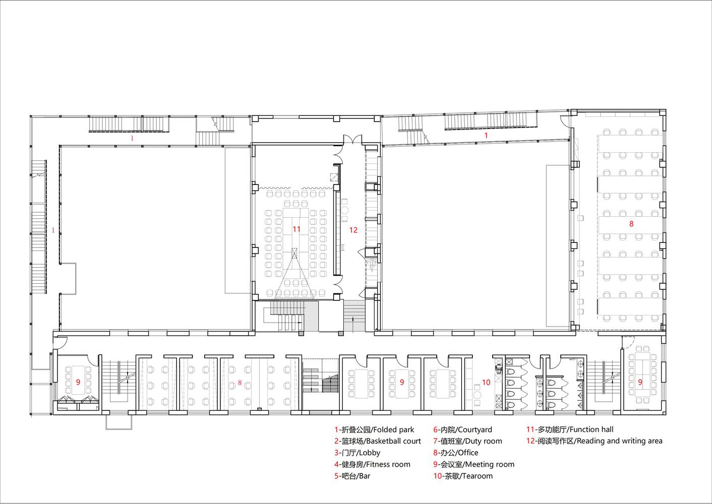
Reconstruction of building interior - The inner space of the original police station was narrow and claustrophobic, which was in significant conflict with the free and open new media office space. Based on keeping the main structure unchanged, the design deconstructs and reshapes the interior space. The exterior wall of the lobby is replaced by a light and transparent glass box, which minimizes the boundary between the interior and exterior, bringing in abundant sunlight and views of the front yard. A glass box is also placed inside the lobby as a gym. and the wave texture of the translucent glass creates an interesting interaction of light and shadow between the activities inside and outside the box.
The stairwell in the middle of the building was opened up to create a "mini" through-height atrium, creating a visual and spatial connection between the three floors that were initially separated from each other. The staircase itself has also been disassembled and reconstructed, interspersed freely in the atrium, to create as many opportunities for people to see each other as possible. Through functional compounding and spatial "micro-adjustment," many spaces are given multiple uses. For example, the width of the corridor is precisely calculated to accommodate the function of a reading room; the staircase is enlarged to become a display table and a stepped discussion area; the space on the first floor expands into the inner courtyard with a bar working area around the columns, and the glass box growing outward in the air becomes both a meeting room and a lounge for swinging.
Conclusion - This is perhaps an "unorthodox" architectural design, where the building, which initially needs to be focused on and occupies the whole site, eventually disappears into the environment. But the insignificant and even neglected spaces outside the building have become the main characters of the site here. Architecture is not an end but only a medium. Compared with creating an exquisite and heroic "building," we prefer to let both the architect and the building take a step back and present a plain and soft spatial "state" where people are willing to approach and participate. We hope this spatial state can "silently" attract and accommodate public life and continue to nourish and generate new urban vitality, even if it is not a public building. This design is not intended to pursue novel forms but only to explore the potential of urban public space from the bottom-up perspective, trying to discover some neglected shared values from the "conventions" and hoping to provide a new way of thinking and inspiration for the design of such projects. Many difficulties and challenges were encountered during the design and construction process, mainly thanks to the trust, support, and coordination of the local government and users, which made this exploration possible.
▼项目更多图片
客服
消息
收藏
下载
最近

























































