查看完整案例


收藏

下载
长三角地区自古以来就是主要产棉区、纺织业中心,“多种木棉,土人专业纺织”,棉田占耕地面积的7成,“三分宜稻,七分宜木棉”。1895年,张謇在同处长三角地区的江苏南通开始创办大生纱厂,把其实业救国理想付诸实践,开启了南通棉纺织手工业的繁荣时代。
▼织艺行外观,
external view ©黑水阿良
2021年11月,为纪念张謇创办大生纱厂、进行通海垦牧助力南通发展,成就“近代中国第一城”的事迹,打造了大生·织造·织艺行,将织造艺术的工艺和装置重新展现在世人眼前。
▼室内空间概览,
overall view of the space ©黑水阿良
织造的海洋
The sea of weaving
改造后的展厅以棉为主题,将整个空间想象成一个布艺的世界,借由现代化的空间手法展现在新时代中织艺文化浪潮的回归,整个展厅由序区、主题装置、工艺展示区、织布体验区、观影区组成,入口处的序墙,通过一整面线艺转轴的铺排和序言,展示了棉花温暖的力量,一花一世界,引入布艺织造的海洋。
▼序墙,
sequence wall ©黑水阿良
▼一花一世界,
a flower a world ©黑水阿良
▼纺纱体验区,
spinning experience area ©黑水阿良
自然的博物空间
Natural natural space
整个展厅,以“温暖生命”为主题,设计师大量运用了带有原始自然肌理感的手刮漆材料,改造后的大生织艺行整个空间由原来的老建筑变成了一个带有温度的,由内而外散发出柔软但又带有力量的博物空间。布艺的世界很简单,就像生活本来的样子,本真而质朴。
▼柔软但又带有力量的博物空间,
soft but powerful museum space ©黑水阿良
▼望向织布体验区,
a glance to weaving experience area ©黑水阿良
▼布艺展示,
clothings ©黑水阿良
▼从织布体验区回望纺纱区
view back to spinning area from weaving experience area ©黑水阿良
时空的融合
Fusion of time and space
在展厅停留的越久,越会有一种时空交错之感,古老的织布机,大染缸,以及衍被工艺,都以现代化的手法被重现,新与旧,古与今,在对比中焕发出新的生命力 ,将时空之感融入其中。
▼展厅的时空交错之感
a sense of interlacing time and space ©黑水阿良
精神的力量
The power of spirit
在展厅的最后部,我们还设置了一个观影区和体验区,用光影演绎精神层级的提升,画面演绎棉花的生命全周期到制作成布艺,由棉花五彩斑斓的生命引申到大自然的周而复始的生生不息与可持续发展,再到整个通海地区的繁荣景象。坚守和传承,古往和今来,手工技艺和工匠精神的传承,彰显一国的文化自信,最终实现由物质到精神的升华。
▼观影区,
viewing area ©黑水阿良
▼空间细节,
details ©黑水阿良
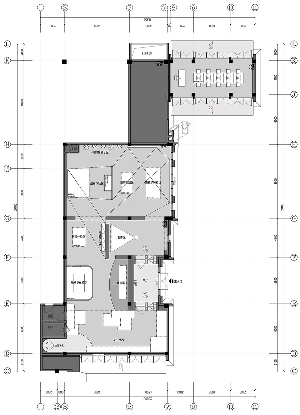
▼平面图,
plan ©也间室内设计有限公司
项目名称: 大生织造·织艺行
项目面积:400m² 平方米
完工时间:2021.12
项目地址:南通市张謇小镇
设计总监:叶增敏
室内团队:杭州也间室内设计有限公司
协助设计师:王盛
摄影:黑水阿良
施工:上海易道展示工程有限公司
客服
消息
收藏
下载
最近
















