查看完整案例

收藏

下载

翻译
Architects:Johnston Architects
Area :7300 ft²
Year :2022
Photographs :Benjamin Drummond
Lead Architects :Ray Johnston, Mary Johnston, Harmony Cooper, Mona Johnston Zellers
General Contractors :Impel Construction
Electrical Engineers :AWA Electrical Consultants
Architecture : Prentiss Balance Wickline
Structural + Civil Engineers : Methow Engineering
City : Winthrop
Country : United States
Washington State’s Methow Valley has a combined population of 14,000-20,000 part and full-time residents. The town of Winthrop in the heart of the valley was previously underserved by a small library with inadequate access to resources and services. Residents were eager for change. By prioritizing community collaboration in the design process, the architects were able to quantify the community’s hopes for their new library while directly addressing what wasn’t working, creating Winthrop’s ideal civic space.
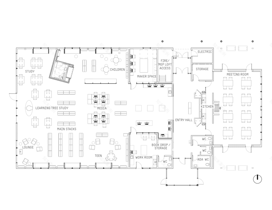
With considerable input from the community, the region's specific needs were met by Johnston Architects (JA) with local support from Prentiss Balance Wickline Architects (PBW) – namely, reimagined spaces for gathering, connection, and discovery. Their existing library lacked space for community programs, did not have adequate space to manage the library’s collection of materials, and limited the community’s access to technology, with little or no space to work or study.
Spearheaded by the Friends of Winthrop Library organization, hundreds of requests were collected through JA’s Hopes & Dreams charrette process, identifying the most important program elements desired by future patrons. To meet these needs, JA designed a new 7,300 SF library that supports the entire region.
When searching for design inspiration for the new library, JA looked first at the beauty of the surrounding natural environment. The building sits with its long axis pointing to Mt. Gardner, and its entrance toward the Methow River. It physically reflects the crossroads of the mountains and river, and the crossroads of the community, where neighbors can gather, learn and explore. A strict Westernization code for buildings near the historic frontier town’s center challenged the architects to create a design befitting the community’s identity while complementing the rugged natural environment and prevailing architectural vernacular of Winthrop.
Inspired by the open-air agrarian buildings in the region, the design includes broad overhangs, open roof trusses, and visible structures. Hay barns, with their wide, sheltering roofs and airy side walls composed of trusses and braces that give a delicate, yet strong impression proved a perfect model for the building. The hay barn form is historic, authentic, and practical; all qualities aligned with the new Winthrop Library.
Completing numerous daylighting and energy studies, the design team shifted window openings, doorways, overhangs, and a slatted wooden scrim to best control heat gain and glare during the Methow Valley’s arid summers. Natural design elements were also brought into the space, including a sculptural “learning tree” that provides an interior niche. A cozy fireplace beckons patron from the front door to the far end of the space, where large windows frame the unique Methow landscape.
▼项目更多图片
客服
消息
收藏
下载
最近























