查看完整案例

收藏

下载
深铁瑞城在万众期待下拉开帷幕,为在这座城市里拼搏的人打造可寻理想秩序的、可赋无限展望的一处归宿。
项目位于光明区光侨路与东长路交汇处,属深圳长圳地铁上盖地块,户型倍享全明,居家处处有景,清风流连,尊享一方私密天地。
我们如何感受
并非定义家的形貌?
生活的最典型为中庸生活
在动与静之间
找到一种完全的均衡
—— 林语堂先生
BALANCE OF LIFE
心之所向,动静之间,寻其均衡
家,可将生活中的点滴化为红酒的香醇。在城市中安身立命的人,有追求奢华的高级,也有向往山林的纯粹。本案以“流光”、“山埜“作为设计理念注入空间当中,以打造都市中那一处安逸居所。
Unit A
晨光熹微 自有温度
生活家・86m²
有温度,有陪伴,才会让空间显得格外温暖与珍贵。
细腻的皮面沙发搭配闪耀放射的光芒的主题装饰画,将个性融入设计美学当中,处处彰显着生活的美好。
丨客厅 Living Room
以灰白为主,以素色为辅,在这其中点缀的碳黑色、金属色与红棕色,让空间里的每一处都充满着丰盈富足的质感。
餐厅 Dinning Room
方正的白色大理石餐桌搭配椭圆的橘红色绒面餐椅,时尚与优雅在这空间里流淌。
强烈的自我主张,转化为空间与生活形态的崭新姿态,利用软性的布艺面料柔和空间的心灵感受,营造材质与情绪的记忆。
主卧 Master Bedroom
璀璨以挂画的形式注入在空间之中,红棕色与金属色的点缀围绕在挂画的周围,将富有质感的各类单品进行精心搭配之时,高级感便随之而来。
丨儿童房 Children's Room
充分考虑孩子的成长周期,空间灵活可变,百叶窗将阳光过滤,空间在与自然融合过后显得更轻盈氤氲。
A1户型 平面布置图
Unit B
始于自然,循环内生长
自然家・112m²
春晖似锦,苍翠之隐,用自然风尚定格美好。
在这如璀璨明珠般的喧闹都市里,寻一处可安放自我、安抚初心之地灯火辉煌之中,那一抹隐逸于市井的浮白与青绿怡然自得的交融尽显惬意。将自然与艺术贯穿于空间里,触及人心与精神的境界随之而来。
丨客厅 Living Room
高级皮革、素雅木饰与拉丝金属,在极具气韵的大理石上碰撞,将可触摸的大自然融进如树皮般的不规则十字纹路地毯,无一不彰显着空间的的品质与对精致典雅的追求。
丨主卧 Master Bedroom
线条感的背景是倒映在湖面上的树干,波纹状的挂画是被落叶击中后水波荡漾的湖面,湖蓝色与米黄色相互映衬着这一份灵动的优雅。
丨客卧 Guest Bedroom
在这雅致的次卧里,素色与墨绿的相互装点,多了几分典雅与稳重以及对长者与好友的敬意。
丨多功能房 Multifunctional Room
暖白与沉稳的木色互相烘托,营造出收敛而沉稳的中式氛围,让思绪在这空间里找到那份宁静。
丨儿童房 Children's Room
当少女梦的粉红色,与大自然的草绿色发生碰撞时,一股充满活力的新生力量油然而生。
丨生活阳台 Life balcony
在这片被阳光涂抹得明媚而灿烂的空间里,喝一杯馥郁浓香的茶,读一本有趣的书,感受热爱生活所带来的美好与恬静。
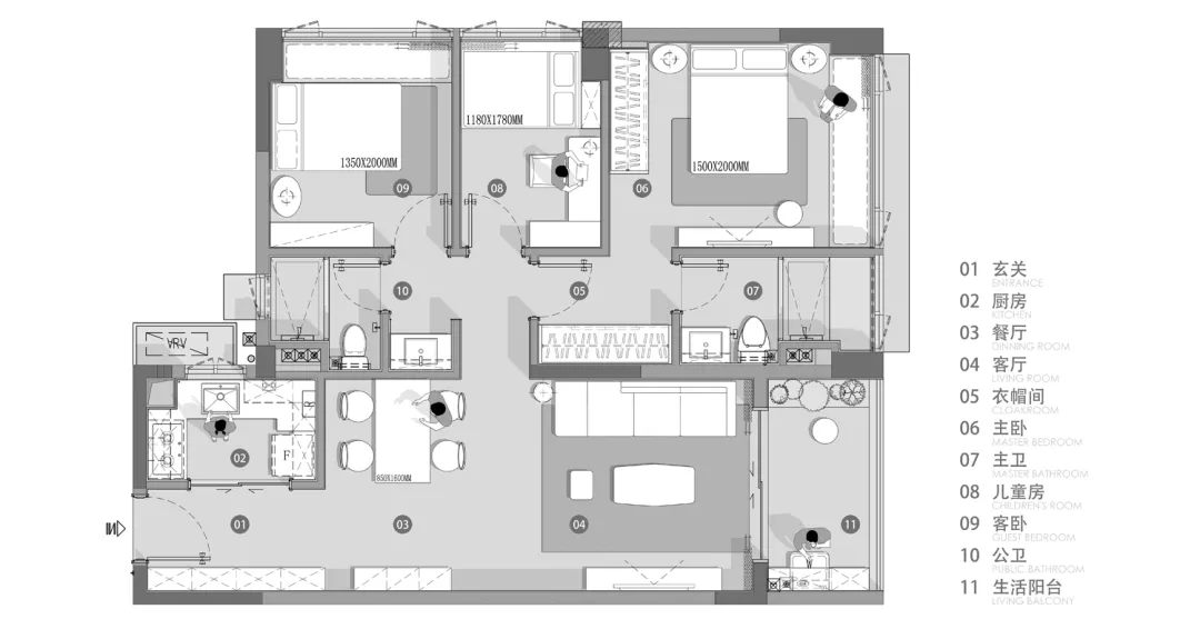
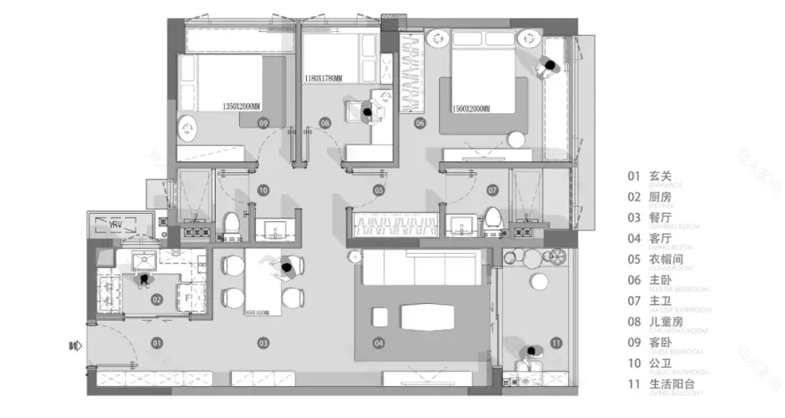
B1户型 平面布置图
项目名称丨深铁・瑞城精装样板房
项目区位丨深圳・光明新区
开 发 商丨深圳地铁置业集团
设计面积丨A户型 86m²;B户型 112m²
硬装及软装设计丨广州市柏舍装饰设计有限公司
软装深化及执行丨深圳华墨国际设计有限公司
客服
消息
收藏
下载
最近












































