查看完整案例


收藏

下载
缘起
流行稍纵即逝,风格永存。双“C”是高定界的时尚标志,也是设计师们钟情的双弧元素。在这个灯具展厅的工装改造中,大小弧形穿插呼应,创造一处处经典又优雅的灵感空间。诗人一般,赋予光展厅饱满又含蓄的戏剧性和艺术感。
原始格局是中规中矩的大小两个长方形开间,格局规整,但动线偏长,形式枯燥缺乏节奏感。设计师将空间拆分,形成办公区和展示区相互独立且巧妙连接的两个区域。顶层处理高低错落,视觉在常规空间里层层递进。压低使用界面、设置夹层,增加视觉层次与互动性。在满足功能性的同时,实现公共性、交流性、自然性的最大可能。
悬浮抬高的地台,隐形灯带在阶梯边缘烘托,步入式展厅充满递进般的仪式感。
黑色炭烧木质的夹子形状长凳,趣味诙谐,入口第一视线被其吸引。
灯光勾勒出弧形转角,缓缓步入展厅的正式区域。
水磨石地面,防滑耐磨而且比较容易清洁。时光轮回,复古的元素也时髦起来。
Box in box——白色墙顶勾勒出盒型通道,连接入口与玄关。
极简造型中蕴含复杂的设计美学,成就别具一格的艺术连廊。
1 号航站楼躺椅,流畅的线条仿佛飞机起飞翱翔的弧度。
同样造型别致的灯饰,与之呼应成趣。
红色透明亚克力盒,方正立体,为空间带来更多遐想。
通过对空间尺度、动线规划、光影变换等每一处细节设置,调动观者的感官体验,促进人与空间的互动与交流。
从入口转入其中,穿过中心视觉动线,尽头的红色抽象雕塑如同展厅的地标,深刻映入眼帘。
弧形元素正是展厅的造型线索,通过这个元素的起承转合,延伸呼应和多处弧形处理,在美感之外也有很强的结构意义和功能性。黑色明装筒灯,与顶部融为一体,工业味十足。
顶预留 30 公分的落差,将光影透出,引导视觉延伸。增加落差性对比,下方半圆木饰面,吸引视线到达空间的重点主动线。舍弃多余复杂光源,设备、管线、梁体、墙垛等隐于其中,半明半暗存在。
内弧中制作了多层台面,创造温馨台灯展区。功能性和设计感双重拿捏。
吊灯、落地灯、台灯等不同灯饰,按种类或风格分区展示,相互独立。
黑白抽象画作,为大白墙增加一抹浪漫氛围,想象力在画面里栩栩展开。顶面与墙面以极简造型自然衔接,既是灯具展厅也是家的艺术馆。
长条木桌,可茶歇、洽谈或小憩,也是用餐区吊灯的场景展示。
绿植融入,以或摇曳或沉稳的姿态,在极简的设计中,加入自然色彩和蓬勃生机,激活工装空间的角角落落。
网络爆红款的草裙灯,亚克力灯罩。流动的造型线条,充满律动和生命力。
角落光源,衬托墙面凹凸立体画的明暗光影。
夜幕降临,落地窗收纳广阔城市景观。
光与光的辉映,宁静璀璨。
18 层城市天际线的夜幕,成为壮观的装饰背景。
柔美奶油色百褶花瓣灯饰,搭配一把惬意的中古单人沙发椅,像极江南雨天的恬静悠然。
白色单人椅与高颜值星慧落地灯,传达出精致的法式优雅。
中古风台灯,水曲柳实木灯体,细腻温润,纹理自然,马丁布编织灯罩,散发柔和光晕。
展厅另一端的小圆弧造型对应大圆弧台灯展区,也对正面原本一眼可见的落地窗体和侧面办公区入口进行了有效遮挡。
新款复古灯饰,造型和色彩都突破常规,为家居软装增加更多新鲜感。
动线在此形成闭环开合,回廊式观赏移动,形似蜿蜒流水,步步可观。
展厅外通道的展示橱窗。以沙发、灯饰、绿植,浓缩万家灯火里一角经典温馨的生活场景。
△改造前平面图
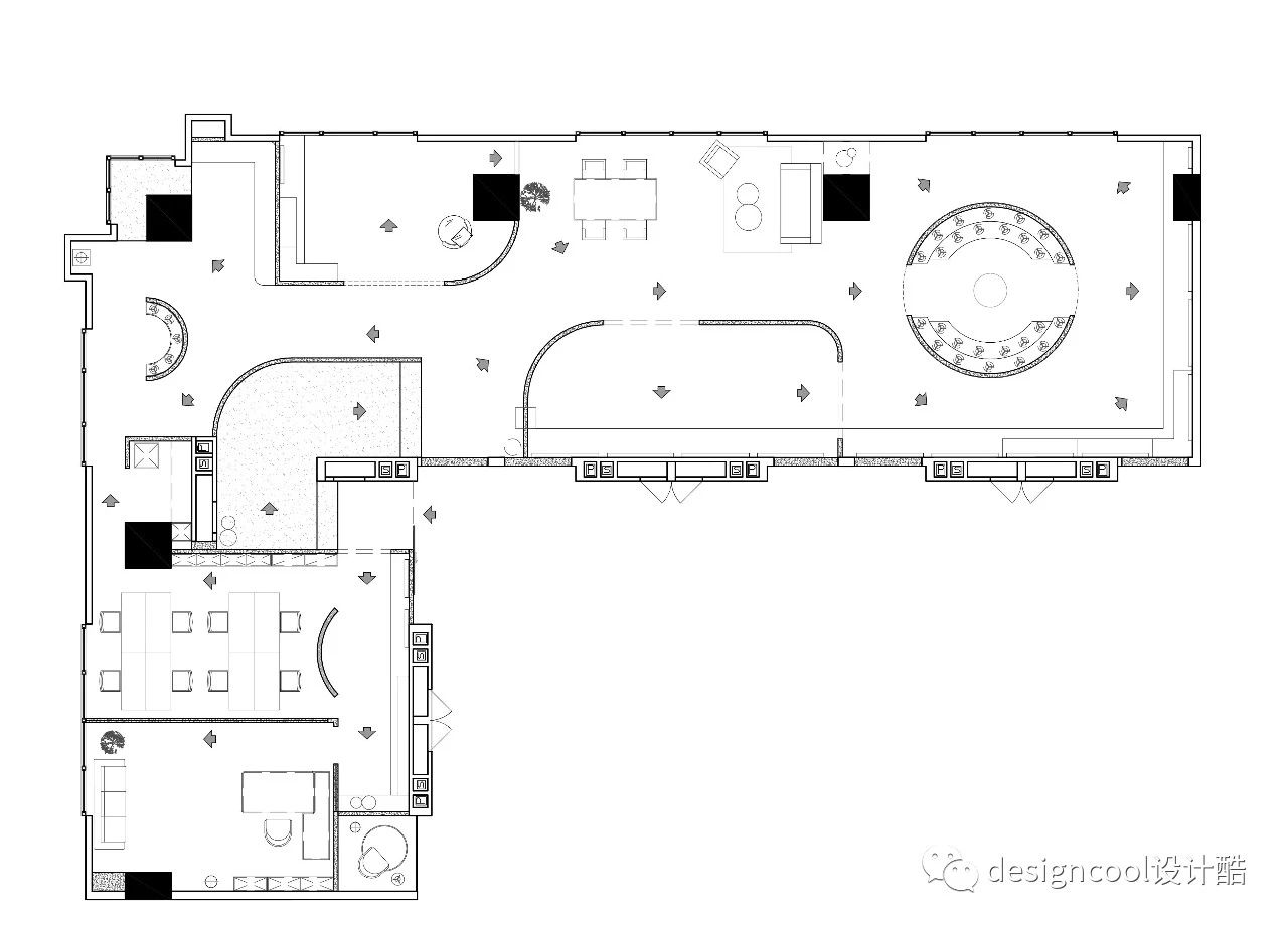
△改造后平面图
项目信息
项目名称 | 从云端展厅到万家灯火
设计公司 | 上海臻溪空间设计事务所
设计总监|王兵
主案设计|沈思龙
助理设计|张一凡
完工时间 | 2022 年 10 月
项目面积 | 400㎡
王兵
上海臻溪空间设计事务所 联合创始人-设计总监
中国高级室内设计师、上海高级室内设计师,大金内装设计大赛上海区优胜奖。曾大型设计公司任职总监多年,专注于室内设计领域学习和研究十余年,擅长打造极简空间美学。2019 年,创立了上海臻溪空间设计事务所,本所致力于-私宅空间、别墅大宅、精装软装、商业办公空间、民宿建筑设计等。
主力打造全案服务模式,从设计创意、工程技术管理到软装落地,满足客户对设计的全部需求。
公司理念——“打破千篇一律的无趣设计,呈现出最美好的生活环境。”
—END—
编辑 | Mas
策划 | Sansan
授权公司 | 上海臻溪空间设计事务所
客服
消息
收藏
下载
最近





































