查看完整案例

收藏

下载

翻译
Architect:Estudio Moirë arquitectos
Location:Mar del Plata, Buenos Aires Province, Argentina; | ;View Map
Category:Offices
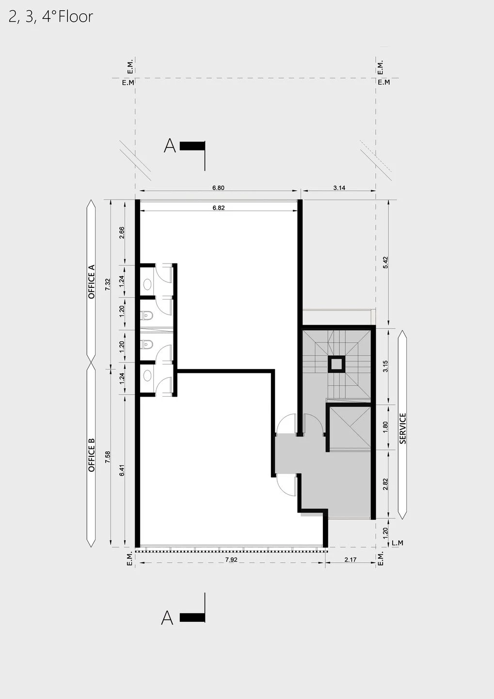
The project answers the requirement to build an office building on a 10.39 by 21.65 plot in the city of Mar del Plata. We understand the building typology as the disposition of elements and the relations that allow you to shape the form and give it cultural acceptance. The B6 building reinterprets the classical between party walls typology through a gradual form displacement, generating a unique building that answers the premises that making architecture is taking a compromise with the city and that architecture communicates through its form and its limits.
Located on España Street a few meters from Av. Colón, the surroundings is characterized due to the heterogeneity of the urban tissue and by a lot of vehicular and pedestrian transit. The plot its next to a building with a consolidated basement and a tower. This urban particularity let us understand the lot with a free dividing party wall, where the base of the tower ends, allowing us to work the form like a vertical articulation of boxes that answers to the different urban situations.
The building breaks from one of its party walls, generating a dialogue with the tower next to the lot and the urban enviornment, on the upper floors the boxes advance on the municipal line, emphasizing the access and giving different scales to the public space.
The building has a powerfull image that gives value and identity to the proyect by its form and materiality. It is bounded by a courtain wall of glass and a aluminum treillage that gives the proyect unity and singularity, it also generates an interesting light and shadow game in the interior of the building.
Architect: Moirë Arquitectos
Photography: Ramiro Sosa Fotografía
▼项目更多图片
客服
消息
收藏
下载
最近









































