知末
知末
创作上传
VIP
收藏下载
登录 | 注册有礼

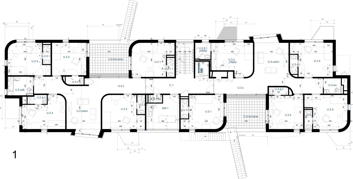
温馨疗愈空间——Potelier Les Pilifs 精神障碍患者夜宿中心

2017/04/06 13:57:45
查看完整案例
微信扫一扫
收藏
下载
翻译
Firm: Pierre Blondel Architectes
Type: Government + Health › Aging Facility
STATUS: Built
YEAR: 2015
SIZE: 10,000 sqft - 25,000 sqft
BUDGET: $1M - 5M
A night center for 20 people with a mental disability
温馨疗愈空间——Potelier Les Pilifs 精神障碍患者夜宿中心-7
温馨疗愈空间——Potelier Les Pilifs 精神障碍患者夜宿中心-8
温馨疗愈空间——Potelier Les Pilifs 精神障碍患者夜宿中心-9
温馨疗愈空间——Potelier Les Pilifs 精神障碍患者夜宿中心-10
温馨疗愈空间——Potelier Les Pilifs 精神障碍患者夜宿中心-11
温馨疗愈空间——Potelier Les Pilifs 精神障碍患者夜宿中心-12
温馨疗愈空间——Potelier Les Pilifs 精神障碍患者夜宿中心-13
温馨疗愈空间——Potelier Les Pilifs 精神障碍患者夜宿中心-14
温馨疗愈空间——Potelier Les Pilifs 精神障碍患者夜宿中心-15
温馨疗愈空间——Potelier Les Pilifs 精神障碍患者夜宿中心-16
温馨疗愈空间——Potelier Les Pilifs 精神障碍患者夜宿中心-17
温馨疗愈空间——Potelier Les Pilifs 精神障碍患者夜宿中心-18
温馨疗愈空间——Potelier Les Pilifs 精神障碍患者夜宿中心-19
温馨疗愈空间——Potelier Les Pilifs 精神障碍患者夜宿中心-20
温馨疗愈空间——Potelier Les Pilifs 精神障碍患者夜宿中心-21
温馨疗愈空间——Potelier Les Pilifs 精神障碍患者夜宿中心-22
温馨疗愈空间——Potelier Les Pilifs 精神障碍患者夜宿中心-23
温馨疗愈空间——Potelier Les Pilifs 精神障碍患者夜宿中心-24
温馨疗愈空间——Potelier Les Pilifs 精神障碍患者夜宿中心-25
温馨疗愈空间——Potelier Les Pilifs 精神障碍患者夜宿中心-26
温馨疗愈空间——Potelier Les Pilifs 精神障碍患者夜宿中心-27
南京喵熊网络科技有限公司 苏ICP备18050492号-4知末 © 2018—2020 . All photos and trademark graphics are copyrighted by their owners.增值电信业务经营许可证(ICP)苏B2-20201444苏公网安备 32011302321234号
客服
消息
收藏
下载
最近