查看完整案例

收藏

下载

翻译
Architect:Architectkidd
Location:Bangkok, Thailand; | ;
Project Year:2016
Category:Offices;Showrooms
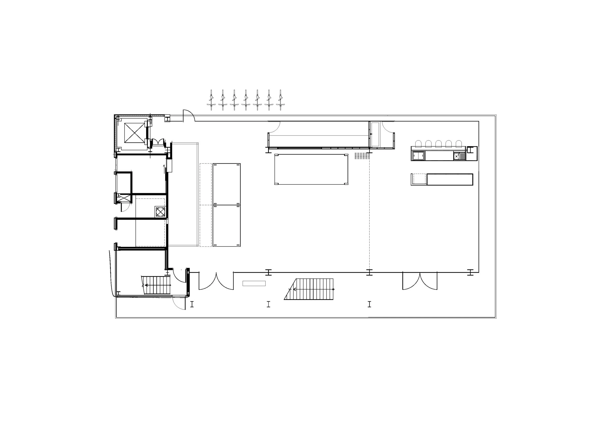
Architectkidd has completed the design of a building using steel tubing as its primary material.
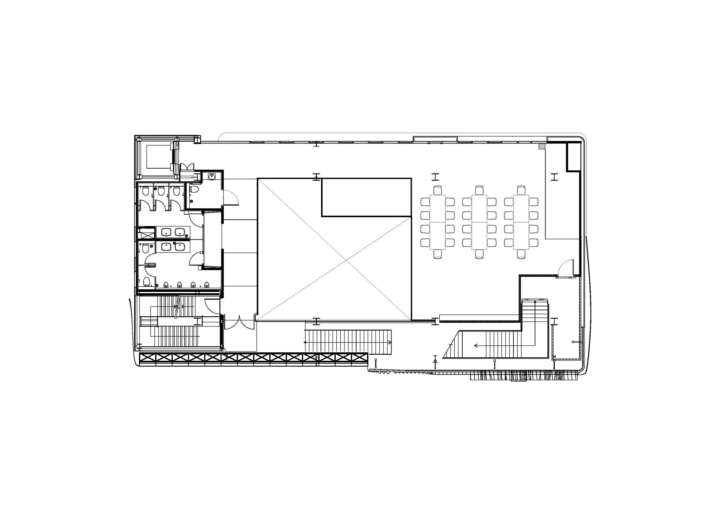
The building, a production studio and offices for a television station, is a renovation of an existing structure. During the initial stage of the project, the removal of the old cladding exposed the existing steel structure along with the electrical and services installation. 19mm steel hollow tubes were selected as an economic and utilitarian material to compliment the structure and systems remaining in place after the renovation.
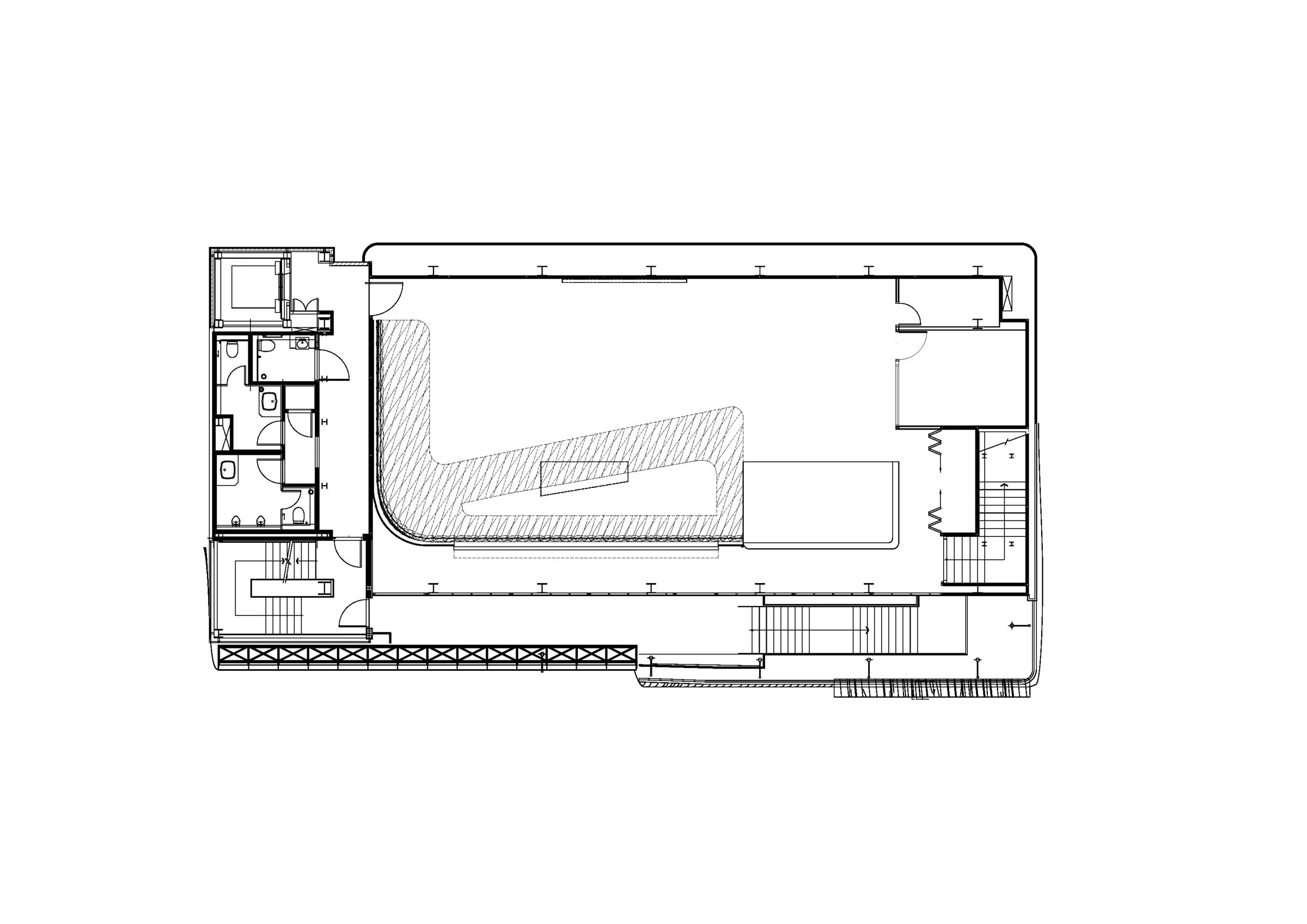
The use of steel tubing allowed the design to be developed ‘inside-out’. The tubes were used throughout the interior spaces as well as furniture installations. By varying the density and patterning, the steel tubes extended out towards the exterior and were attached on to the existing structural frame. Bending and curving the steel tubes were achieved by construction workers and tools typically used for installing electrical conduits in buildings.
From a distance the building seems opaque, with the exterior rendering an effect of a solid surface composed of diagonals and contours. Up close, the exterior appears more transparent, like a wire frame that wraps around and into the interior space.
▼项目更多图片
客服
消息
收藏
下载
最近




























