查看完整案例


收藏

下载
De Jakoba社会住宅综合体为阿姆斯特丹诺德区的Overhoeks社区注入了新的活力。在“艾湾河岸的曼哈顿”,也就是中央车站对面的艾湾港口前的新城区,De Jakoba是新入驻的两个社会住宅综合体之一。我们通过形态和智能建筑方法,完成了一栋充满力量和品质感的建筑:人们在这个辨识度高的场所会更加上心,并带着自豪感生活。
De Jakoba brings new energy to the Overhoeks neighbourhood in Amsterdam-Noord. In ‘Manhattan at the IJ’, as the new city district which fronts the IJ harbour opposite Central Station is also referred to, De Jakoba introduces one of two new social housing complexes. Making use of form and smart building methods, we realised a powerful and qualitative building: a recognisable place where people live with pride and are willing to take care of.
▼建筑概览,overview of the project
在Overhoeks地区的官方城市规划中——其 “校园式”的环境与阿姆斯特丹契合度不足——我们对既定规则做出了自己的解释。城市规划中规定了建筑退线的距离,以最大限度地减少地面层的建筑体积。我们利用这一条件将De Jakoba的整个体量向内弯折,让体量不仅在顶层,而是在整个高度和长度上相互交错并逐渐向上弯曲。形成的四个不同的外立面和波浪形阳台使其外观在周边地区具有辨识度。
Within the formal urban plan for the Overhoeks area – which with its ‘campus-like’ setting is rather un-Amsterdam – we gave our own interpretation of the set rules. The plan specified setbacks for the buildings to minimise the volumes from street level. We took advantage of this condition by bending the entire volume of De Jakoba inwards, allowing the volume to stagger and gradually curve upwards not only on the top floors, but over its entire height and length. The four different facades and wavy balconies that are formed ensure the recognisable appearance to the surrounding area.
▼建筑外观,exterior view
▼侧面视角,perspective view
▼概念示意图,concept diagram
▼艾湾河岸视角,view from IJ harbour
▼仰视视角,upward view
根据建筑物的雕塑形态,135套单间公寓的每一套都有独一无二的布局。中心区域,即建筑最窄的部分,是连接公共花园和街道的入口通道。随着建筑向内弯折,它环抱着花园并创造了一种庇护感。开放公共花园和沿Docklandsweg的底层多功能空间为街道带来新的活力。
Thanks to the sculptural shape of the building, each of the 135 studio apartments has a unique layout. At the heart, the narrowest part of the building, is the entrance passage that connects the communal garden to the street. As the building curves inwards, it embraces the garden and creates a sense of shelter. The open communal garden and high multifunctional spaces at the ground floor along Docklandsweg bring new vibrancy at street level.
▼通道空间,passage
▼楼梯间,stairs
我们通过入口设计来营造一种抵达的仪式感。入口处像一个玻璃空洞一样蔓延到建筑的整个高度,所有楼层都拥有观赏公共花园和艾湾河岸新城区的宽阔视野。
We designed the entrance to create a sense of arrival. The entrance extends like a glass void over the full height of the building and provides wide views of the collective garden and the new urban district along the IJ from all floors.
▼入口外部,exterior view of the entrance
▼入口大堂,the entrance lobby
通过选用预制外墙构件,De Jakoba在很短的时间内建成并投入使用,这不仅极大程度节约了建筑成本,而且让居民能够尽早入住。
By opting for prefabricated facade elements, De Jakoba was realised in a very short time frame, which not only allowed construction costs to be greatly reduced, but also enabled residents to move into their homes much sooner.
▼预制构件组成的外立面,facade made of prefabricated elements
建筑通过使用浅绿色混凝土来增强单一材料的纯粹性。淡绿色材料制成的水平带和垂直散热片组成了线条的语言,使De Jakoba与周围建筑区分开来。鉴于混凝土板边缘的抛光可以一气呵成,我们能够轻松地在外墙上增添有吸引力的细节。粉饰过的银金色窗框和栏杆丰富了材料的层次感,为其增添了暖色光泽。精妙的弧形柱设计打造了一天中不断变幻的光影游戏。
The clear architecture is enforced by the use of a single material: light green concrete. A play of lines between the horizontal bands and vertical fins of soft green material distinguishes De Jakoba from the surrounding buildings. As the thin edges of the concrete panels could be polished in one stroke, we were able to conveniently add attractive detailing to the facades. The materialisation is enriched by powder-coated silver-gold window frames and balustrades, adding a warm glow. The subtly curved pillars create a changing play of light and shadow throughout the day.
▼外立面近景,close view of the facade
▼弧形柱细部,details of the curved pillars
▼栏杆和弧形柱细部,details of balustrades and the curved pillars
▼模型图,model photo
▼区位图,location map
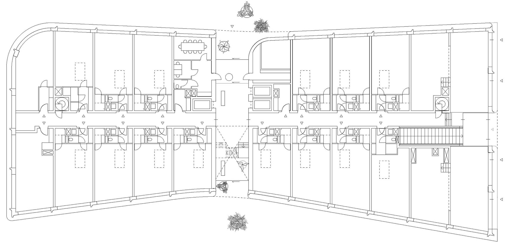
▼首层平面,Floor 0
▼一层平面,Floor 1
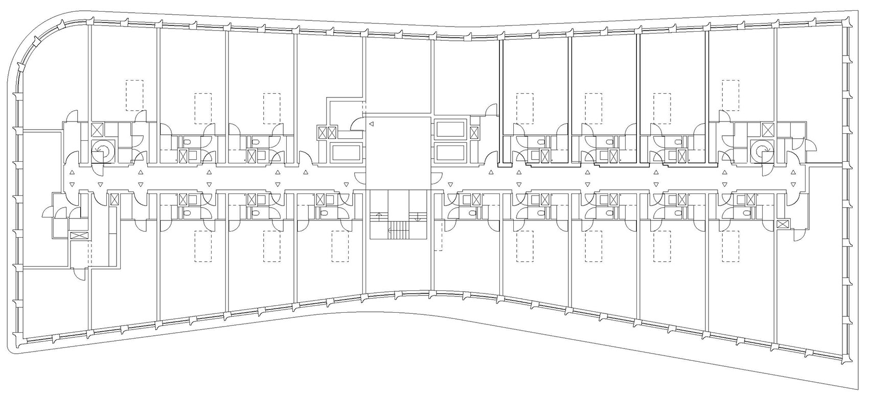
▼二层平面,Floor 2
▼三层平面,Floor 3
▼四层平面,Floor 4
▼五层平面,Floor 5
▼六层平面,Floor 6
▼屋面,Roof Plan
Client: Ymere
Location: Spadinalaan, Amsterdam, NL
Programme: 135 social rental apartments, commercial space
GFA: 10.000m2
Design – realisation: 2018-2022
Design team: Albert Herder, Vincent van der Klei, Arie van der Neut, Metin van Zijl, Stijn de Jongh, Erik Hoogendam, Mai Bogø, Ania Bozek
Collaborators: Dura Vermeer, Buro Sant en Co., Strackee, Nieman Raadgevende Ingenieurs, VDNDP
Photography: Peter Tijhuis
客服
消息
收藏
下载
最近


























