查看完整案例


收藏

下载

翻译
Architects:Yaniv Pardo Architects
Area :300 m²
Year :2020
Photographs :Amit Geron
Lead Architects :Yaniv Pardo, Natalie Zichrony
Design Team : Natalie Zicrony, Yaniv Pardo
Landscape : Amir Maimoni
Consultants : Avidan electricity eng., Buzaker sanitary eng., Rasal air conditioning eng.
Engineering : Gershon Fitterman
City : Ramat Hasharon
Country : Israel
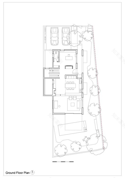
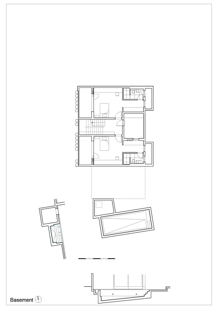
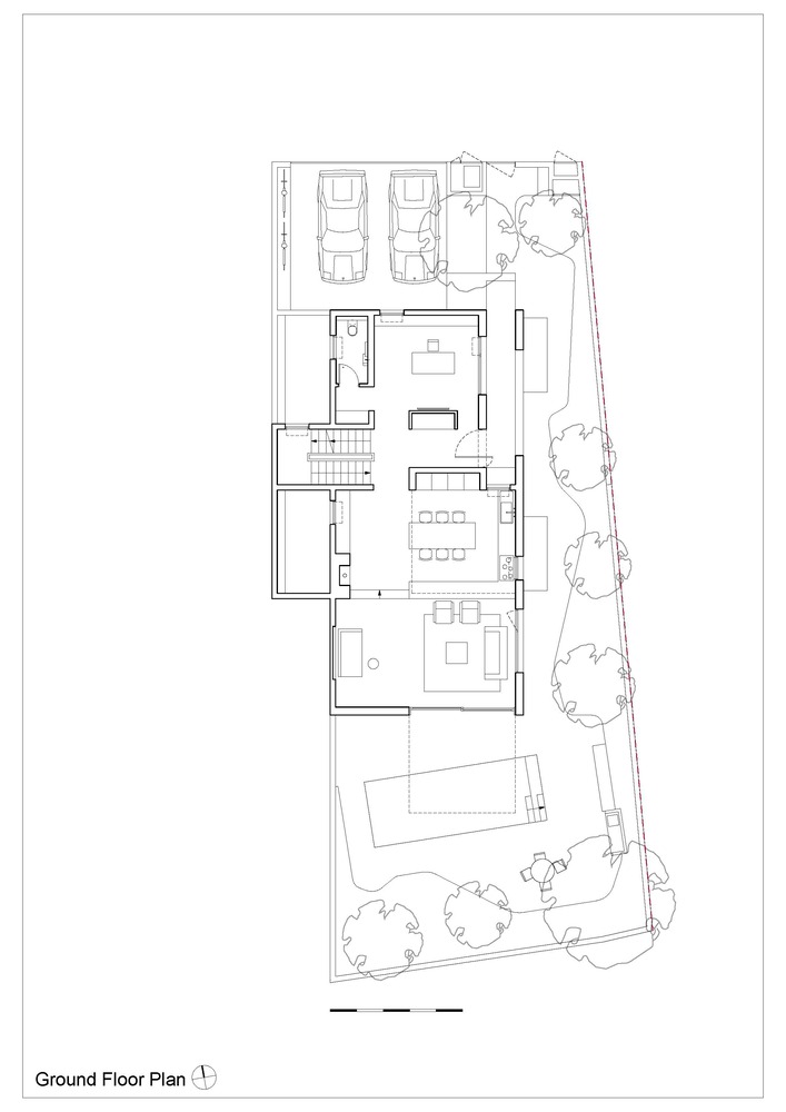
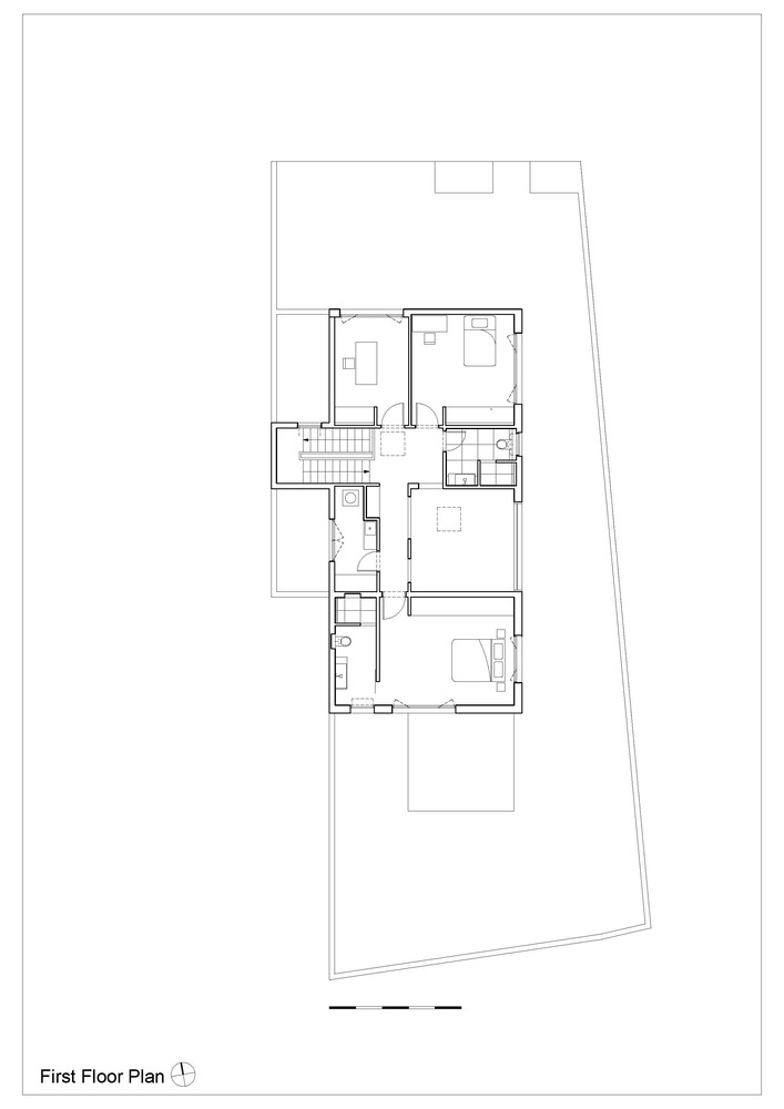
Located in a quiet small neighborhood at the center of Gush Dan, the modest façade of the house conceals a whole world behind it. The house's architectural language was dictated by committing to architecture that's closely linked to the surroundings – the location, its history, and the neighborhood's residents. The small plot obligated the design of a 3-story townhouse, divided into gradually revealing spaces, while others are visible at first sight. The house is comprised of a sequence of spaces that provide a revelation experience and are suitable to the family's lifestyle. The space is split into various zones – pleasant seating areas, sleeping, gatherings, etc.
The white box behaves both as a single room and a collection of rooms simultaneously. The envelope is perforated with openings that join and connect the walls, ceilings, and floors in a 3-dimensional way. Adjacent spaces can be seen and sensed through the openings above and beneath them, thus expanding their trivial definitions. The architecture is Mediterranean and thus sensitive to the climate aspect. The ratio of open and closed spaces is reminiscent of typical Arab village houses. The spaces allow air circulation that keeps the house cool in Summer. All the elements in the house are built, and the double walls are massive and painted white.
There are no curtain walls or claddings, no steel railings, or glass divisions. The openings are minimalist, framed with steel or wood profiles. Ceiling windows help with ventilation. The floor is covered in slate stone and the pool is heated with solar panels. The pool's design continues the opening rhythm of the house. It's located at the center of the court like a well surrounded by flora. The house's position, facing east and south, also allows the tenants the pleasure of natural daylight for most of the day.
The sequence of spaces relates to the outside, the garden, and the neighborhood. Life in the house flows in and out with no defined boundaries, and some indoor spaces are perceived as outdoors. The house architecture is such that outdoor spaces feel like indoors and vice versa. It does not speak of volumes and shapes but simply expresses the richness of the sequence.
▼项目更多图片
客服
消息
收藏
下载
最近







































