查看完整案例


收藏

下载

翻译
Architects:Sitio Arquitectura
Area :1862 ft²
Year :2021
Photographs :Josefina Viaña
Manufacturers : AutoDesk, ACINDAR, Abalum, Alba, EDFAN, FV, Ferrum S.A., TerniumAutoDesk
Lead Architects :Arq. Augusto Montes de Oca / Arq. Carlos Zelarayan
Engineering Study : VAS INGENIERÍA
Program : Vivienda unifamiliar
City : San Miguel de Tucumán
Country : Argentina
An intervention that seeks to restore a single-family home located in a small-house neighborhood in San Miguel de Tucuman.
The leading objective behind the intervention is to create a link between the existing house and the addition while maintaining the original house’s stamp. Specific actions are taken to improve the conditions that make spaces habitable, adapting them to accommodate to the new user’s daily life.
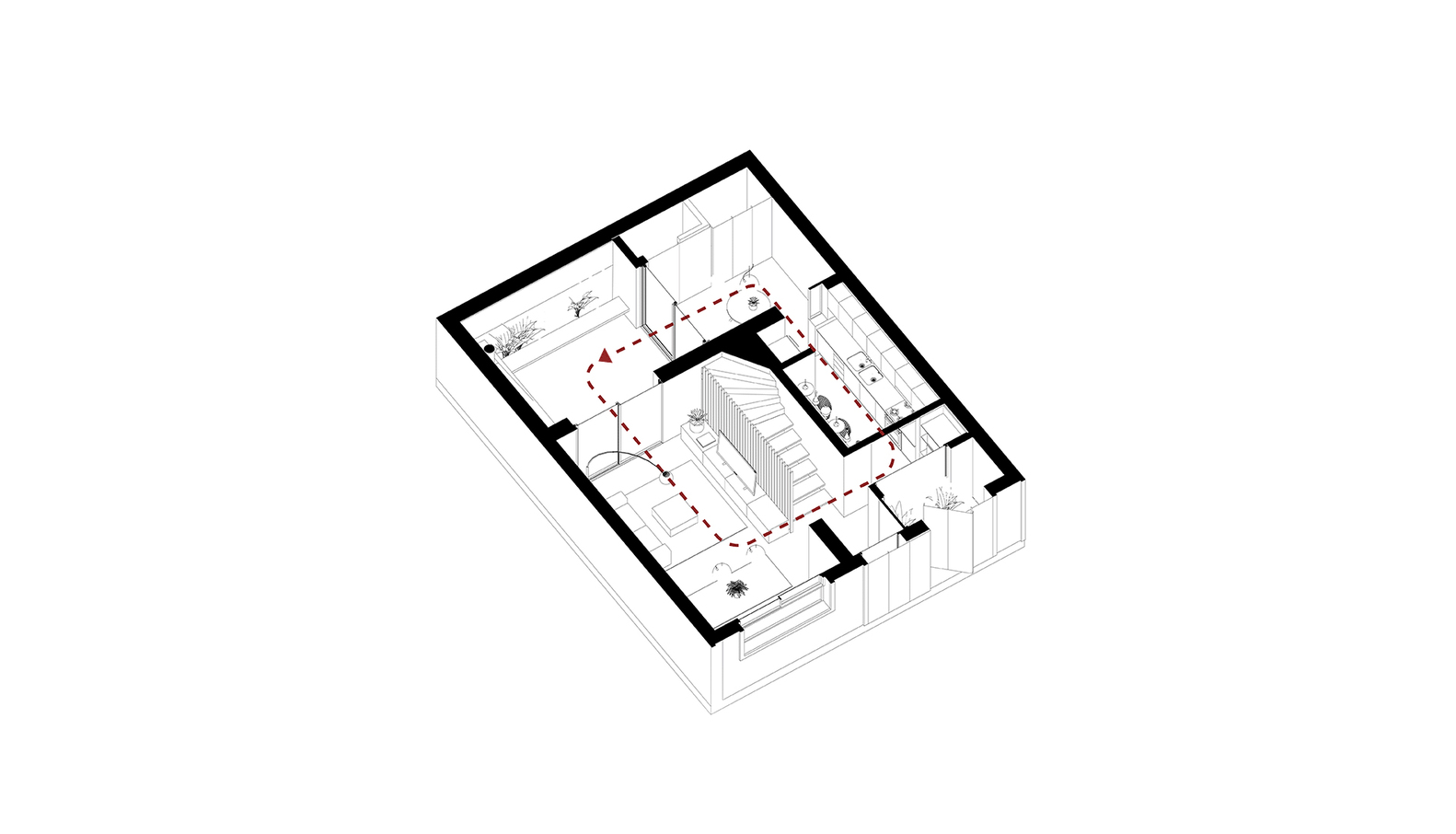
The main action was recovering the original courtyard by demolishing a room previously annexed to the second floor, giving the building a new life.
The floor was organized by rearranging the living spaces directly related to the courtyard, incorporating it into the living experience. Further, a new circuit was generated to allow a better flow between spaces.
In relation to materials, the new interventions adopt a precise, white, metallic materiality that contrasts the details with the existing materiality. This is reflected in elements in the adaptation of the staircase area, metallic screens, equipped walls to enclose service areas, and security gratings in the courtyard area. The new aesthetics is re-configured by means of seamless, flat, concrete floors and white walls.
The original facade is kept, adding a metallic element realized by means of perforated metal screens that creates a new entryway and accentuates the intervention. This transition space controls the connection between the house and the sidewalk.The house has memory.
▼项目更多图片
客服
消息
收藏
下载
最近












































