查看完整案例


收藏

下载

翻译
Designer:PRODUCE Workshop
Location:1 Zubir Said Drive, #02-01 School of the Arts, Singapore; | ;
Project Year:2014
Category:Offices;Shops
This project won the Retail Category of the INSIDE World Festival of Interiors 2015, which was held alongside the World Architecture Festival 2015.
Kki Sweets sells beautifully handcrafted Japanese-inspired French mousse cakes, and The Little Dröm Store offers art and design driven knick-knacks. And they share a space at the School of the Arts (SOTA) building in Singapore. While the design brief is simple – the two brands share a storefront, and thus they need to retain their distinctive identities and yet not look like two completely separate entities – the key challenge is to create an appropriate work that meets the standards of the award-winning SOTA building, and to create something new despite the influence of such a commanding piece of architecture.
The solution lies in American literary critic Harold Bloom's ‘Anxiety of Influence’. Bloom had warned against the paralysing anguish, doubt and self-consciousness that masterful precursors inevitably instil in young poets, and offered six methods of creative misprision to overcome this struggle. Using two of Bloom's methods – ‘Daemonisation’ (or “counter-sublime” which looks at the original source of inspiration that will naturally supersede the precusor) and ‘Apophrades’ (or "return of the dead" which is about direct engagement with the end objective of confronting the original design) – PRODUCE taps into the deep structure of SOTA and seeks not only to formulate an alternative interpretation of the building typology but to provide a diagram from which SOTA can be read.
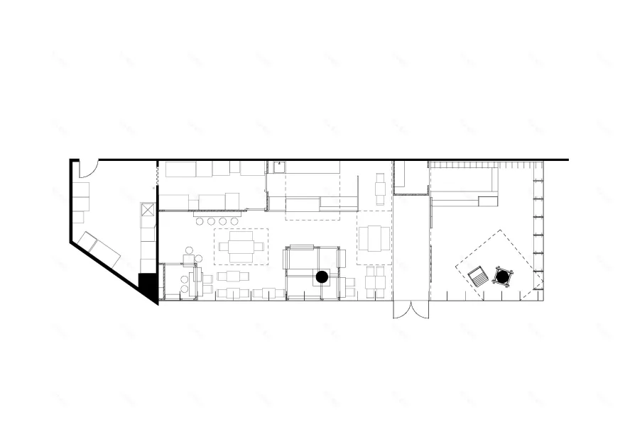
The result is a shop space for Kki Sweets and The Little Dröm Store that is a distillation of the SOTA building into its most essential diagram – a datum plane and the volumes that it segregates (i.e. the essence of SOTA’s architecture is a triple-layered parti with performance auditoriums at the base and classrooms on top. The middle layer, the datum plane, is an open mezzanine looking down at the auditorium foyers).
The datum plane within the shop is designed as a porous trellis so that the entire diagram can be observed and experienced from within. In the Kki Sweets section, volumes above the plane hints at the imaginary while the volumes below are adapted to practical requirements of eating and merchandising, forming tables and shelves, intimate interiors, and close-knitted exteriors. The plane continues into The Little Dröm Store inversely. Instead of forming voids, it occupies a volume that forms the floor of a “tree house" (a theme closely related to the brand). With the idea of the datum plane linking the two shops at a higher level, the shops are actually conceived as separate and independent entities on the ground. They are seen as occupying an open space, and separated by an “internal street" leading in from the main door with their frontage and signage orientated toward each other. This street-like space extends into KKI, meandering between the volumes of rooms.
The primary materials used are maple veneered plywood for the volumes and solid pine strips for the trellis. They are selected for their light colour so that the structure acts like a blank canvas on which the two shops can fill with colours with their variety of products. The light coloured maple and pine also helps contrast with the darker colours of the SOTA atrium. Despite the visual lightness the timber volumes convey, there are actually steel hollow section framework within. Supports to the ground are disguised as table legs and doorframes to achieve a “lifted” effect.
▼项目更多图片
客服
消息
收藏
下载
最近

























