查看完整案例

收藏

下载

翻译
Firm: LABICS
Type: Commercial › Exhibition Center Cultural › Gallery Museum Educational › Auditorium Nursery Hospitality + Sport › Wellness/Spa
STATUS: Built
YEAR: 2013
SIZE: 10,000 sqft - 25,000 sqft
BUDGET: $10M - 50M
MAST Foundation is a cultural and philanthropic institution that focuses on art, technology and innovation and favours the development of creativity and entrepreneurship also cooperating with other institutions, in order to support economic and social growth.
Conceived by the president of COESIA -an innovation-based industrial solutions company- Isabella
Seragnoli , MAST is a private initative open to the community that improves both staff welfare and the company’s public image .
The activities offered to external visitors, as well as the services dedicated to company employees, share the same philosophy based on technology, art and innovation.
The building is the result of a restricted design competition held in 2006. The winning architectural firm studio Labics (leaded by Maria Claudia Clemente and Francesco Isidori) was appointed to
develop the project.
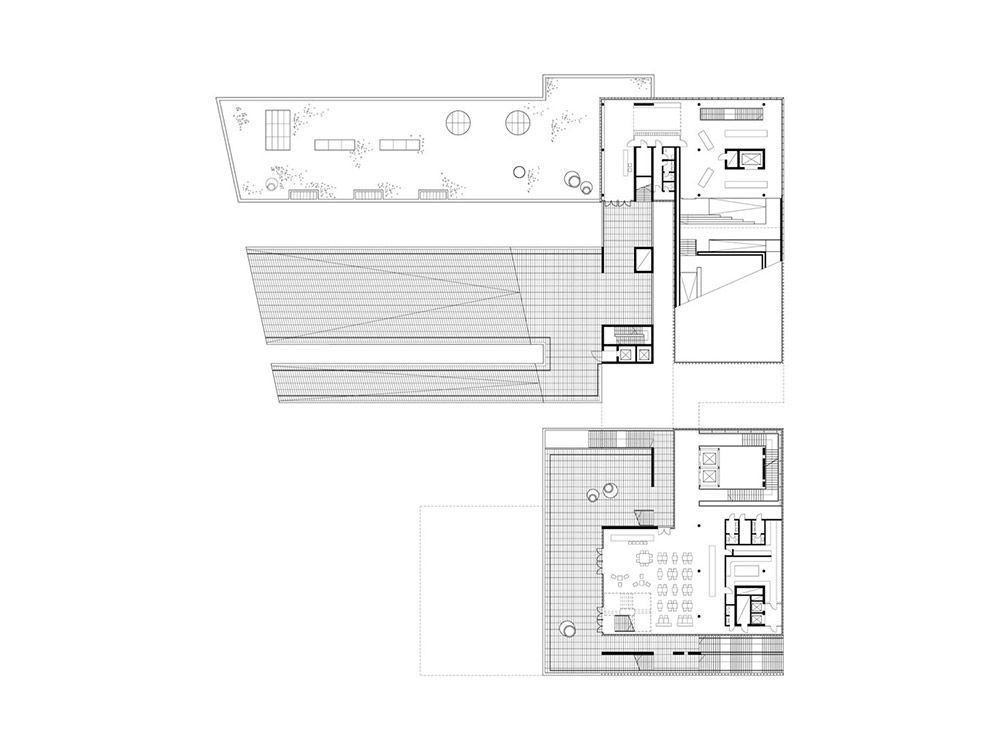
Building as a border.
The competition brief asked to develop a series of buildings across the company campus, providing staff facilities – creche, canteen, academy, staff club and wellness centre – as well as public spaces such as a training centre, auditorium, and a company museum.
The program of the competition has been interpreted by Labics who aimed at bringing together different functions in a single complex and giving the building greater strength and identity, so as to
delineate an interface between public and private.
The final result is a composite building, a sort of micro-city dedicated to arts, innovation and technology appearing as compact volume from the outside, yet articulated in pathways and functions on the inside.
Starting from the ground floor, MAST hosts a company canteen, an exhibition hall, service rooms, a gym and a large nursery with its own garden. First level has an exhibition space and a cafeteria, whereas the top floor is partly occupied by a number of classrooms, a spacious foyer and an auditorium which can accommodate 400 people. Therefore, an underground three-level parking for
company staff as well as visitors.
Between building and path.
To fulfill the elaborate and diverse functional programme requests, the building was designed studying the possible dynamics of users flows through various inner spaces.
A continuous path runs through the entire building and links together all the activities , connecting them with the city and turning the complex into an lively place open to the community.
Two major pedestrian ramps extend from the core of the building to the main access, from where you can reach the exhibition space on the first floor and then continue toward the foyer and the
auditorium, one of the nerve centre of the complex. Passing through the full height space, you can go down to the cafeteria and the company canteen.
The complex expresses a somewhat hybrid identity, which cannot be identified with one of the activities hosted, but at the same time, it is able to represent them all.
Between public and private. The building differs from the surrounding fragmented urban fabric in that it addresses its context,
mediating between the solidity of the existing buildings on the company campus and the open spaces of the nearby River Reno park. It therefore has two ‘fronts’: a private, linear one which relates to the existing company buildings, and a second, public front that opens toward the city and park.
This entrance consists of long ramps which directly address the park, inviting the public into the heartof the building.
Wrapping.
MAST appears as a light, translucent and changeable building. The double skin-glass envelope covers the entire facade and it is composed of two layers: a transparent curtain wall and a glazed layerscreen printed with a pixelated photographic design; at night, the building becomes a bright seetrough
object.
The landscape project is designed by architect Paolo Pejrone.
At the main entrance, the monumental red sculpture ‘Old Grey Beam’ by Mark di Suvero.
客服
消息
收藏
下载
最近





































