查看完整案例

收藏

下载

翻译
Architect:Hitzig Militello arquitectos
Location:Buenos Aires, Argentina; | ;
Project Year:2013
Category:Bars;Restaurants
The design responds essentially to a clear picture provided by the client, an image and personal style of a specific period and aestheticism aimed to a sophisticated audience. The choice of "secret " doors clad in brick in the hallways answers to an allusion to the concept of speakeasy bar. In the front, a coffee place whose characteristics mark tendency. Without intending to replicate or reproduce a time era, the proposal seeks to build a patchwork of situations and conceptual triggers, therefore generating the intended climate. Spatially, the factory setting is typically ethereal, so there was a clear intention to divide the space in order to generate a low spatial scale. The use of "stations" is a strategy that create distinctive focus areas in the project, giving the design a different area of enjoyment, not only bar o vip spaces, but a third space : distinctive, heavy, dim.
The connections between the stations and the bar mimic the concept of distilling whiskey, but function as lighting and winery. The last room assembles the living rooms which are divided by scissors screens that may eventually move to change the distribution. This achieves two objectives, maintaining the industrial image and, furthermore, generating a versatile space.
Design challenges:
Organization
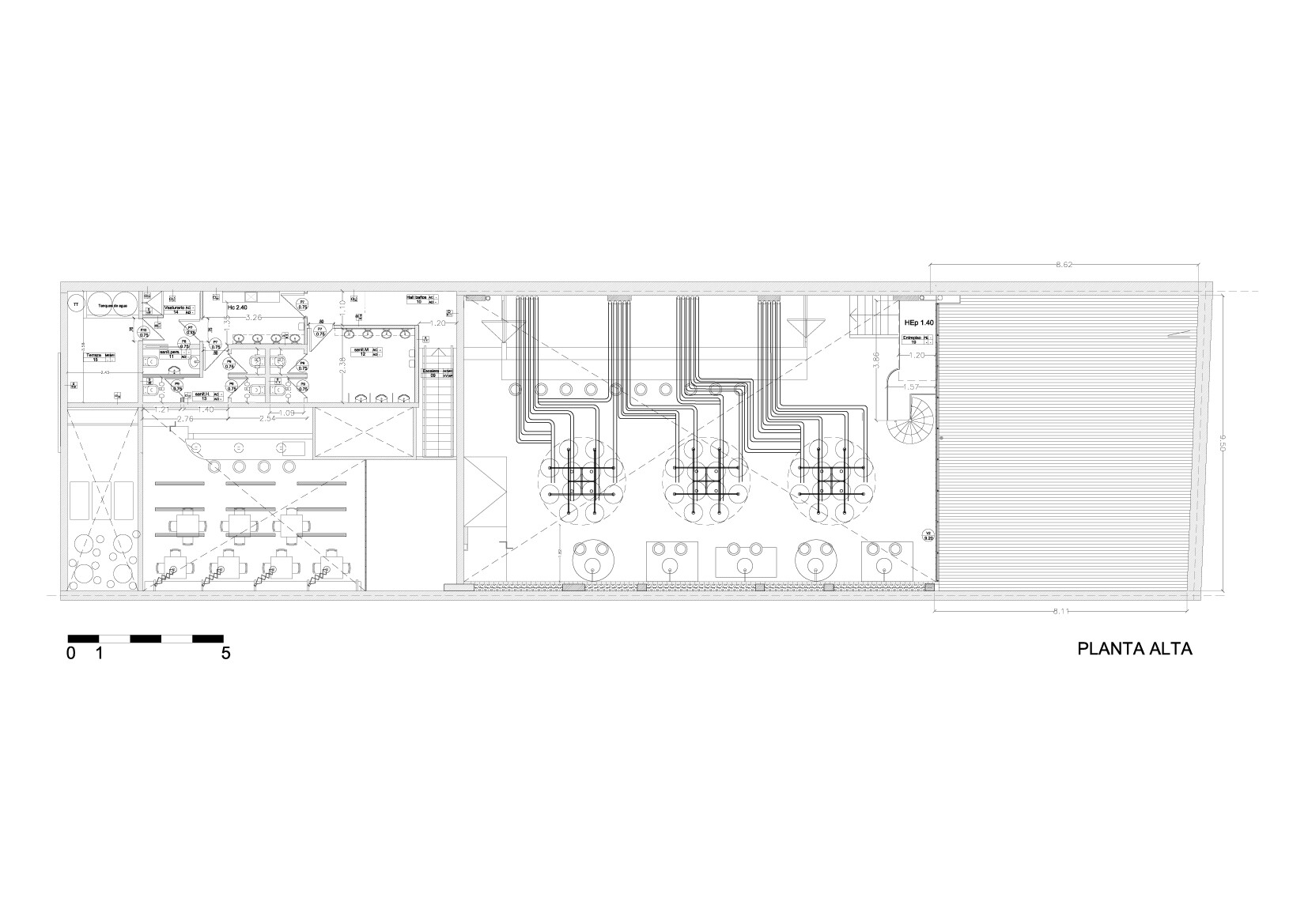
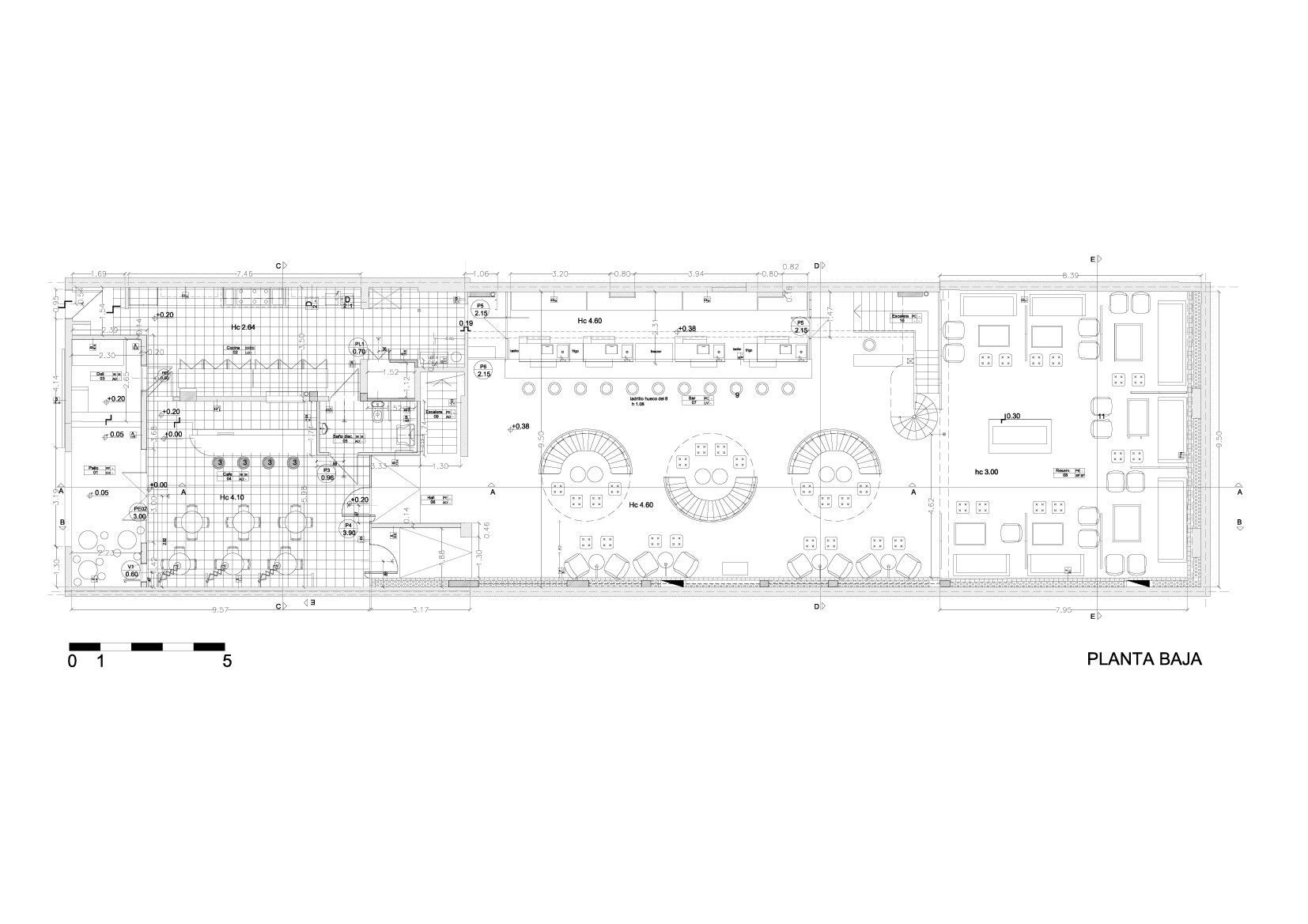
The space where the intervention took place was an abandoned warehouse. Nothing, with exception of the kitchen, could be used for the new project . Organizationally, being bar and the coffee place separated, it was necessary that many areas were common to both which required an overall design of the space in order to allow this.
Insulation
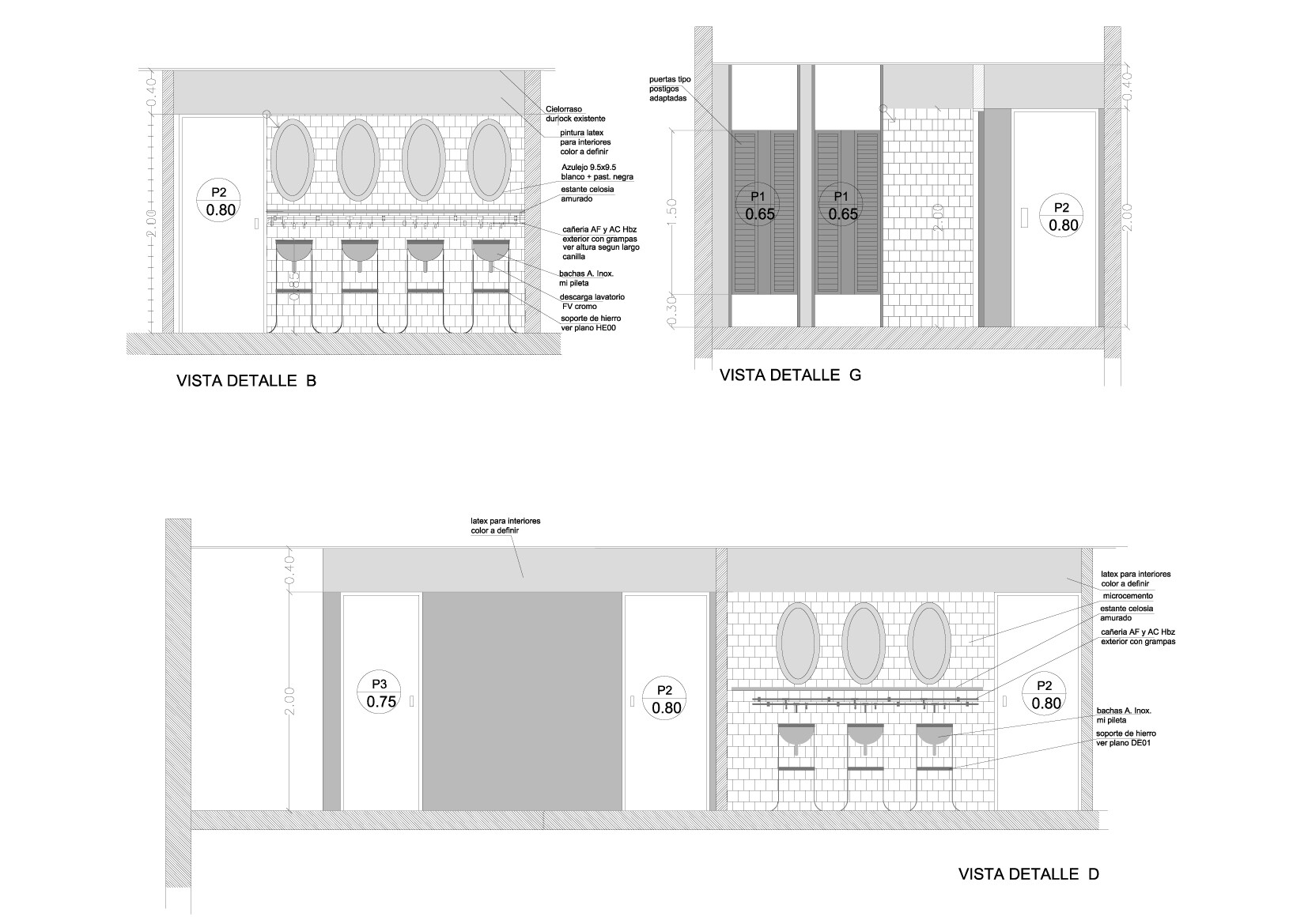
It was necessary to build a surrounding brick wall with different types of insulation (glass wool and rubber). The insulation on the ceiling was resolved with projected cellulose.
Structure
For the construction of the three central stations of the room it was necessary to place structural welded tubes from the old ceiling of the room to hold 12 old industrial barrels.
Lighting
All lighting was installed through cable trays which allowed easy distribution . The choice of lighting was through spot dimmable lights and dimmable led.
Decorations
Two artifacts were built formed through the union of antique pieces and new objects. Both devices work and have movement. A clockwork watch designed via vertical gear, and an old machine from nineteenth century. The brick walls where aged by a specialized scenery designer that performed these tasks. The result is similar to an old factory from the late nineteenth century.
Project_ Documentation
HM.Arquitectos _ Fernando Hitzig & Leonardo G. Militello
Project managment:
Leonardo G. Militello
Promoter:
The Edge SRL
Project team:
Arq. Magdalena Molinari
Constructor:
HM.Arquitectos & Luis Acosta
Structure Advisor:
Carlos Gadini
Acoustics Advisor:
Ariel Sueiro
Collaborators:
Branding: Santiago Spiga -The brand bean-
Scenographer: Clock, Machine, brick wall: Jerónimo Basso
Muralist: Martín Ron
Installation Data, cameras, alarms: Claudio Katcheroff
Renders:
Bad Pic ( Juan I. Rosales & Lucia Stafforini )
Photography:
Andres Martellini
Total Covered Surface: 377 m2
Total Uncovered Surface: 8 m2
▼项目更多图片
客服
消息
收藏
下载
最近





































