查看完整案例


收藏

下载

翻译
Firm: caspar.
Type: Commercial › Office
STATUS: Built
YEAR: 2017
SIZE: 300,000 sqft - 500,000 sqft
Architecture thought digital: With «La Tête», a future-oriented media house was created, and the Handelsblatt Media Group moved in. The barcode façade with an integrated mega screen does not only represent the digitalization of the media world, it transforms «La Tête» into a living social media channel, turning the inside out — making visible from the outside what is produced inside.
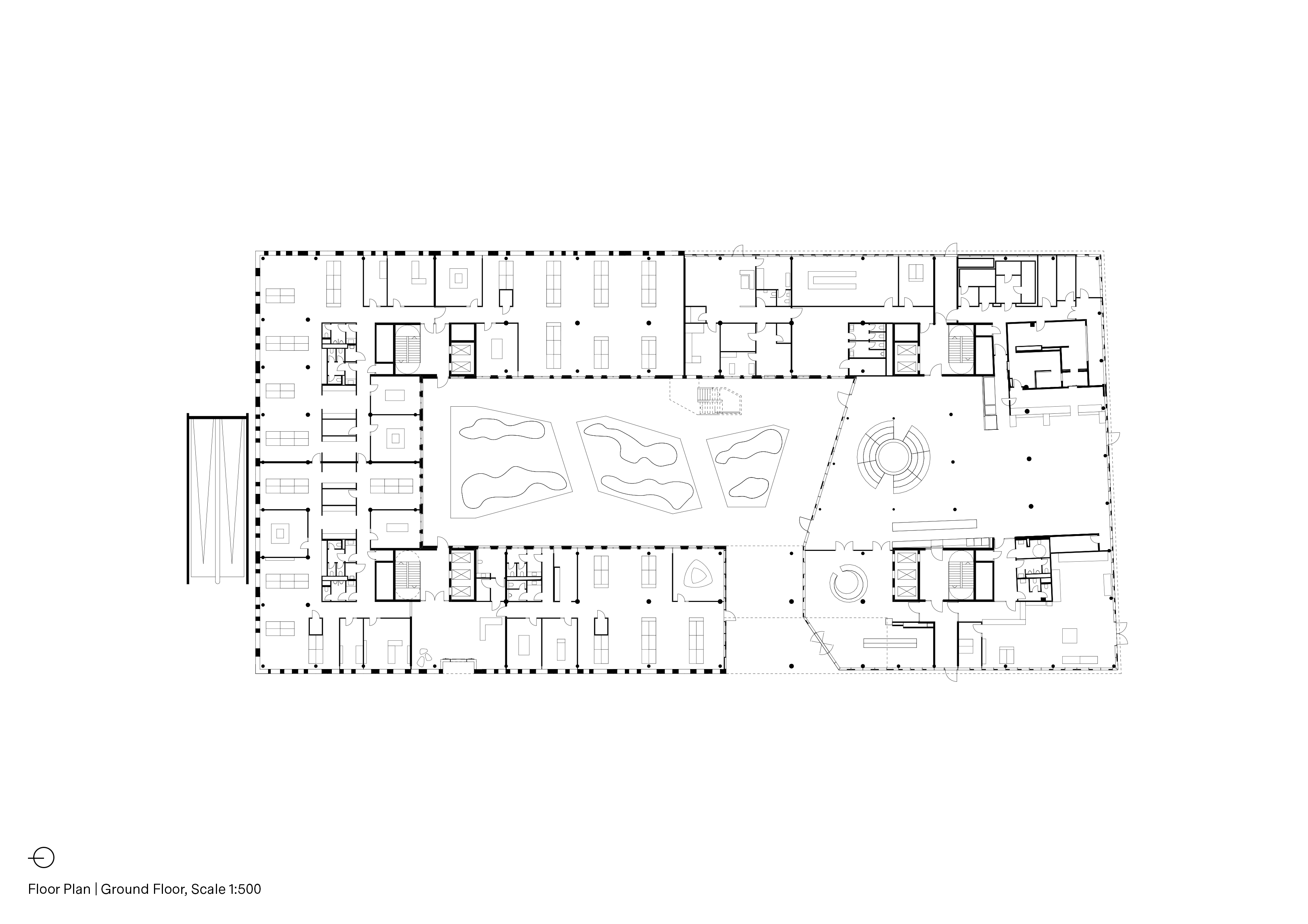
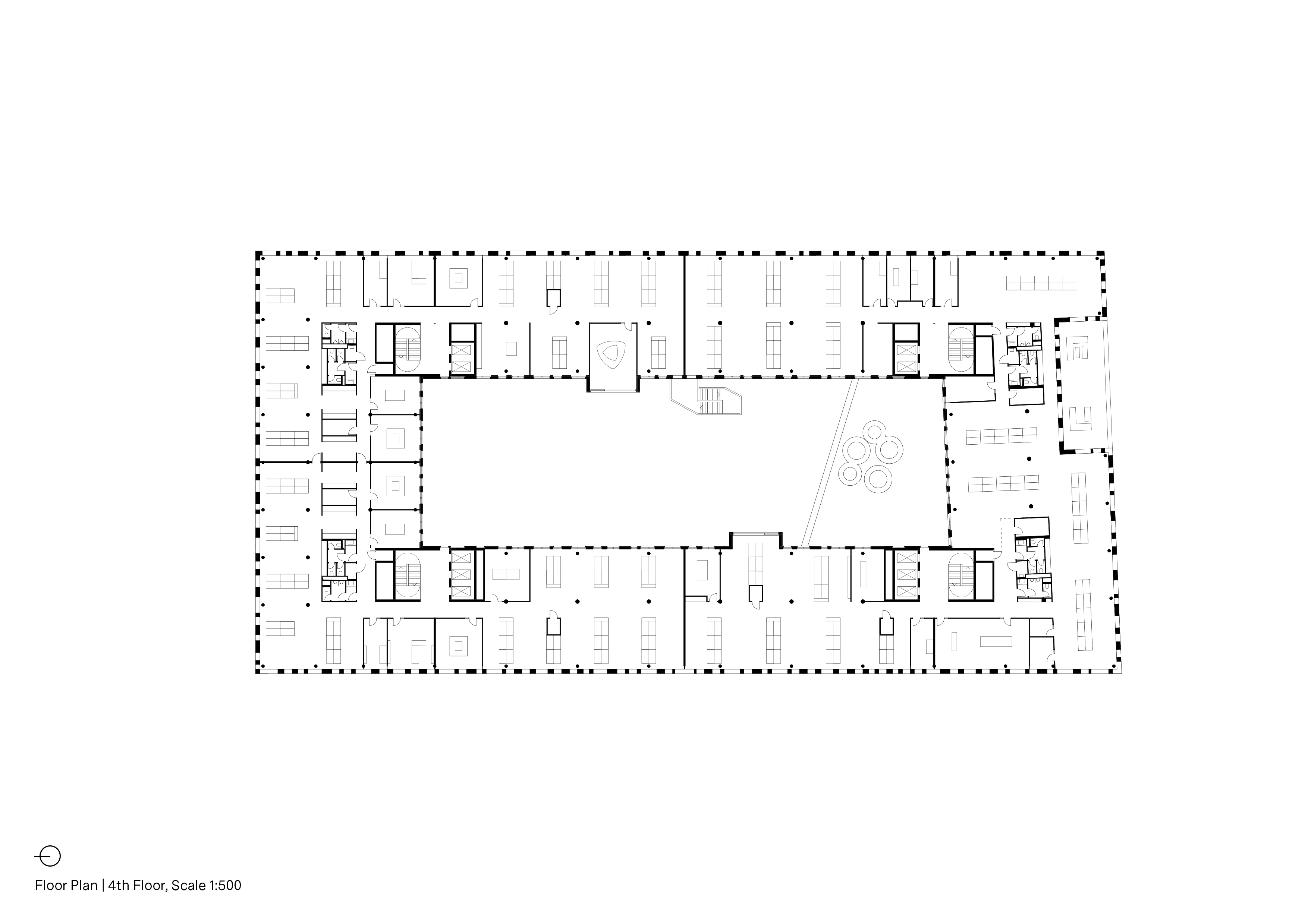
Central ideas where opening up the house for the public as well as integrating the 80 square meter mega screen, making the content produced by the Handelsblatt Media Group readable. It can be seen from the Franklin Bridge and is an important communication channel for around 280 000 train passengers who arrive at Düsseldorf Central Station every day. The barcode façade reflects the digitalization of the media world, a refined lighting technology and a Skygarden complete the picture of state-of-the-art technology and a clear building form. Digitalization has created new spaces. With «La Tête», caspar. developed a characteristic, 30 meter high, cube-like building geometry with 25.500 square meters GFA above ground. An interplay of volumes and surfaces enables different office typologies. The mix of six floors, one staggered floor and two basement levels, offers options for open spaces, single, double and group rooms. Space arrangements for every imaginable form of new media production are possible. Layouts that allow open exchange and communication but remain modifiable.
To abstract the idea of digitalization and make it visible in the architecture of the building was a logical consequence. This includes the 60 square meter Skygarden, intended for all employees and events. An atrium and town hall highlight additional public spaces. Since not only the content is turning towards social life, but also its manufactures, the publishing houses, «La Tête» conveys exactly this idea — of open space architecture.
Client: Aurelis Real Estate Service GmbH
Photo Credits: HGEsch, Hennef
客服
消息
收藏
下载
最近













