查看完整案例


收藏

下载

翻译
Firm: CLUB MARGINAL ARCHITEKTEN
Type: Commercial › Office
STATUS: Built
YEAR: 2012
SIZE: 1000 sqft - 3000 sqft
BUDGET: $10K - 50K
Photos: Waldemar Salesski (7)
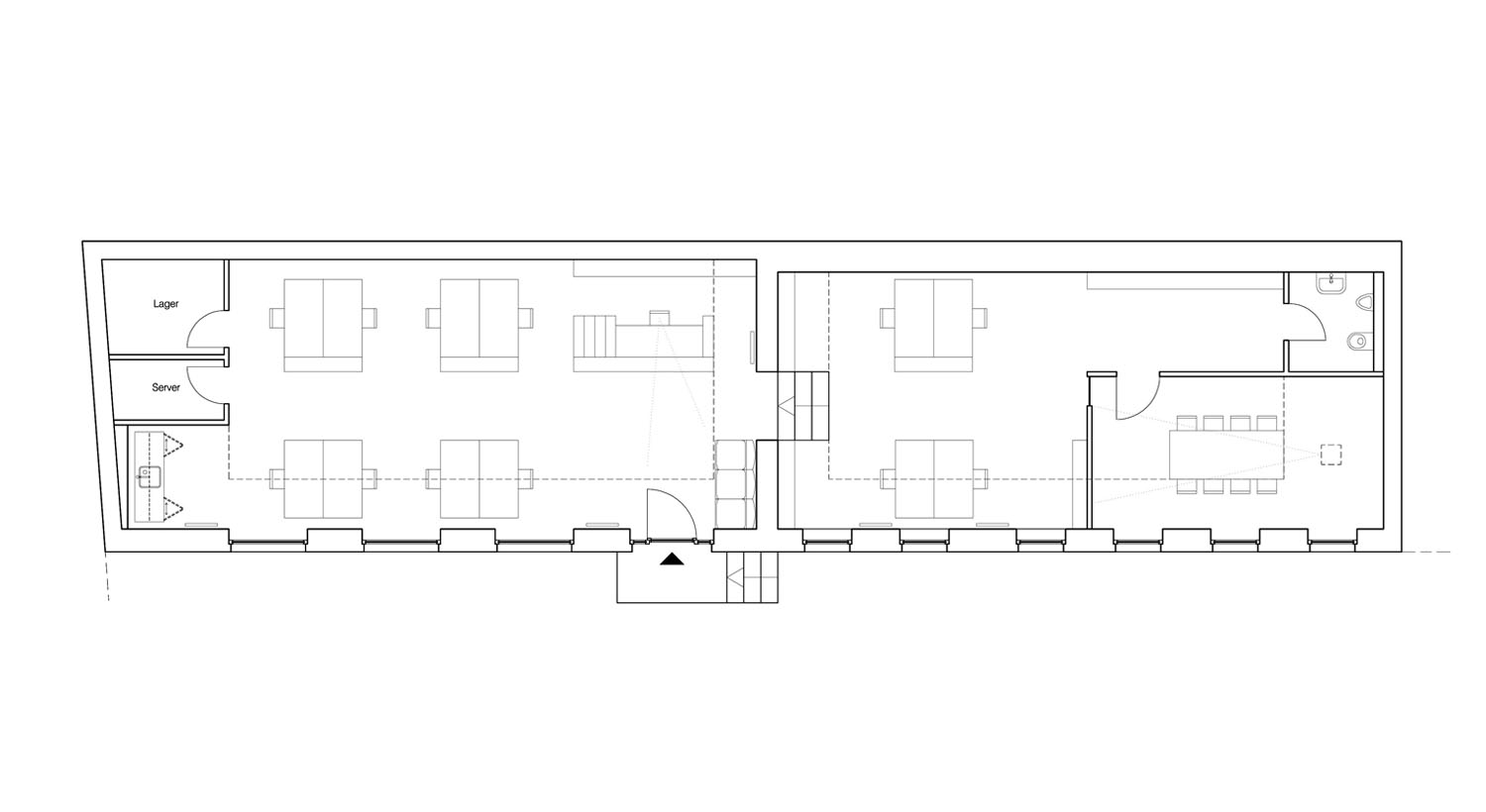
Near the buzzy train station Schlesisches Tor at Köpenicker Straße in the depot of a former sewing-mashine factory, Fluct’s office is located. Here, internet based systems in support of communication- and business processes are being developed.
The office’s interior that was designed during an intensive dialogue between architect and client, and finally taylor-made. It reflects in many ways how this young Berlin company thinks and works.
Photographs: Waldemar Salesski, Berlin
客服
消息
收藏
下载
最近










