查看完整案例


收藏

下载

翻译
Architect:Lukstudio
Location:Changsha, China
Project Year:2015
Category:Restaurants
Noodle soup is a common street food all over China. While most of these noodle joints spend tremendous effort to win customers with taste, some has started to add attractive store design into their branding recipe. A good example is Long XiaoBao, a newcomer who sets foot in Changsha with an ambition to spread the local ShaoYang style rice noodle to the rest of China. Commissioned to conceive a contemporary identity for their first restaurant, Lukstudio integrates the tradition of noodle making in the spatial design by reinterpreting a noodle rack.
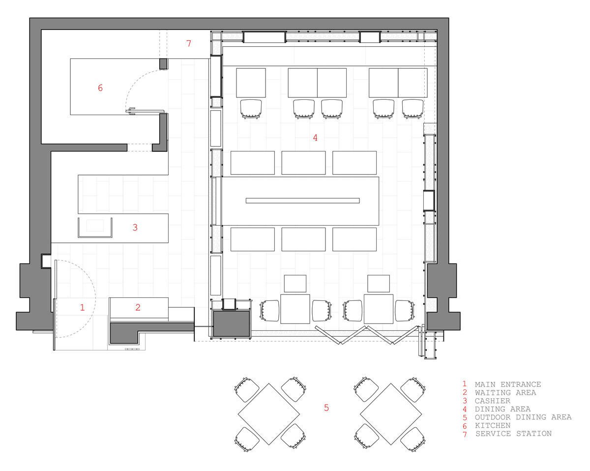
Nestled along an outdoor shopping promenade nearby the Xiangjiang River, the 50-sqm noodle joint exudes a calm yet mysterious presence with its bamboo-cast concrete storefront. Two rustic steel boxes penetrate through the solemn exterior: the taller one is cladded with rusted steel panels and its shorter neighbor is built like a metal scaffold.These three elements together orchestrate a journey of discovery.
Walking past the entry box, a customer is greeted by a composed counter design lined with the bamboo mold used for casting the exteriors. As one proceeds towards the halo surrounding the grid structure, the interior layers start revealing themselves. Firstly, the original wall is stripped down to its structural blocks to resonate with the rustic metal grid. Secondly, wooden boxes are carefully placed within the rack to showcase selected porcelains. Finally, a series of metal wires are draped across the dining room to create the lighting feature with hanging bulbs. Balancing the rustic interiors, these reflective strands create a poetic notion of dining under a noodle rack.
Playing with the duality between rustic and refined, eastern tradition and western representation,Lukstudio introduces a crossover between fast food chain and upscale diner. The Noodle Rack differentiates itself from the stigma of kitsch fast food “hole in the wall”on every street of China. It demonstrates how Chinese eateries have the potentials to be reborn into hip gathering spots comparable to the new trend of cafés.
▼项目更多图片
客服
消息
收藏
下载
最近



















