查看完整案例


收藏

下载

翻译
Firm: NEOHouse CTy Thiết Kế Kiến Trúc Biệt Thự-Nhà Đẹp
Type: Commercial › Office
STATUS: Built
YEAR: 2020
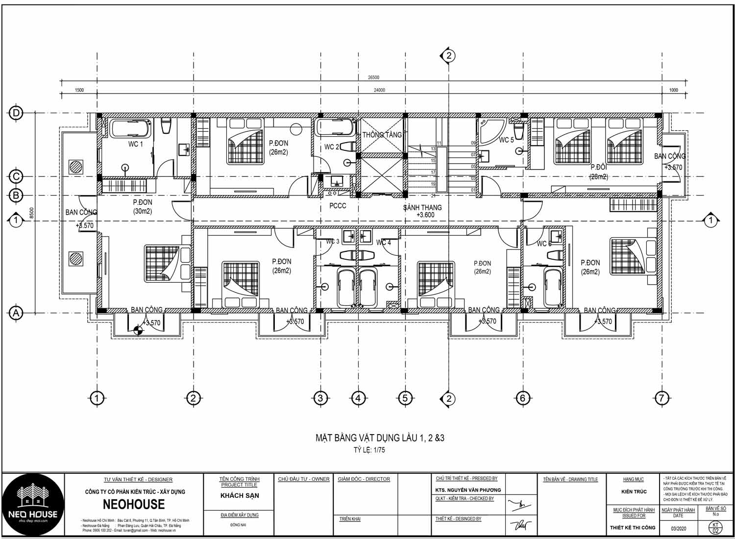
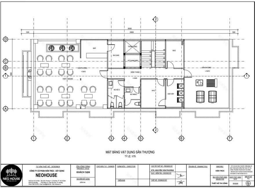
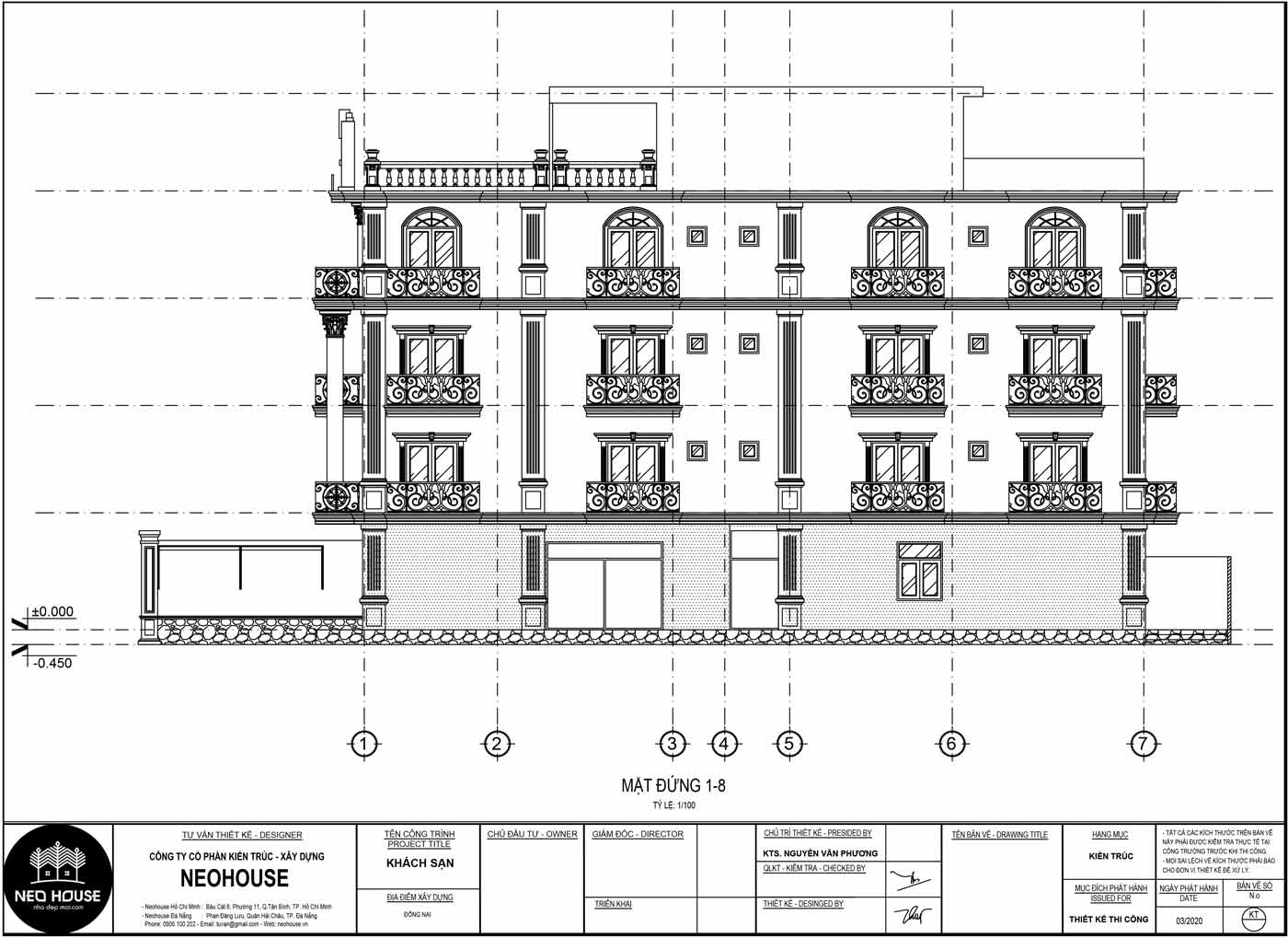
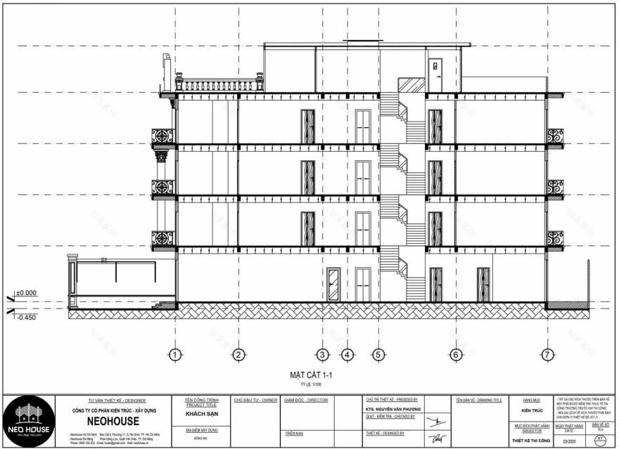
Sở hữu cho mình diện tích mặt tiền 8,5m, mẫu thiết kế khách sạn 3 tầng đẹp với kiến trúc tân cổ điển kiểu Pháp được lên phương án tính toán một cách tỉ mỉ và chi tiết nhằm mang đến một công trình kiến trúc đẹp, thu hút người xem. Bên cạnh nét đẹp cuốn hút của không gian mặt tiền là sự sang trọng và đẳng cấp trong thiết kế nội thất. Mẫu khách sạn kiểu Pháp tại Đồng Nai với diện tích 204m2 được bố trí mặt bằng công năng từng phòng vô cùng khoa học, hợp lý tạo nên những khu vực nghỉ dưỡng lý tưởng cho các du khách khi đến thuê phòng tại nơi đây.
Các không gian phòng nghỉ của khách sạn 3 tầng được thiết kế khéo léo, linh hoạt sao cho luôn đáp ứng view hướng ra không gian bên ngoài, tạo nên một không gian cho du khách thư giãn thoáng mát, rộng rãi và đáp ứng được tất cả các yêu cầu mà các du khách mong muốn cũng như chinh phục được trái tim và sự hài lòng của chủ đầu tư.
Xem chi tiết: https://neohouse.vn/portfolio/thiet-ke-khach-san-kieu-phap-5-tang-dang-cap-330m2/
Thông tin liên hệ:
NEOHOUSE - HCM
Đ/c: 8B, Bàu Cát 8, P. 11, Q. Tân Bình, TP. Hồ Chí Minh.
Tel: 0906 100 202.
NEOHOUSE - ĐÀ NẴNG
Đ/c: 63 Phan Đăng Lưu, Q. Hải Châu, Tp. Đà Nẵng
Tel: 0903 544 641.
LH Đối tác: info@neohouse.vn
LH Tư vấn khách hàng: tuvan@neohouse.vn
XƯỞNG NỘI THẤT: Đường Bà Điểm 3, Ấp Bắc Lân, Xã Bà Điểm, Huyện Hóc Môn.
XƯỞNG SẮT- CỬA NHÔM KÍNH: Đường số 4, P. Bình Hưng Hòa A, Q. Bình Tân.
客服
消息
收藏
下载
最近

















