查看完整案例


收藏

下载

翻译
Firm: taller paralelo
Type: Commercial › Office
STATUS: Built
YEAR: 2020
SIZE: 10,000 sqft - 25,000 sqft
BUDGET: Undisclosed
The Client Strategy offices of Banco Santander México is a project that Taller Paralelo developed with our client's active cooperation.
This space accommodates all the activities related to the coordination of client relations; therefore, the design creates a modern work atmosphere: open, collaborative, and flexible. It is different from what users are familiar with, but breaking schemes reflects the culture promotes new workflows and shows this institution's passion.
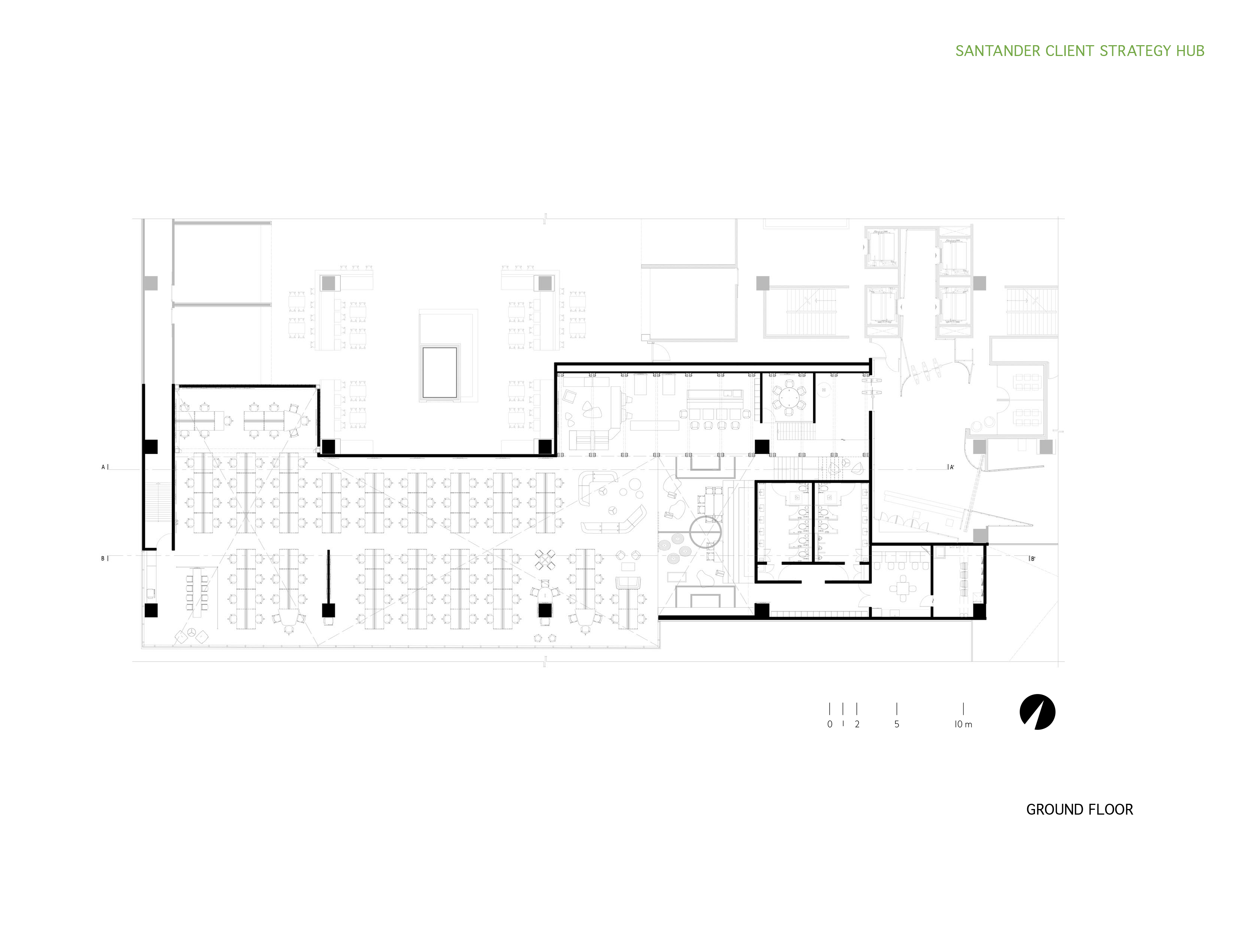
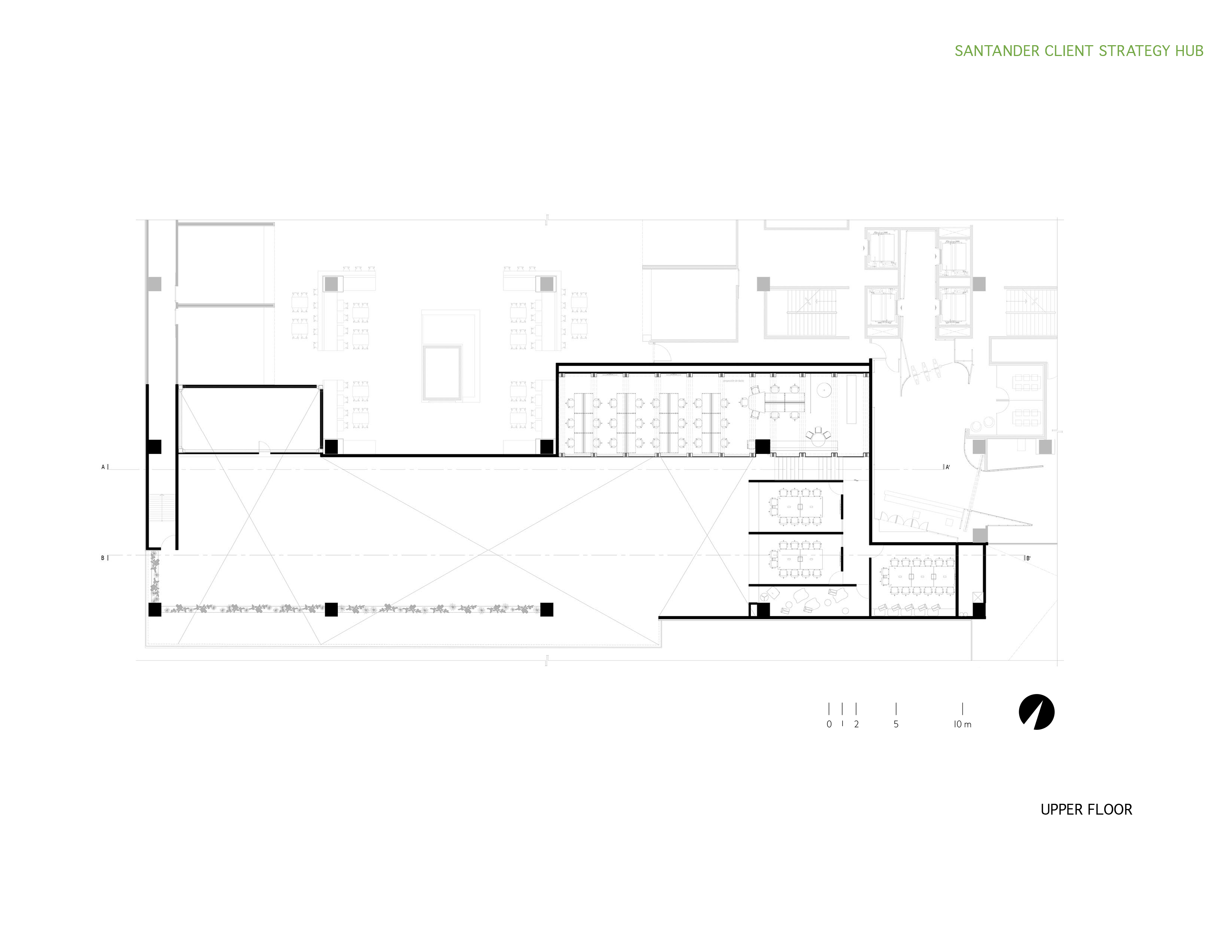
The corporate building has an area of 1,274 m2. 350 m2 destined for a wooden mezzanine with steel joints. It represented an outstanding challenge since its design and structural purpose ought to answer to functional and aesthetical needs. This element, unusual to guidelines for corporate design, is sustainable: wood is the only construction system with a negative balance of carbon emissions and contributes to CO2 elimination from the atmosphere.
The remaining areas have atmospheres with spirited hues, inspired by Soccer, which Santander is a recognized world-class sponsor. The main area is a multipurpose space that evokes a soccer field with equipped bleachers that allows conferences or courses. It is a dynamic and flexible place. The finishings use mainly the color red, the brand's trademark. We achieve to generate harmony in combination with another range of hues.
In this space, 180 Santander Mexico employees will find an open and collaborative environment that reflects vanguard and is committed to modernity.
—
Authors: taller paralelo / César Flores, Mikel Merodio
Collaborators: Addai Ramírez, Ricardo García
Client: Santander México
Real State: Arq. Edmundo Pérez Toledo, Arq. Marcela Rodríguez y Arq. Juan Pablo Sánchez
Lighting Design: ILWT / In Light We Trust
Photography: LGM Studio / Luis Gallardo
Muralist: Ugo Dierck / Hugo González Salas y Colectivo Tlatoa
客服
消息
收藏
下载
最近























