查看完整案例


收藏

下载

翻译
Firm: FORMAAT
Type: Commercial › Office
STATUS: Built
YEAR: 2020
Gonsberg Loft
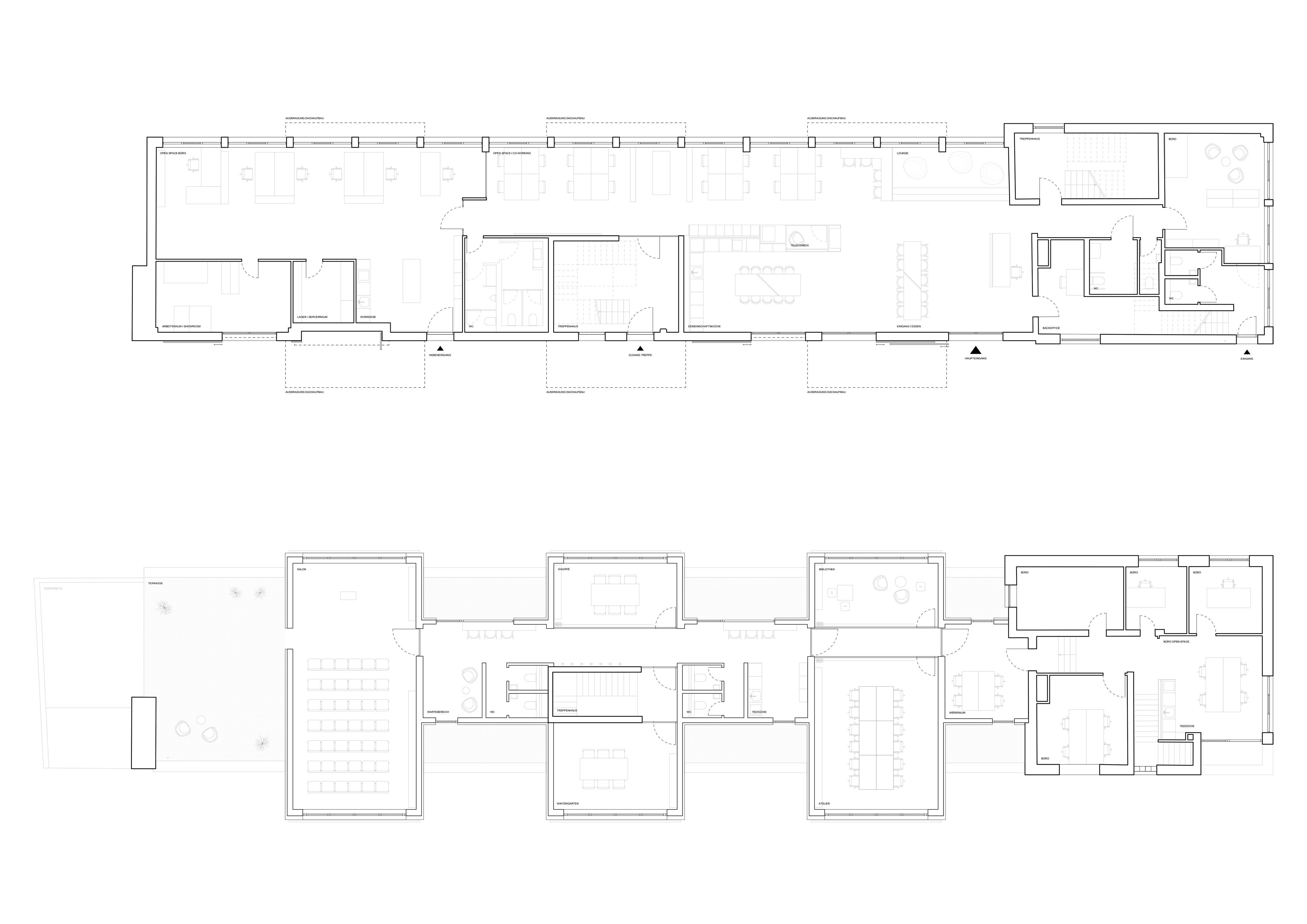
Der Bestandsriegel des Gonsbergareals mit seinen ehemaligen Wasch-, Büro und Werkstatträumen wurde saniert und mit einem neuen Dachgeschoss als Holzkonstruktion erweitert und aufgewertet. Während die ersten Etagen des Bestandriegels geschossweise vermietet sind, wird auf der Ebene des Gonsbergareals ein Coworking-Space implementiert. Der Holzbau stellt die dafür notwendigen Meeting- und Konferenzräume zur Verfügung.
Der Charakter der Wasch- und Wertstatträume im Bestand konnte durch die minimaliversiven Eingriffe erhalten werden. Neue Möbeleinbauten zonieren die Räume und erfüllen Ihre Funktion als raumprägende Elemente.
客服
消息
收藏
下载
最近













