查看完整案例


收藏

下载

翻译
Architect:Bar Orian Architects
Location:Tel Aviv, Israel; | ;
Project Year:2021
Category:Apartments
Zamenhof Compound is an early 20th-century building that was restored and modernized with the addition of two contemporary floors, marking the Bar Orian’s prowess for rejuvenating Tel Aviv’s architectural fabric. Zamenhof Compound is a testament to Tel Aviv past, present and future, centering around a “thermometer” window and an entrance hall from which two long wings split in opposite directions, a flagship characteristic of the International architecture-style. Marking its architectural significance, the building is designated within Tel Aviv’s White City, a UNESCO World Heritage Site for its collection of more than four thousand Bauhaus and Eclectic Architecture-style buildings.
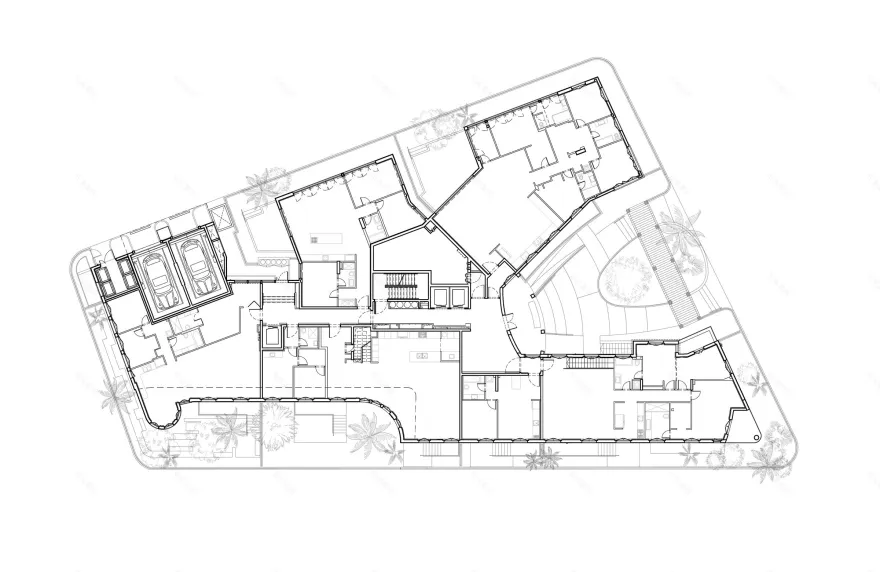
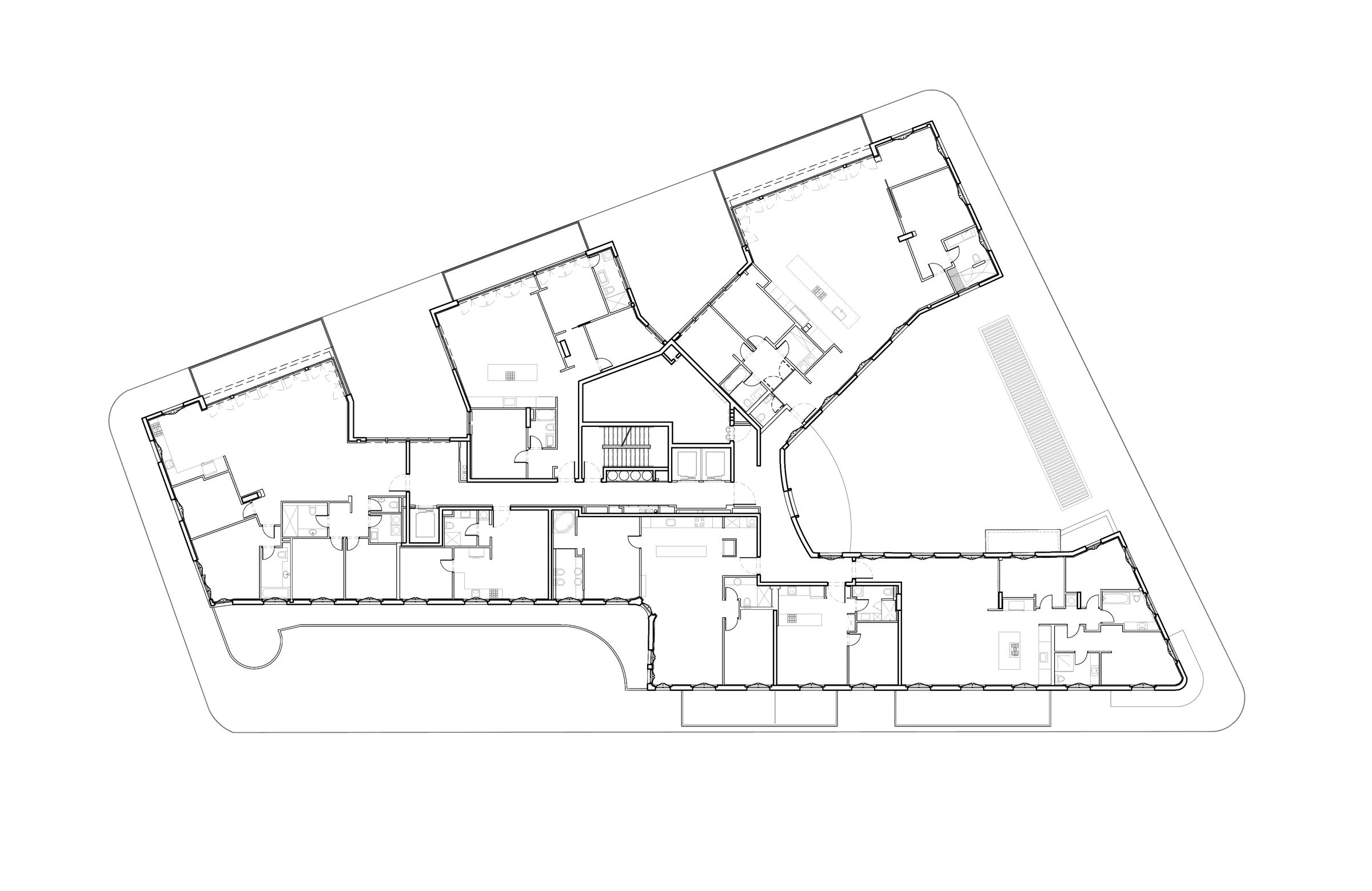
Zamenhof Compound lies within a tree-lined street in central Tel Aviv. The project is a five-story building that stretches over four city blocks and creates a unique juxtaposition and plot size that is unique to the White City of Tel Aviv. Bar Orian was tasked with transforming a twentieth-century building that was originally designed as a medical clinic by architects Yochanan Ratner and Emmanuel Wylinsky in 1935 to a contemporary residential building which suits the rapidly growing demand of local and international denizens.
Zamenhof Compound boasts a new extension that follows the external contours of the two building’s original wings, adding three masses which, from the front, portray independent structures that naturally assimilate into the urban fiber. The contemporary extensions pay homage to the Bauhaus style of architecture of the White City that is characterized by simplicity of form, functionality, large openings, and wide balconies. Zamenhof Compound also boasts projecting balconies that were added to the front of the building, acting as a design element that enhances the building’s three dimensionality.
Holistically blending in with the existing structure and the surroundings, and despite its exceptional dimensions, the design of the newly added fourth and fifth floors create a contrast where the recessing contours of the upper floor lead to a roof terrace and broad exterior spaces. The upper-floor walls are covered with dark horizontal aluminum louvers, a shutter with horizontal slates that is angled to admit light and air and keep out rain and reduce direct sunshine, which creates a negative image to the stark bright whitewash of the original building.
During the planning process, the architectural challenge itself evolved into an opportunity that allowed warm natural light to stream into the building through openings set at regular intervals, which was central to the recovery of patients during its original incarnation.
These “natural light corridors” were retained during the restoration and replanning process to the benefit of the residents of the building. During the meticulous Bauhaus preservation process, Bar Orian was able to adapt the structure to contemporary needs, such as creating parking areas under the existing structure, adding air-conditioning systems and modernizing electrical and plumbing systems.
Design Team: Omri Rimon, Merav Gelbart
Interior Design: Tal Bar Orian, Hadas Bar
Management and supervision: Ephrati Madpis Ltd
Civil Structural Engineering: Jacob-Yuval Achbert
Contractor: Etz HaShaked
▼项目更多图片
客服
消息
收藏
下载
最近
























