查看完整案例


收藏

下载

翻译
Architect:Hrishikesh More Architects
Location:Kanjur Village Road & Seth Govindram Jolly Marg, Nehru Nagar, Kanjurmarg East, Mumbai, Maharashtra 400042, India; | ;
Project Year:2021
Category:Apartments
Everything about this design looms out because of the way natural light pours in. Specially the morning light that fills up the space creates a perfect setting for a cosy, bright and airy space. The design was conceptualised keeping a young couple in mind who moved to their maiden home in this maximum city. Being a gracious host, the couple wanted to create a cosy, homely setting perfect for sitting back with a cup of coffee or entertaining a small group of friends and family. ‘Storage and more storage’ were the prime concern, for which they vouched on us (Hrishikesh More Architects).
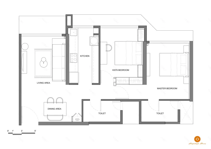
Located in central suburbs, it’s a two-bedroom apartment with carpet area of 700 sq.ft. ‘Less is More’ - A serene pastel palette accentuated with hand-crafted teak wood furniture, maintains an old-school aesthetic added to the subtlety of this minimalistic home. A minor tweak in the partition wall layout gave us the flexibility of adding extra storage space to this compact apartment. The result is subdued, comfortable, functional, and not the least stylish....
A pale blue, grey colour palette, and handcrafted teak wood furniture unifies this space, making it appear large and airy.
Art deco-styled mouldings on the larger wall create different elements as you move through the room. Colour and textures have been added to the space through fabrics in the curtains, furnishings and paintings. The custom-made teak wood linen couch is created for comfort set opposite a mid-century television console. The nested centre-piece is an interlocking design made of materials like sheet metal and teak wood. We knew the home deserved a cosy, spacious living and dining room.
Indoor plants, across the house brings a touch of greenery into the urban setting. A variety of Aglaonema plants fits perfectly as an easy houseplant. To give it some more green company, we chose some moderate height plant named Strelitzia reginae (commonly known as the crane flower) and Areca palm placing beside the large windows.
The eye-catchy dining table and spindle back chairs are hand crafted from locally sourced refurbished old teak wood. Brass metal warm lighting within the space perfectly balances some of the over-the-top décor accessories. Above all, subtle blue wall is adorned with black and gold abstract art by artist Rashmi Mhapsekar that stand out remarkably in this cosy space.
All the wood surfaces in the house are finished with a natural oil-based polish, zero VOC material which is good for environment as well as people using them.
Another space in the house within the living room is the wooden louvered door sheltering pooja area which is accentuated with laser cut gold acrylic Sanskrit shloka. As we walk past the living room, the kitchen is separated with fluted glass wooden framed sliding door. Cabinets that have been paired with pale blue and grey laminates detailed with sleek profile handles and inbuilt appliances.
Moving further, netting inspiration from the art deco style, we choose heavy wall mouldings along with an intricate hand-crafted teak wood bed and spindle headboard that stands out against the soft-mint green walls. One can easily miss a glance at the mirror cladded wardrobe which is tucked in the alleyway. Knocking-off the common wall between the bedrooms allowed us to create space for wardrobe, giving some breathing space in the master bedroom.
The second bedroom which serves as a kid’s bedroom is more of a fancy yet a subtle design. Continuing the combination of blue and grey laminate which is paired with pale blue walls to create a pastel aesthetic. Murphy bed adds flexibility to the space, which when closed gets camouflage with the wardrobes around. The blue and grey minimalist wardrobe eliminates the look of a large storage piece but makes it merge seamlessly with the space. The study desk has been custom made in refurbished teakwood paired along with IKEA chairs and peg board.
▼项目更多图片
客服
消息
收藏
下载
最近



























