查看完整案例


收藏

下载

翻译
Firm: GASPARBONTA & Partners
Type: Commercial › Office
STATUS: Built
YEAR: 2018
SIZE: 5000 sqft - 10,000 sqft
BUDGET: Undisclosed
There is a town, over a lake. Easy to love.
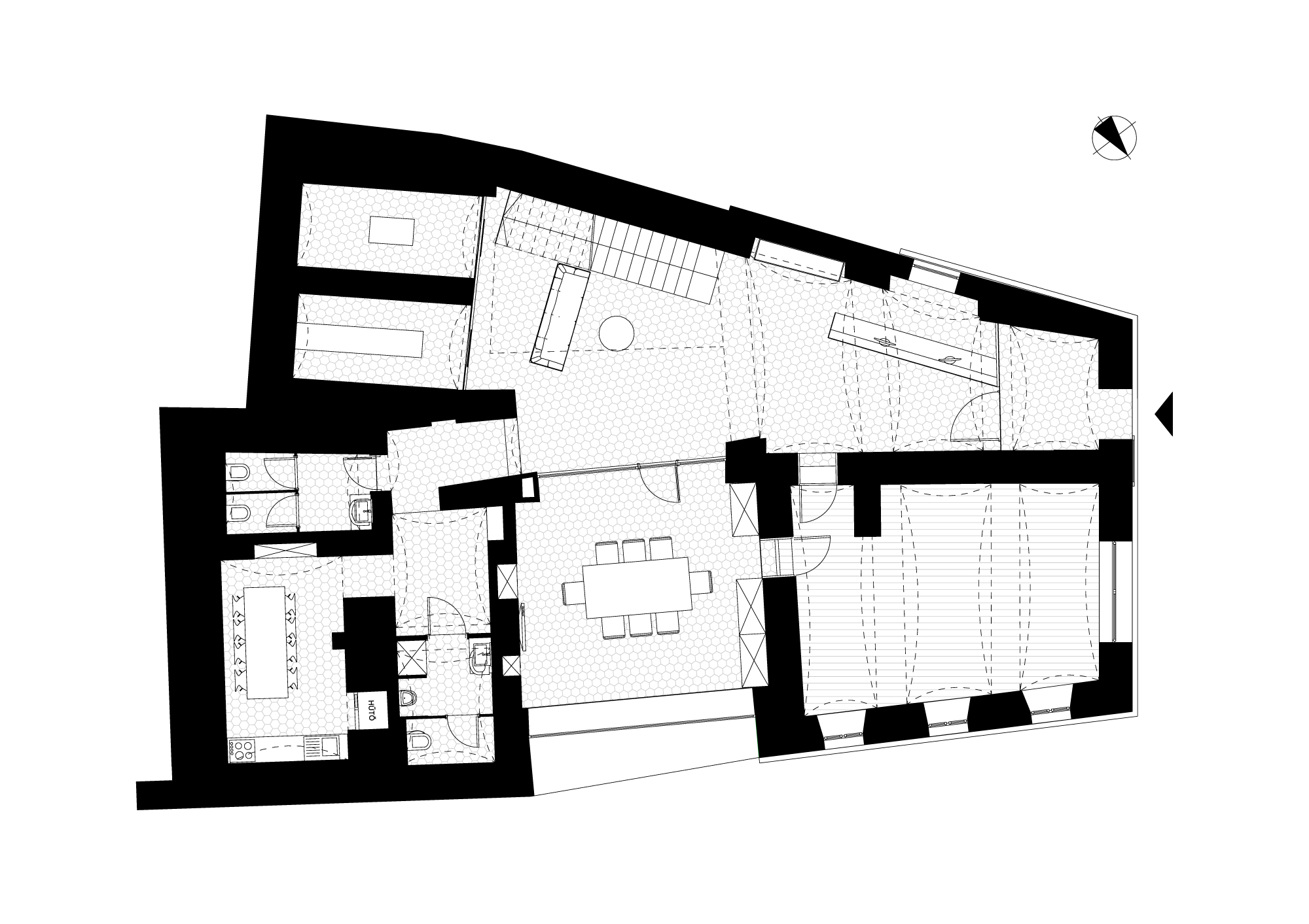
She knows history (not just her own) and has a good relationship with it. She lets herself into the excitement of today but keeps being proud about her old treasures too. there is a square. There is more, but this is the nicest. There is a chapel, a school, a printing house. It’s human, loveable, and good to arrive to. The printing house hasn’t been used for a long time, it was abandoned and in ruins. Just saveable.
The town also loves the square. The local architect, general contractor and developer working with us all treated it with love. Everything that could be used was cleansed, reinterpreted, replaced with new elements, prepared for today's excitement and functions. We made a new one from the old one. The empty spaces became alive, receiving new casings, barriers, doors, lamps, a respectful new wardrobe.
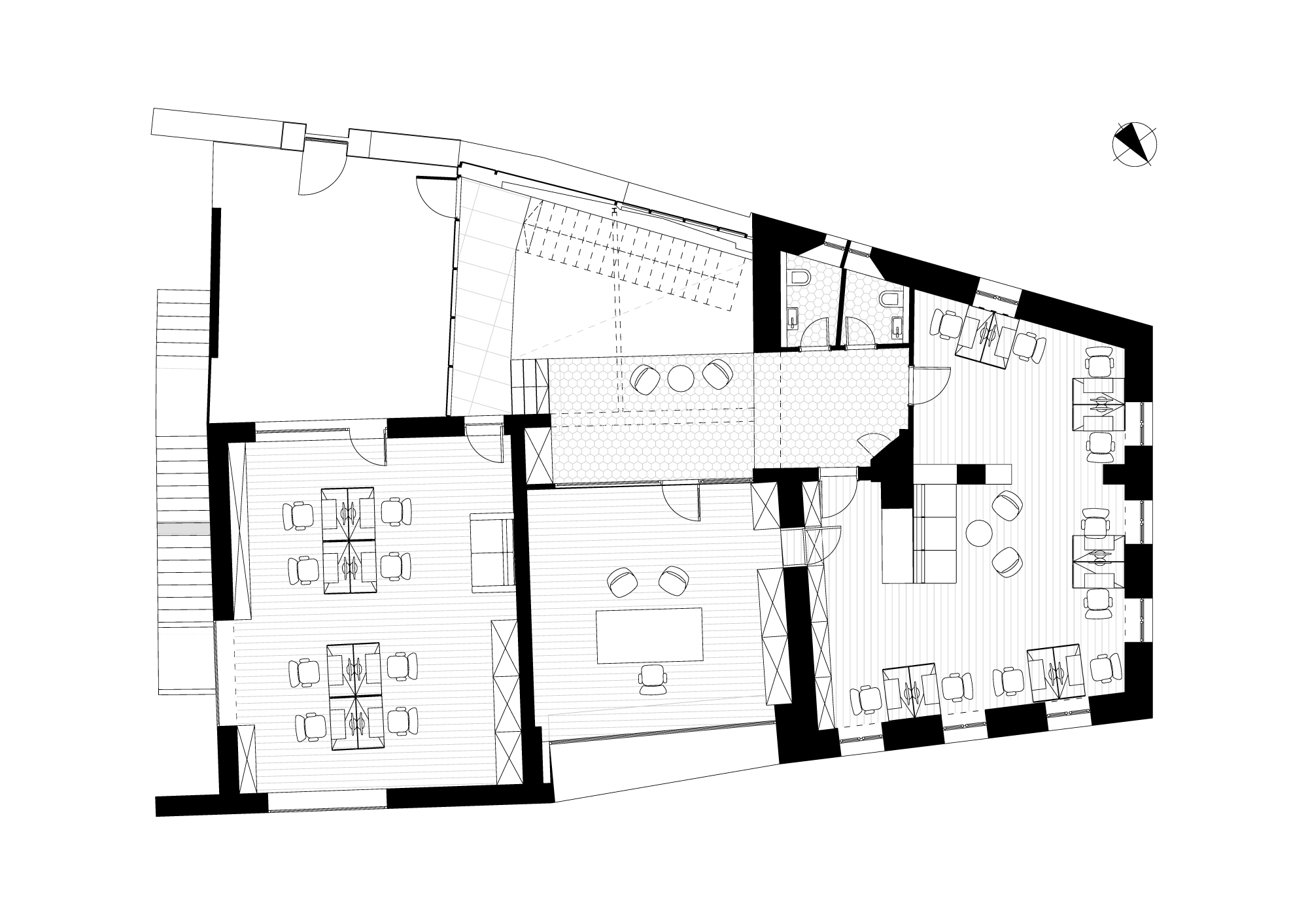
There was no need to be ostentatious. In addition to the cleaned brick walls, the exposed concrete ceilings, wooden doors and windows, the simple cement finishing of the rough walls and the dumpy, heavy iron staircase were all a plain answers. There are no unnecessary items. Clear, well-lighted, airy spaces were created, while the house remained in her heavy, industrial nature. It became an office. Workplace, living space for people. It’s human, loveable, and good to arrive to. It could be anywhere in the world, but here it is, in the town over a lake, which is easy to love. Next to the school, opposite the chapel.
-
Lead designer: Daniel Eke, Gaspar Bonta
Assistant designer: Orsolya Lőrincz
Lead Architect: Gábor Peresztegi
Építész munkatárs: János Gombor
Office furniture: BLUE I http://blue.hu,
Meeting room furniture: TheShowroom I http://theshowroom.hu
客服
消息
收藏
下载
最近










































