查看完整案例

收藏

下载

翻译
Yuri Cogumelos — бразильская компания, которая привезла из Японии технологию выращивания грибов шитаке в контролируемой среде, заменив традиционное производство на бревнах блоками из опилок и отрубей, которые после упаковки в мешки, автоклавирования и инокуляции грибком получили развитие. в холодильной камере с регулируемой влажностью и температурой.
В 2007 году началось проектирование его административного здания вместе с другими постройками, которые будут использоваться для увеличения производственных и складских площадей. Брифинг будет для обычного здания с офисными помещениями и зрительным залом на 140 человек. Хотя проект был предоставлен в 2007 году, фактически строительство произошло в 2019 году, но с дополнительным спросом. С расширением бизнеса компании понадобились дополнительные холодильные камеры, которые из-за ограниченности площади на участке пришлось строить там, где планировалось административное здание; поэтому здание с большой холодильной камерой, занимающей первый этаж, и административными помещениями на верхних этажах здания. Эскизный проект должен был предусмотреть, что работа холодильной камеры будет происходить до закрытия административной зоны, чтобы производственная зона могла удовлетворить потребности планирования отрасли.
Принимая во внимание, что первый этаж обязательно будет иметь непрозрачные стены по периметру и высоту 6 метров, для архитектурного проектирования была использована неровность участка, где подъездная дорога находилась примерно на 2,50 м выше уровня имплантации здания. В соответствии с этим можно было сделать так, чтобы холодильная камера частично пряталась на нижнем этаже. Главный вход в административную часть с его застекленным фасадом и отличием отделки основания завершают концепцию, позволяя пластическому эффекту фасада холодильной камеры не нарушать общий эстетический эффект конструкции.
Хотя на фасадах административных зданий преобладает стекло, на непрозрачном фасаде с северной стороны, где солнце больше всего падает, планировалось, что восточный фасад частично защищен верхушками деревьев, а западная сторона частично защищена производственным зданием и прогнозом погоды. внешних жалюзи для верхнего этажа.
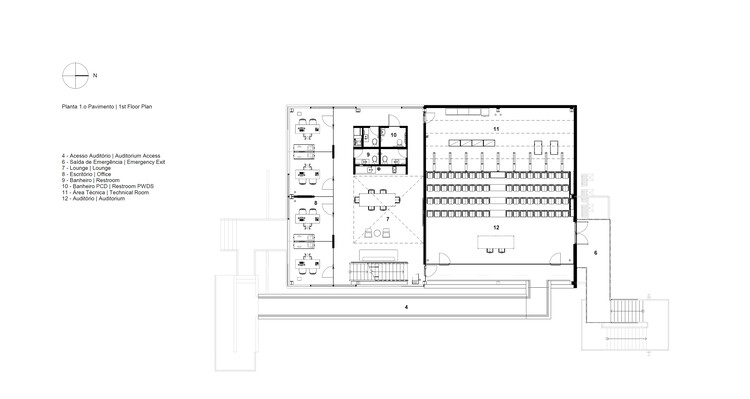
Этаж офисов был предназначен для работы по трем видам деятельности. Первый — это регулярное использование офисной зоны с центральным пространством, включая гостиную, стол для совещаний и кладовую. В другое время это пространство используется для гастрономических мероприятий, всегда связанных с шитаке. А когда зрительный зал используется, эта зона становится фойе, также обслуживаемым туалетами PWDS.
Чтобы уложиться в срок, строительная система была запланирована из стальной конструкции и сборных плит. После завершения первого этапа и подготовки холодильной камеры к эксплуатации был построен антресоль с монолитной ребристой плитой и открытой бетонной стеной, которая отделяет административную зону от зрительного зала и обеспечивает акустическую изоляцию между двумя зонами.
客服
消息
收藏
下载
最近














