查看完整案例


收藏

下载

翻译
Firm: JANSON XIAN ARCHITECT+ASSOCIATES(XAA)
Type: Commercial › Exhibition Center Cultural › Cultural Center
STATUS: Built
YEAR: 2018
SIZE: 1000 sqft - 3000 sqft
BUDGET: $5M - 10M
The Wuzhou Urban Multi-fiction Center (refers as WUMC) locates in the old downtown of Wuzhou city, Guangxi Zhuang Autonomous Region; it is backing the Baiyun mountain and facing the Xijiang river. Some historical architectures could be found around its neighborhood, like the sien temple, arcade corridor mega blocks, sun yat-sen memorial hall and sailors eudemon temple.
Along with the development of new downtown, the decentralization has emerged in the old downtown; therefore, renovation or revitalization has been the main objective of this project.
The architect team was taking the responsibility of overall controlling all sections during the building process, by insisting the ‘co-working’ design philosophy.
In order to revisit the local humanity environment and renovation, thorough out the design process, architects always focused on spatiality relationship; via restrained volume, materials and design language.
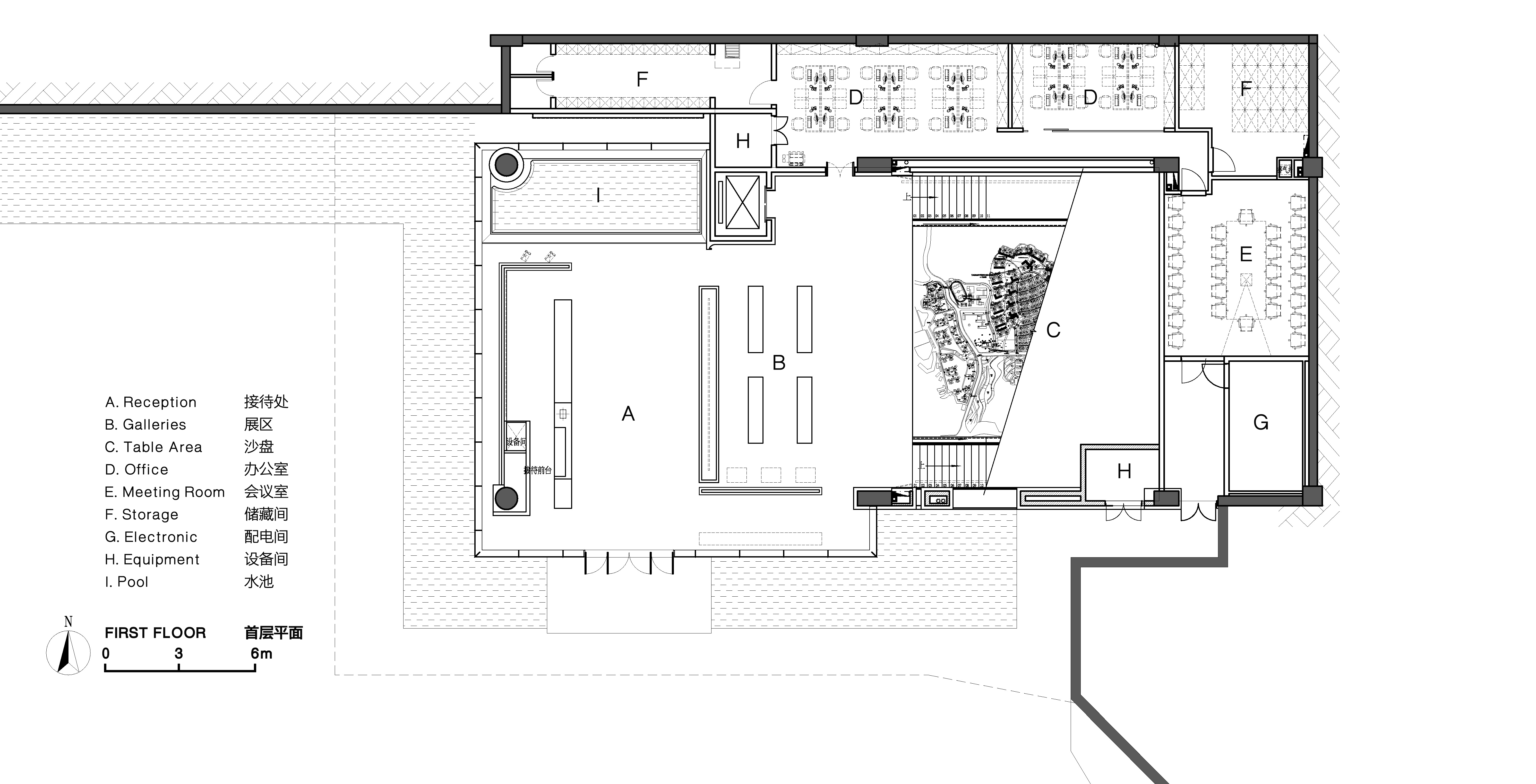
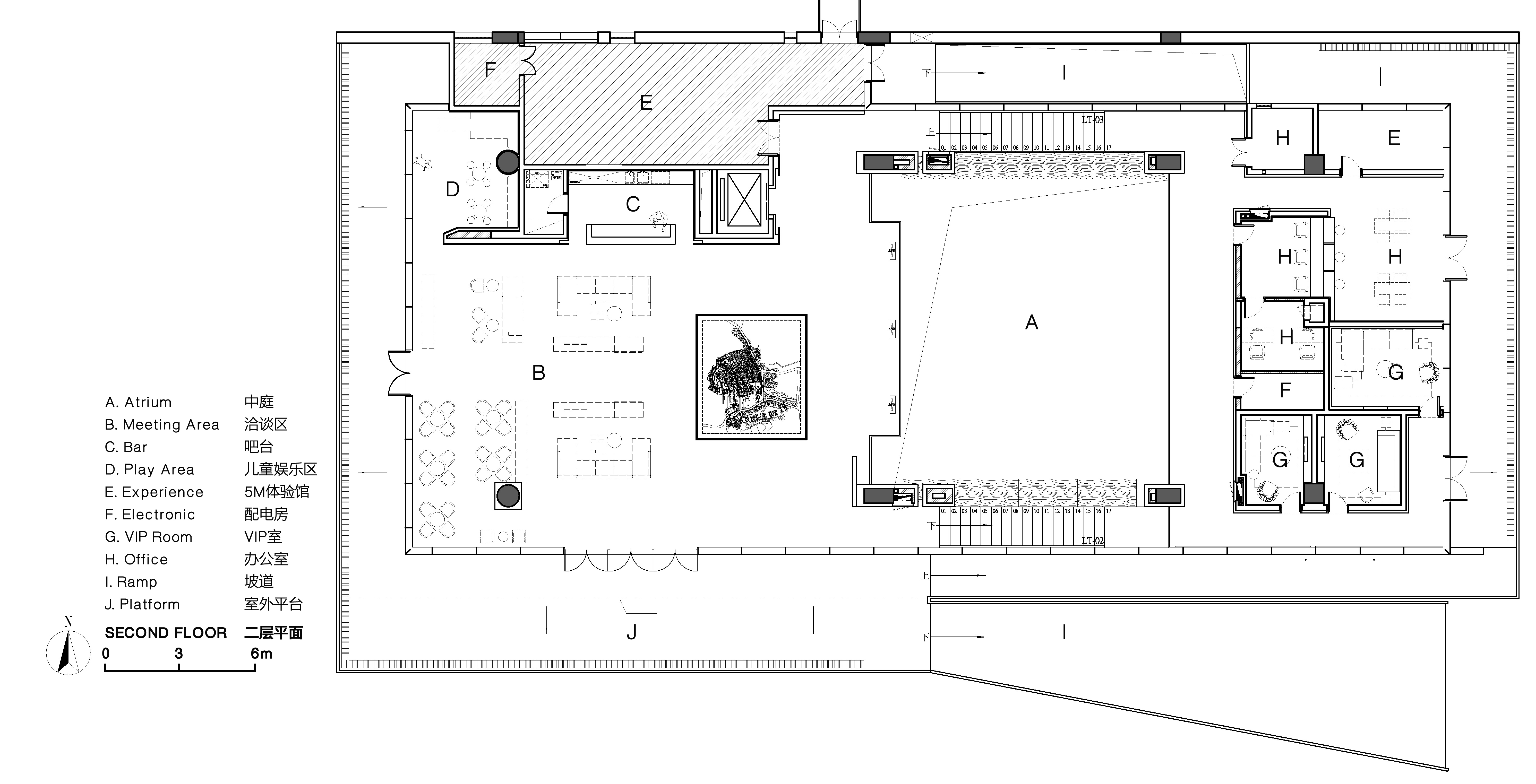
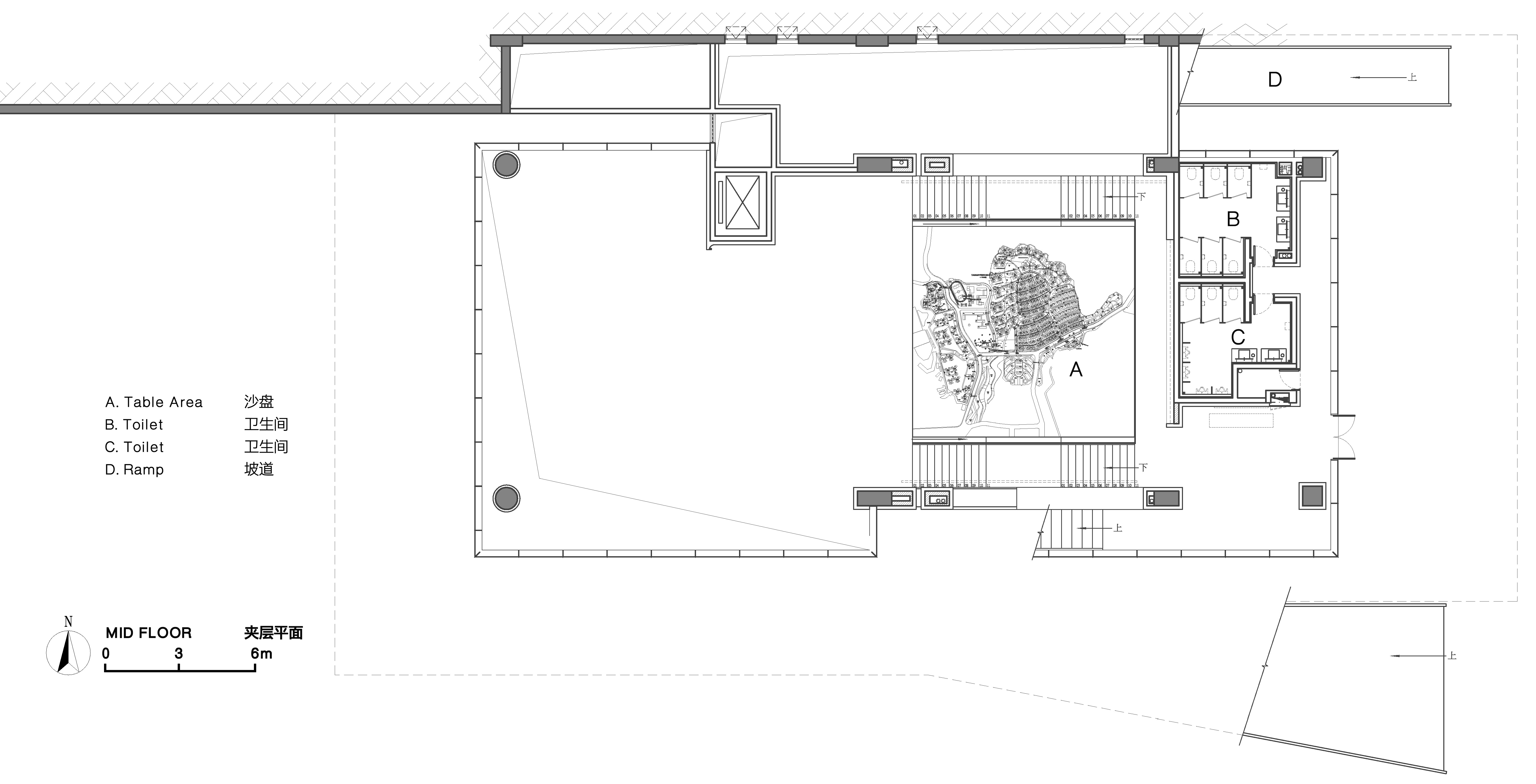
The WUMC was put at the turning of a uphill way, with its outstanding transparency and big scale white overhang platform, it presents like suspending above the water; moreover, it presents as the humble gesture to pedestrians and try to generate public space make up for consuming public land.
The slope connects different platforms and ground, visitors could see the old and new downtown from here; through this way, we build a joint between the city past and future.
Project Name: Wuzhou Urban Multi-fiction Center
Project Type: Architecture
Project location: No. 3, Sien Road, Wan Xiu District, Wuzhou City, Guangxi Zhuang Autonomous Region
Architects XAA
Design Team: Zhantao Studio of XAA
Architect Leader: Zhan Tao
Design members: Tian Wang, Wang Mengyu, Wu Chao, Lin Shuo and Feng Wei
Built state: Completed
Design date: May 2018
Completion date: October 2018
Land area: 3946.6 ㎡
Construction area: 1736.77 ㎡
Other participants:
Client: Midea Real Estate
Structure and Mechanical and Electrical Design Team: Guangzhou Hanhua Architectural Design Co., Ltd.
Construction Drawings: XAA Project Group 1 ( Ren Wei )
Landscape: WEDO Landscape
Interior: C&C DESIGN
Photographers: Zhan Changheng, Wu Chao & Peng Zheng
客服
消息
收藏
下载
最近

































