查看完整案例


收藏

下载

翻译
Architect:Gray Puksand
Location:75 Pigdons Road, Waurn Ponds, Australia; | ;
Project Year:2015
Category:Universities
Redefining engineering learning environments
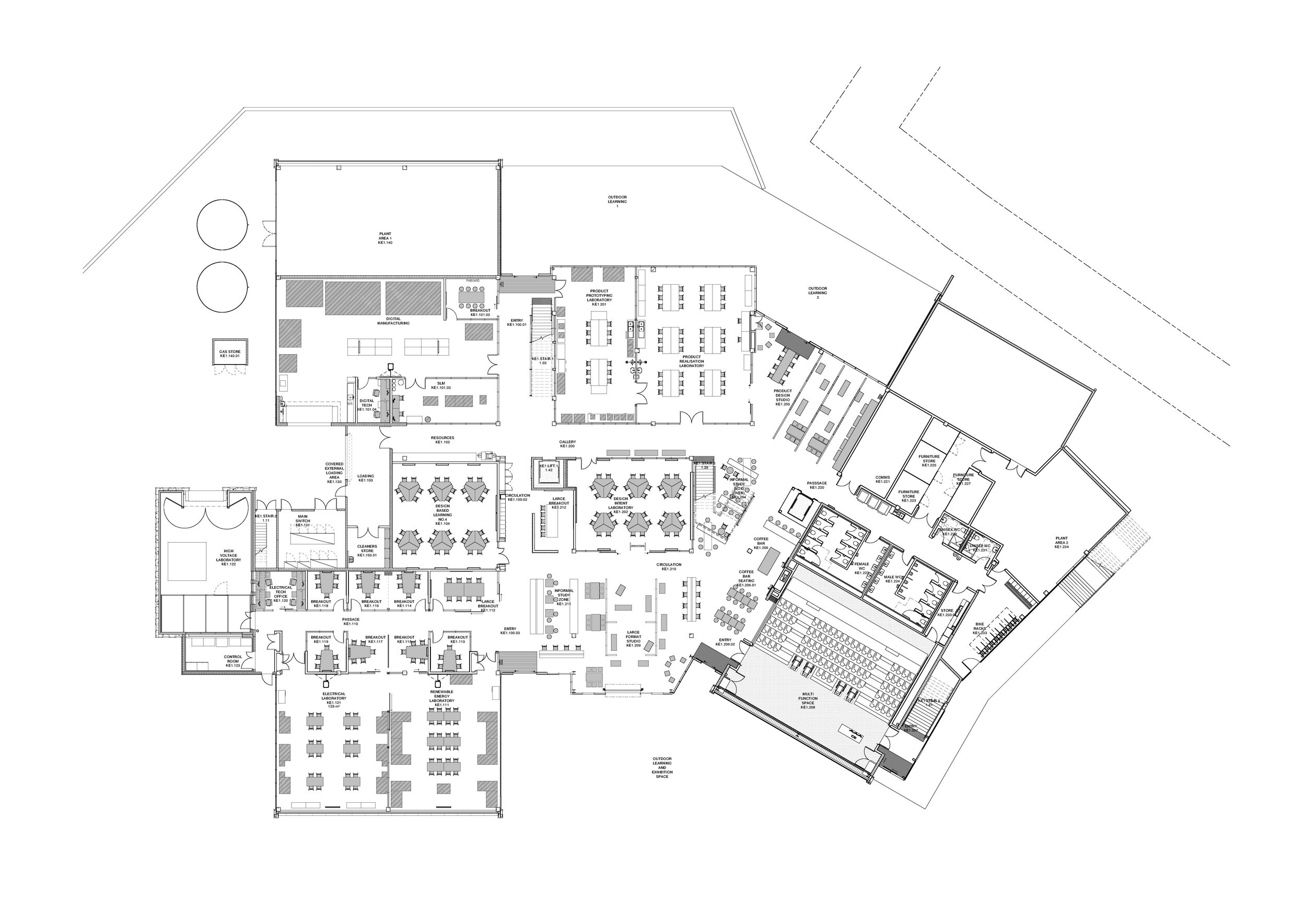
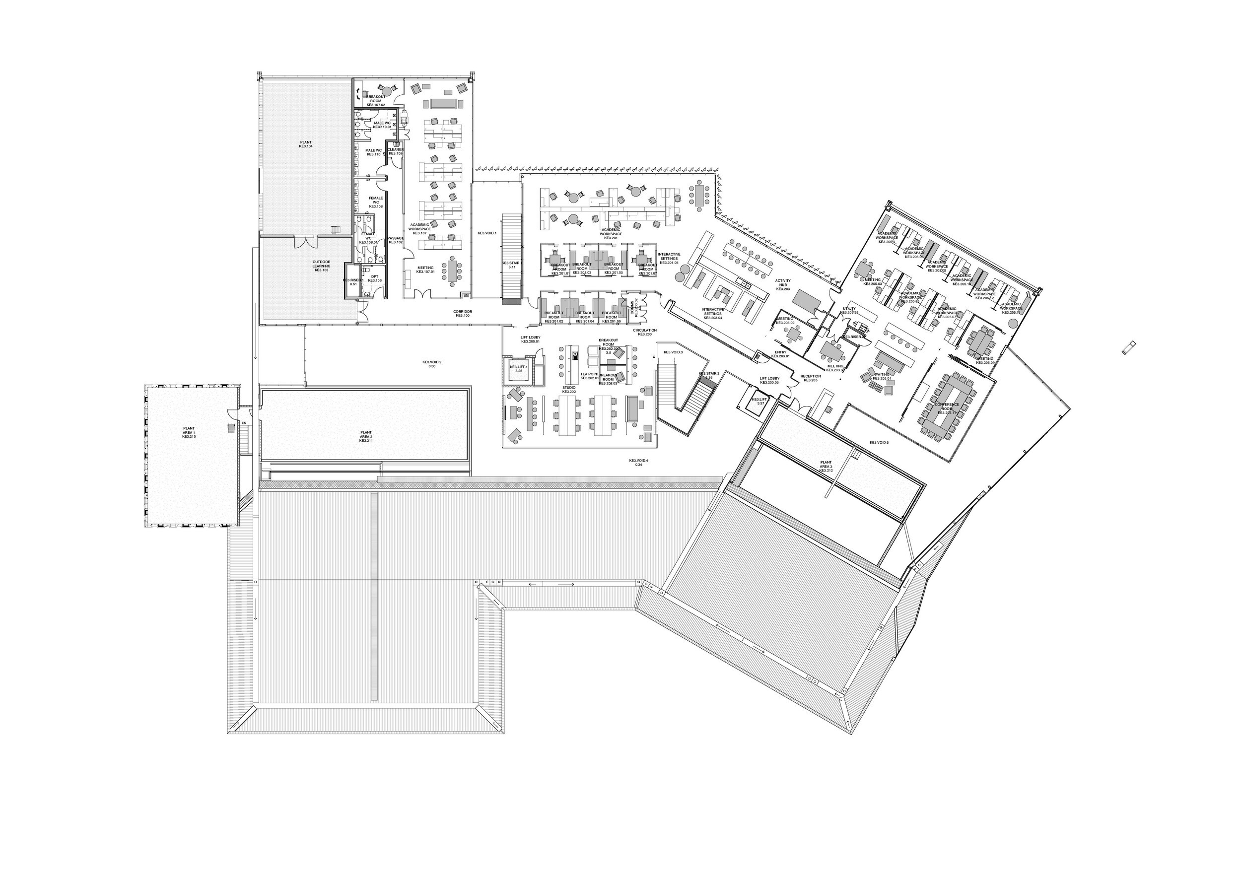
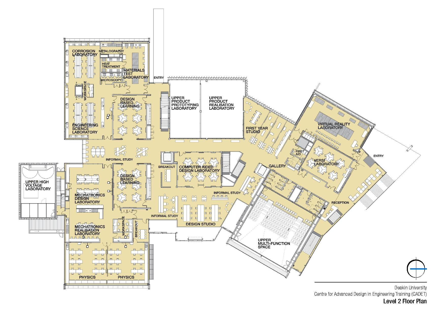
Gray Puksand has completed a $53.3 million dollar multi-level education facility for Deakin University’s School of Engineering at Waurn Ponds in Geelong.
Completed in April 2015 and officially opened on Monday, 16 November, the 6700sqm Deakin University Centre for Advanced Design and Engineering Training (CADET) is a unique facility in the Australian University sector, modelled on international experience and best practice in delivering a state-of-the-art sustainable engineering training facility with the latest in cutting edge technologies and specialist learning resources.
CADET represents a transition from more traditional modes of learning and working to an innovative approach where engineering education is embedded in research activity with an emphasis on design-based learning and industry collaboration. The focus is on enabling engineering students to experience real world scenarios where an idea is developed from a concept, to prototype, to customised manufacture. Gray Puksand worked closely with the Deakin stakeholder group to deliver purpose-built laboratories, design studios, workshops and interactive learning spaces furnished with industry-leading technology and equipment designed to enable students to creatively solve real-world engineering problems. Social spaces are also in the mix and academic staff work collaboratively in open plan office areas.
Mark Freeman, Partner at Gray Puksand and CADET project leader, formulated a series of briefing sessions and planning workshops with key Deakin academic and technical staff during the planning and design development phases of the project. This strategy ensured that the complexities of each specialised area were understood and allowed for in the detailed design.
Professor Guy Littlefair, Head of School at the School of Engineering says CADET redefines how a modern design-based engineering school should be configured to provide a stimulating and supporting learning environment. “The Deakin team was led through facilitation from the designers at Gray Puksand and from the very start of the dialogue, the learning outcomes for students remained at the fore of the purpose,” he said.
“The project has exceeded the original intent, and this is down to the attention to detail by the design team and their linking back to the Deakin stakeholder group. “In terms of a learning environment, all aspects of the centre have been delivered to provide for an exceptional space comprising state-of-the-art functionality and equipment together with a flexible office environment for all school staff - in itself a notable outcome.” He said the building itself, including the services, has become a learning tool for engineering students.
“This integration of learning philosophy was progressed throughout the design and construction process and was very much championed by the design team with key input and comment from the Deakin stakeholder group.”
CADET’s future-focused engineering and design facilities and planning combined with advanced training capabilities support Project Oriented Design Based Learning (PODBL) and inter-disciplinary learning opportunities across engineering education. This holistic approach prepares Mechanical, Civil, Electrical and Chemical Engineers, Industrial Designers and entrepreneurs of the future. CADET received a Commendation at the 2015 annual CEFPI Victorian Chapter Awards for education design excellence in the New Educational Facility Construction / Entire Educational Facility category.
▼项目更多图片
客服
消息
收藏
下载
最近


































