查看完整案例

收藏

下载

翻译
Firm: Square Feet Studio
Type: Commercial › Office
STATUS: Built
YEAR: 2018
SIZE: 3000 sqft - 5000 sqft
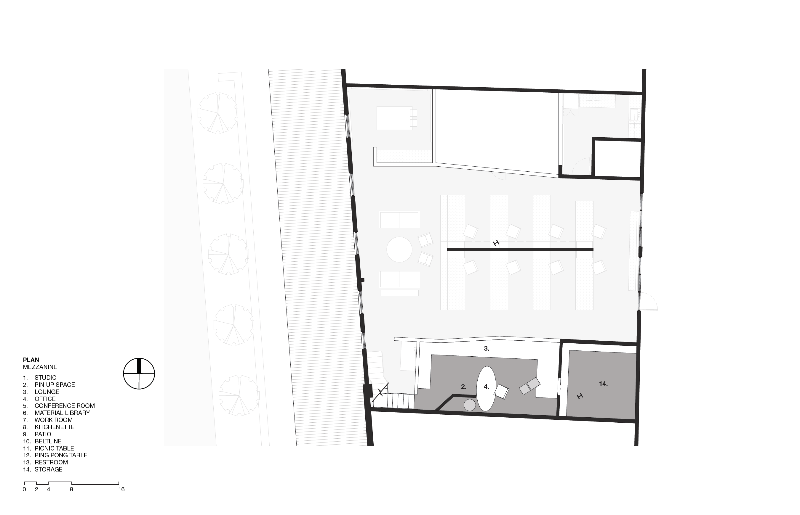
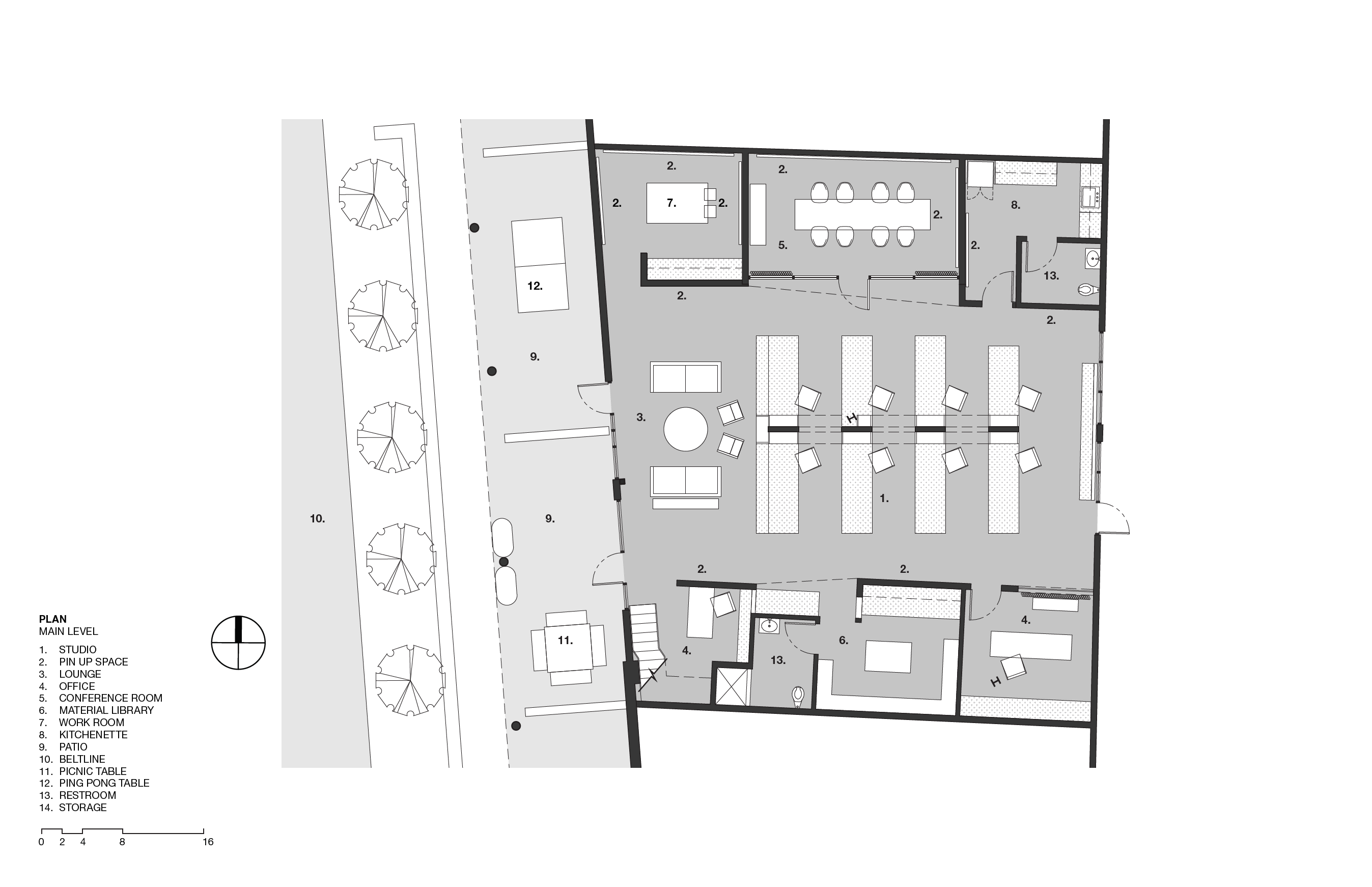
Our office is in historic Inman Park, approximately one mile from downtown Atlanta. The building we’re in is an early 20th century brick warehouse that once stored bottles of Clorox. It now houses a small collection of office condos, with owner-occupied creative businesses like us who are drawn to lofty, light-filled spaces. We sit right next to Atlanta’s former in-town rail lines that have been transformed into the BeltLine Eastside trail, a well-loved pedestrian and bike path. In 2007, we purchased and built out a 1,600 square foot unit to serve as our design studio. A next-door space became available which we rented briefly and then purchased in 2014. Both units were combined and renovated in 2018. We worked with our favorite people on the renovation: the craftsmen, builders, lighting, furniture and textile manufacturers that we work with on client projects. But in this case, we got to be the clients!
客服
消息
收藏
下载
最近












