查看完整案例

收藏

下载

翻译
Firm: LI WENXI ARCHITECTS 郦文曦建筑事务所
Type: Commercial › Office
STATUS: Built
YEAR: 2017
SIZE: 1000 sqft - 3000 sqft
BUDGET: $50K - 100K
Four Pieces of Different Scale Furniture -- The Office of LANDER Electric Gaming Company/Li Wenxi
Background
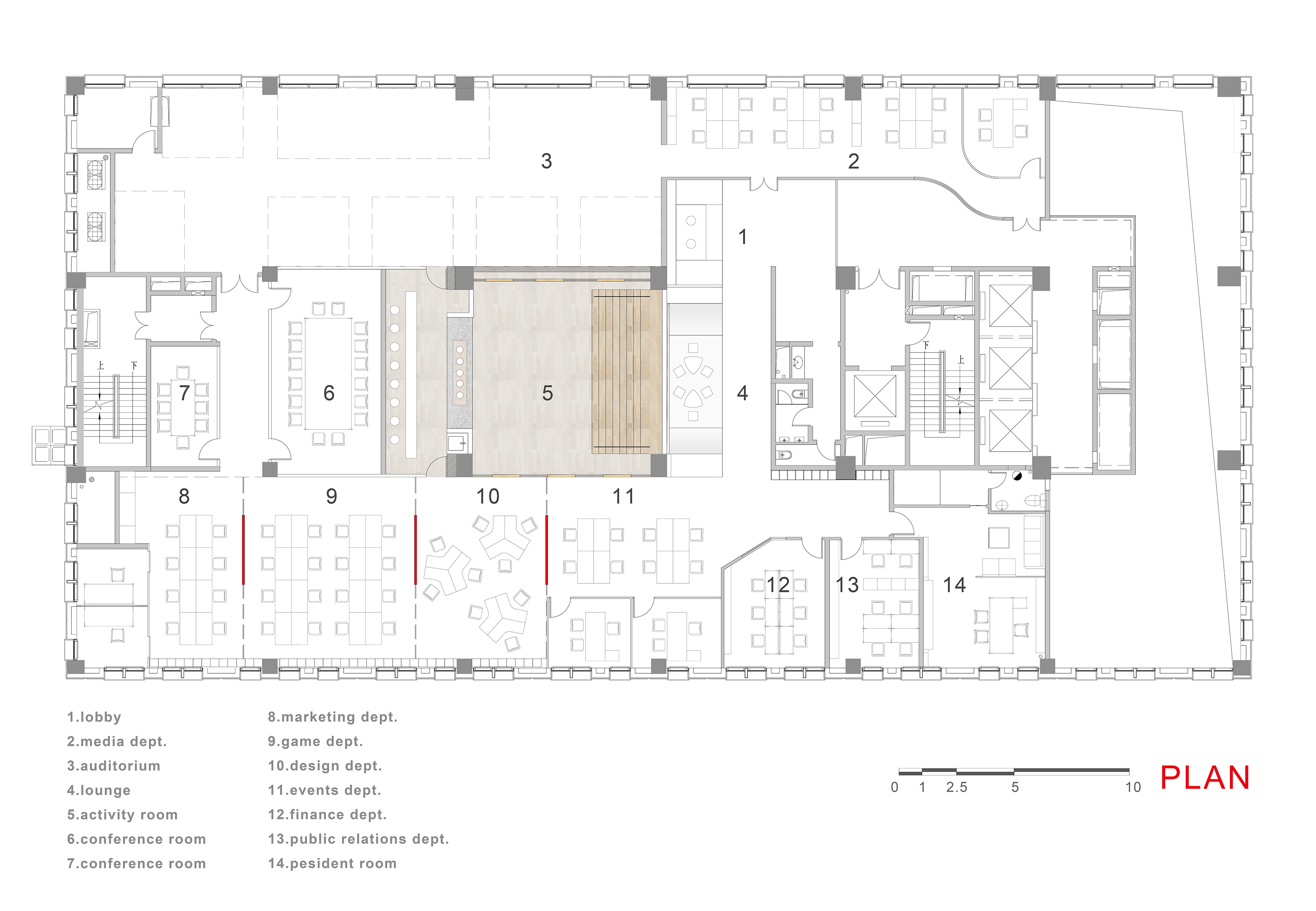
The project is located in the Singapore Science Park in Xiasha district of Hangzhou, China with a standard floor area of 1200 sqm, which is the new office of LANDER electric gaming cultural company. This is the work of Architect LI Wenxi when he study as a Ph.D. candidate in Waseda University, Japan.
Question
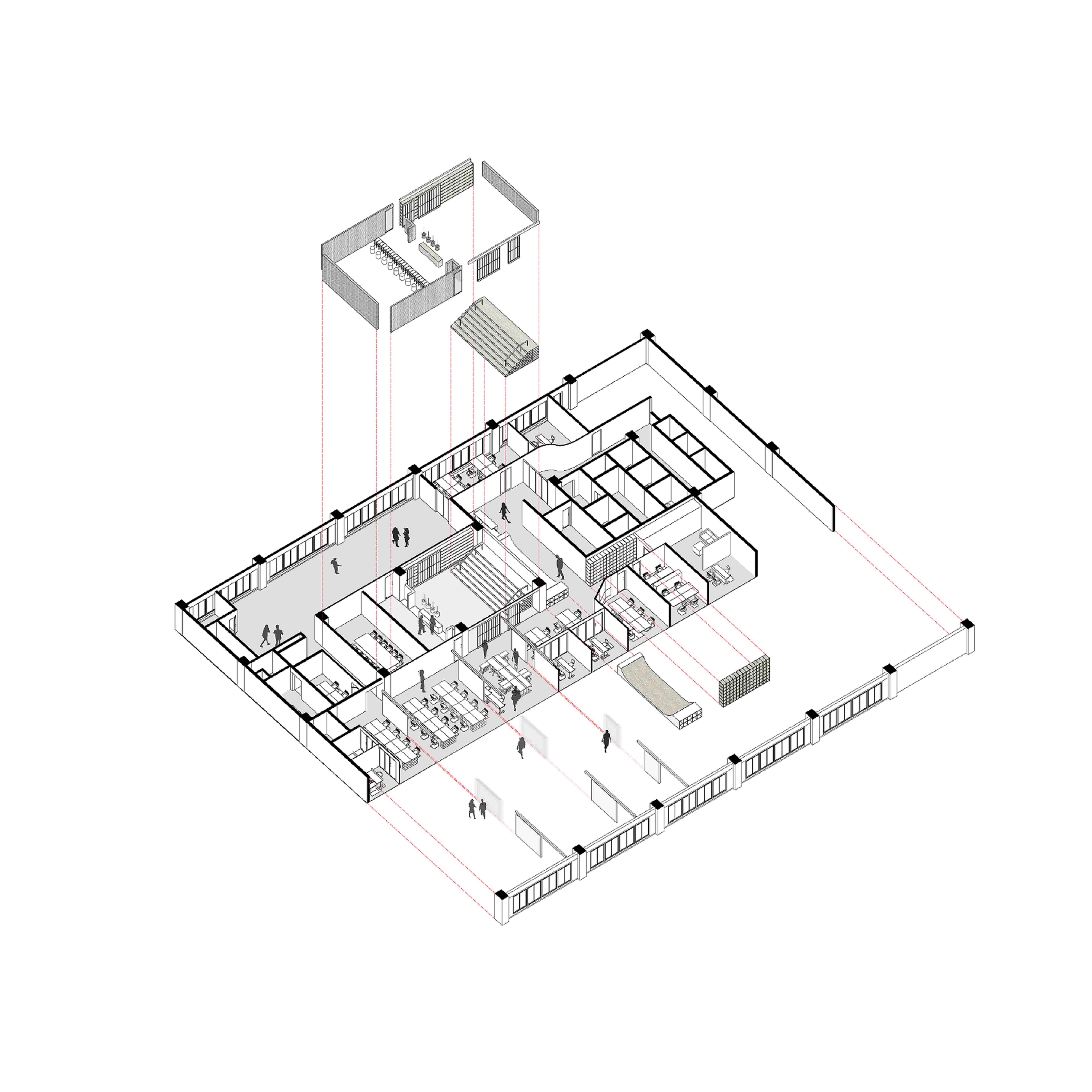
The surface is long strip-shaped, how to create the space with four consecutive styles of waiting, communication, having rests and working but totally different atmosphere from the space with width of 25 meters and length of 50 meters becomes the first problem when beginning to design.
Paragraph
What enlightens us is the processing of space paragraph in Chinese traditional scroll paintings.
“Han Xizai Evening Banquet” of the imperial palace in Beijing is divided into five paragraphs, which are respectively music, dance, relaxation, play and farewell. Different spaces in the paintings are divided with the furniture such as couches, screens and desks, with Han Xizai who appears in every paragraph as the protagonist of the narration, lying and talking, or playing drums or waving hands, which is closely related to his behavior. As the important carrier of behavior, furniture plays an important role of plot segmentation, behavior suggestions in narrations.
Translation
Based on the interests in the translation of paintings element space, we have designed four pieces of different scale furniture between the spaces with different demands, which not only divides the space but also bears the function.
1. Cambered seat
The cambered seat becomes the start of narration after entering the door, we don’t want to make waiting time boring so as to increase the support of cambered surface for the white sofa, which presents various possibilities for the posture of sitting.
2. Couch
The step shaped space is designed for communication and relaxation, not for the communication between the upper and lower layers but just to provide the space which is similar to the bed for talking and even lying by multiple people.
3.Long table
The 8 meter long table designed for the tea room is the humble decoration in the narrative climax, and also the place where employees must arrive for relaxation.
4. Screens
Rain Hill
The use of large area glass bricks makes the space blurred, it seems that people are on the hills after raining with the soft light coming through the interfaces. The ambiguous way of dividing space is to weaken the separation of dead walls and increase the joy when walking inside.
Postscript
This is a design practice about the basic problem of architecture-division. The specialization of traditional painting language is interesting and full of challenges.
Location: Hangzhou, China
Function: Office
Area: 1200sqm
Firm:LI WENXI Architects.
Architect in Charge: LI Wenxi
Design team: Zhang Hanjun, Zhao Jian, Wu Shunchi, Pang Mengxia, Lu Zhaoyang, Jiang Yuqi (Special Thanks)
Status: built
Photographs: Zhao Qiang
客服
消息
收藏
下载
最近



















































