查看完整案例

收藏

下载

翻译
La Escocesa — это универсальный гостевой дом, построенный для поддержки семейного дома, расположенного на плоских равнинах «пампасов» в провинции Буэнос-Айрес, Аргентина.
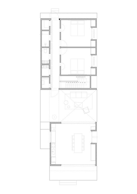
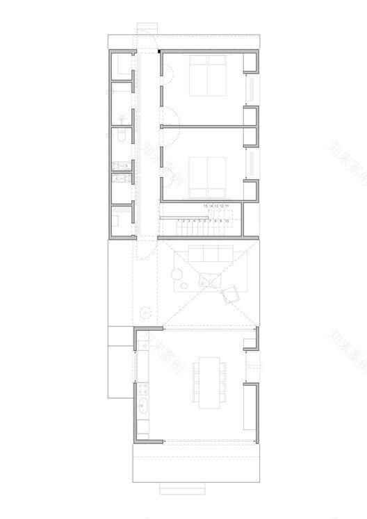
Этот дом предназначен для работы в нескольких различных ситуациях, поэтому интегрированный, но неправильно сконфигурированный дом спроектирован из 4 модулей, которые его составляют: большая кухня/столовая; модуль с двумя спальнями; модуль с раздельной ванной комнатой; и большое многоцелевое пространство на чердаке. Таким образом, каждый модуль включается отдельно в зависимости от использования. Формирование дома стремилось сопровождать уже построенные фермы и позволяло при необходимости расти в будущем. По этой причине для дома с наружным коридором была выбрана ленточная форма, чтобы его можно было расширять к северо-восточному фасаду гибким, разрозненным образом, если требуется больше спален, не нарушая длинных видов, которые в настоящее время имеет главный дом. .
При выборе отделочных материалов для ограждающих конструкций основное внимание уделялось минимальному обслуживанию или его полному отсутствию. Для наружных фасадов и интерьеров ванных комнат выбран фальцевый лист, а для интерьеров – фанера.
Несмотря на то, что La Escocesa находится в очень жарком районе, он не подключен к сети и требует очень мало кондиционеров в течение года. Это связано с тем, что были реализованы стратегии экологического дизайна. Вот некоторые примеры: все помещения имеют естественную перекрестную вентиляцию и постоянную защиту от солнца, а стеклянные поверхности сведены к минимуму при ориентации на юг и запад. Кроме того, все помещения имеют естественное освещение. Мансардные окна были спроектированы в ванных комнатах и коридорах для достижения минимального потребления искусственного света. Кроме того, дом утеплен накидками из овечьей шерсти, толщина которых регулируется в зависимости от ориентации.
Центральный внутренний дворик является ядром союза всех частей дома, выполняя роль открытого распределительного зала и пространства для встреч и созерцания окружающего и вечного пейзажа.
客服
消息
收藏
下载
最近
















