查看完整案例


收藏

下载

翻译
Architect:Dushe Architectural Design
Location:Pudong district, China; | ;
Category:Hotels
The Highlight of the Supporting Role ----- The expansion of Building No.1 in Dongjiao State Guest Hotel
This fragmented system is frequently used as an interpretation of contemporary cities; the iconic fragment becomes the signature of the city. But the city itself contains abundant resources. The 99% of these fragments are unknown for the public, but the city is also composed of background buildings.
Dongjiao State Guest Hotel is an important Ambassador-level reception site in Shanghai. Because is considered the core of the hotel, apparently Building No.1 has a leading role. The project expansion area is located on a narrow triangle site behind the No.1 Building, there are several natural hills in the west and east sides, so this development doesn’t have a clear appearance on the surroundings.
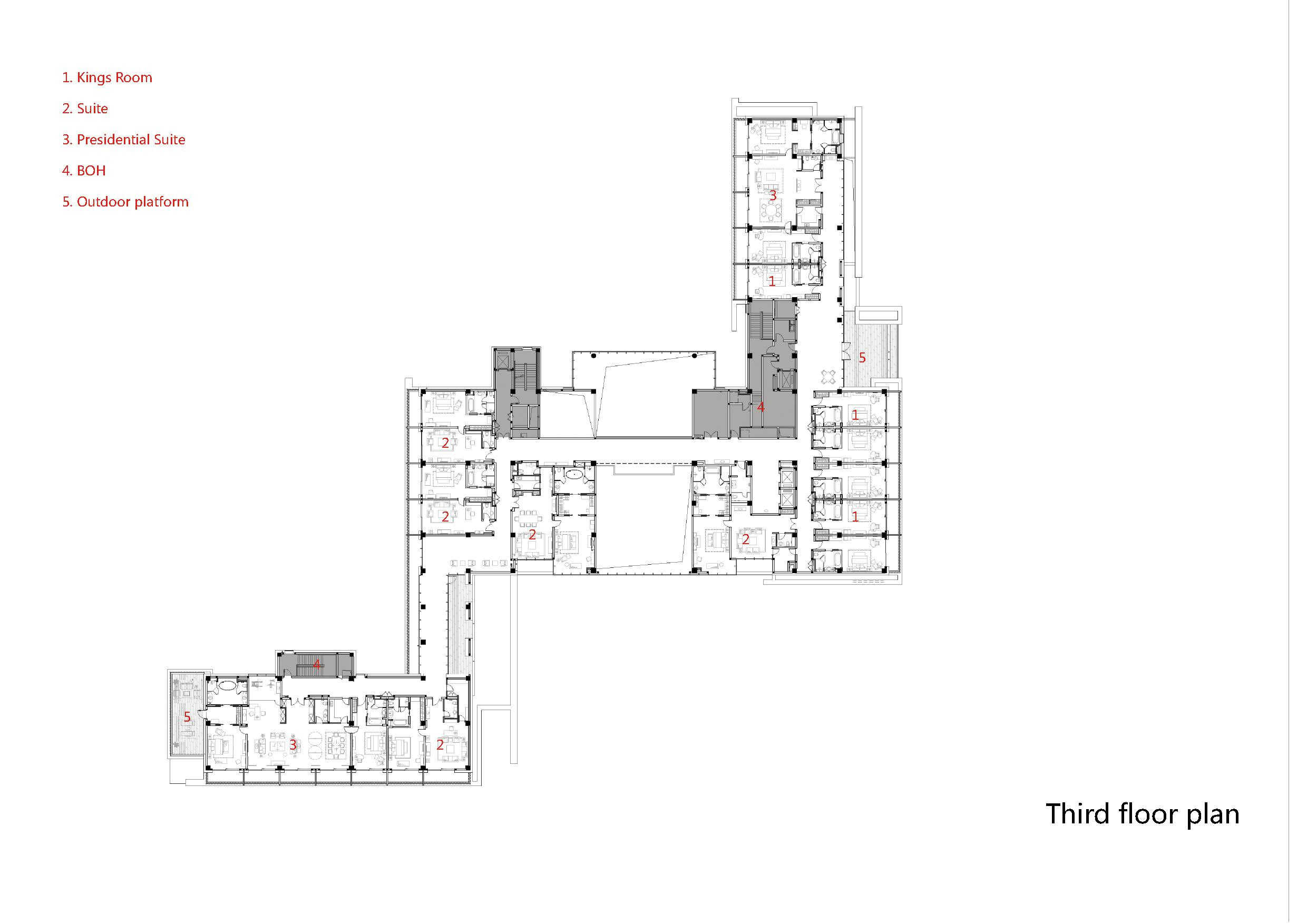
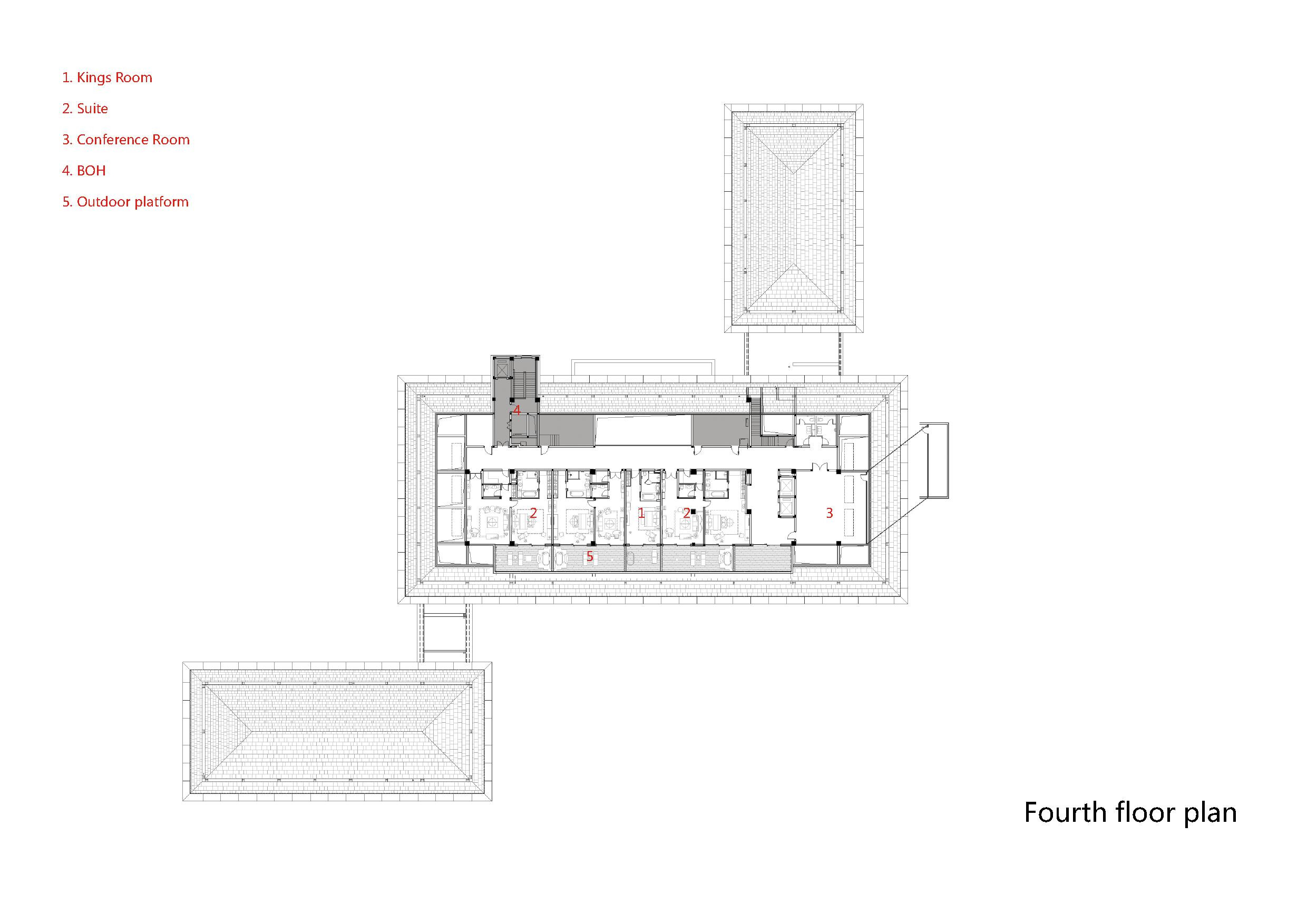
Functions: the scale of the project is only 8,000 square meters; and the function of the building is mainly hotel rooms for attendants, which will be also opened to the public.
Form: this project development will be considered as a supplement for the Building No.1, the appearance must be similar to Building No.1 and not prominent. Also the cost should be strictly under control according to the above conditions. The project will have a supporting role in the overall layout.
The project, which is only half the width of Building No.1 seems like the attendant of the Building No.1, and they will be connected only through a corridor.The exquisite details of Building No.1 gave us a lot of pressure; the idea of approaching the techniques of the walls of Building No.1 was initially agreed. But the construction cost demand us to make some sacrifices. Simple subtractions of the techniques have already been proved as a failure in the design of the fitness center in the hotel before. “Different appearance, Similarity in spirit” becomes the new direction; on one hand the stone and aluminum plates used in the project will be maintained as Building No.1, in order to achieve the harmonization; on the other hand dark grey ceramic plate, U-shaped glass and some other new materials will bring new feelings to the project, and the main tone will remain consistency with Building No.1.
▼项目更多图片
客服
消息
收藏
下载
最近


























